3-Bedroom, 1390 Sq Ft Contemporary Plan with Covered Front Porch

Main image for house plan # 6541

Images/Plans copyrighted by designer. Photos may reflect homeowner modifications.

About House Plan #129-1022

Sq Ft
1390
Sq Ft
Bedrooms
3
Bedrooms
Bathroom
2
Baths
Half Baths
0
Half Baths
Bedrooms
3
Cars
Bedrooms
1
Stories
Bedrooms
59' 6'
Width
Bedrooms
38
Depth
Starting at$1028.50What's included
STEP 1Bedrooms
STEP 2Bedrooms
STEP 3Bedrooms

Subtotal:$0
Plan Collection

How much will it cost to build?

Estimate your costs based on your location and materials.

Free Cost Instant Estimator

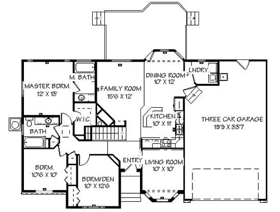
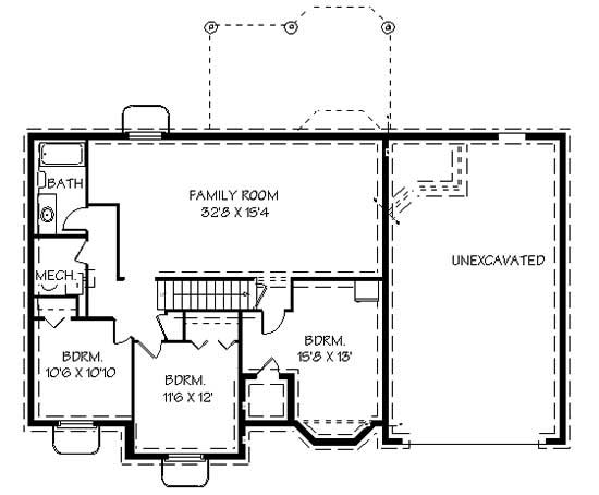
Floor Plans

Main Floor Plan
Main Floor Plan
Lower Level Floor Plan
Lower Level Floor Plan
Plan Collection

Can I modify this plan?

Yes! This plan can be customized—contact us for a free quote.

House Plan Description

The Glenwood offers all the amenities of a larger home in under 1400 Sq. Ft. You'll enjoy the main level laundry, three bedrooms, two baths, formal living room, great room, dining room and kitchen all on one level. Plus a full basement with three bedrooms an additional bath and a large family room. Other amenities include vaulted ceilings, built in fireplace and entertainment center, a deeper than usual garage and a raised dishwasher for convenience.

Home Details

Summary
Plan #:129-1022
Starting at:$1028.50
Floors:1
Bedrooms:3
Full Baths:2
Half Baths:0
Garage:
Square Footage
Heated Area:1390 Sq. Ft.
First Floor:1390 Sq. Ft.
Unheated Area:
Basement:1394 Sq. Ft.
Garage:632 Sq. Ft.
Dimensions
Width:59' 6''
Depth:38' 8''
Architectural Styles
Exterior Wall Material
BrickStucco
Roofing Type
Gable
Roof Pitch
6/12
Special Feature
FireplaceDining RoomFamily RoomMain Level Laundry
Garage Type
Attached Garage
Fireplaces
One Fireplace
Exterior Wall Framing
2x4

What’s Included

Most plan sets include the following:

icon text-secondary-400 includedExterior elevations

icon text-secondary-400 includedFloor plans

icon text-secondary-400 includedFraming plans

icon text-secondary-400 includedCross-sections

icon text-secondary-400 includedElectrical layout

What’s Not Included

These items are  NOT included:

icon text-secondary-400 includedArchitectural or Engineering Stamp - handled locally if required.

icon text-secondary-400 includedSite Plan - handled locally when required.

icon text-secondary-400 includedMechanical Drawings (location of heating and air equipment and ductwork) - your subcontractors handle this.

icon text-secondary-400 includedPlumbing Drawings (drawings showing the actual plumbing pipe sizes and locations) - your subcontractors handle this.

icon text-secondary-400 includedEnergy calculations - handled locally when required.

Related House Plans

Plan Collection
Plan Collection
Plan Collection
Plan#141-1243
Starting at$1485
1640
Sq Ft
1
Story
3
Bed
2
Bath
2
Car
Plan Collection
Plan Collection
Plan Collection
Plan#176-1012
Starting at$600
1412
Sq Ft
1
Story
3
Bed
2
Bath
0
Car
Plan Collection
Plan Collection
Plan Collection
Plan#142-1046
Starting at$1245
1300
Sq Ft
1
Story
3
Bed
2
Bath
2
Car
View All

Other Plans By This Designer

Plan Collection
Plan Collection
Plan Collection
Plan#129-1046
Starting at$1029
1490
Sq Ft
1
Story
3
Bed
2
Bath
3
Car
Plan Collection
Plan Collection
Plan Collection
Plan#129-1032
Starting at$1150
2318
Sq Ft
2
Story
5
Bed
2.5
Bath
3
Car
Plan Collection
Plan Collection
Plan Collection
Plan#129-1015
Starting at$1029
1035
Sq Ft
1.5
Story
2
Bed
1
Bath
2
Car