Estimate your costs based on your location and materials.
Yes! This plan can be customized—contact us for a free quote.
Yes! This plan can be customized—contact us for a free quote.
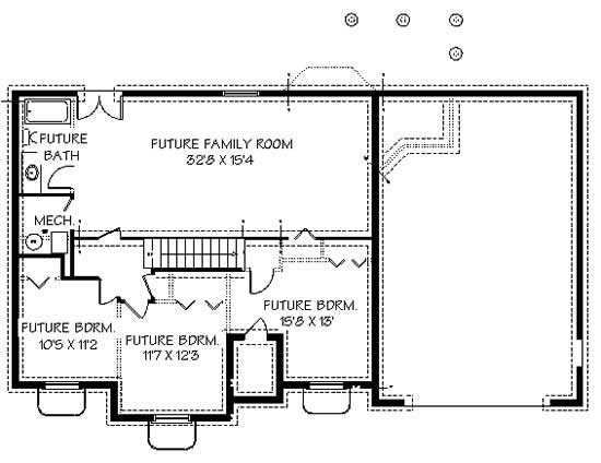
This Contemporary Ranch house plan offers all the amenities of a larger home in under 1400 Sq. Ft. You'll enjoy the main level laundry, three bedrooms, two baths, formal living room, great room, dining room and kitchen all on one level. Plus a full basement with three bedrooms an additional bath and a large family room. Other amenities include vaulted ceilings, built in fireplace and entertainment center, a deeper than usual garage and a raised dishwasher for convenience.
Estimate your costs based on your location and materials.
All sales of house plans, modifications, and other products found on this site are final. No refunds or exchanges can be given once your order has begun the fulfillment process. Please see our Policies for additional information.
All plans offered on ThePlanCollection.com are designed to conform to the local building codes when and where the original plan was drawn.
The homes as shown in photographs and renderings may differ from the actual blueprints. For more detailed information, please review the floor plan images herein carefully.
Estimate your costs based on your location and materials.