Estimate your costs based on your location and materials.
Yes! This plan can be customized—contact us for a free quote.
Yes! This plan can be customized—contact us for a free quote.
PLEASE NOTE: For this designer, if you choose optional features such as but not limited to: 2x6 framing, reverse or optional basement, the designer will need an additional 2-5 business days to adjust the plan accordingly. Please keep this in mind when choosing your shipping option. If you would like Express or Priority shipping, the designer will ship the plan to you using the method you choose but you will still have the 2-5 business day waiting period BEFORE they ship! Please feel free to contact us with any questions!
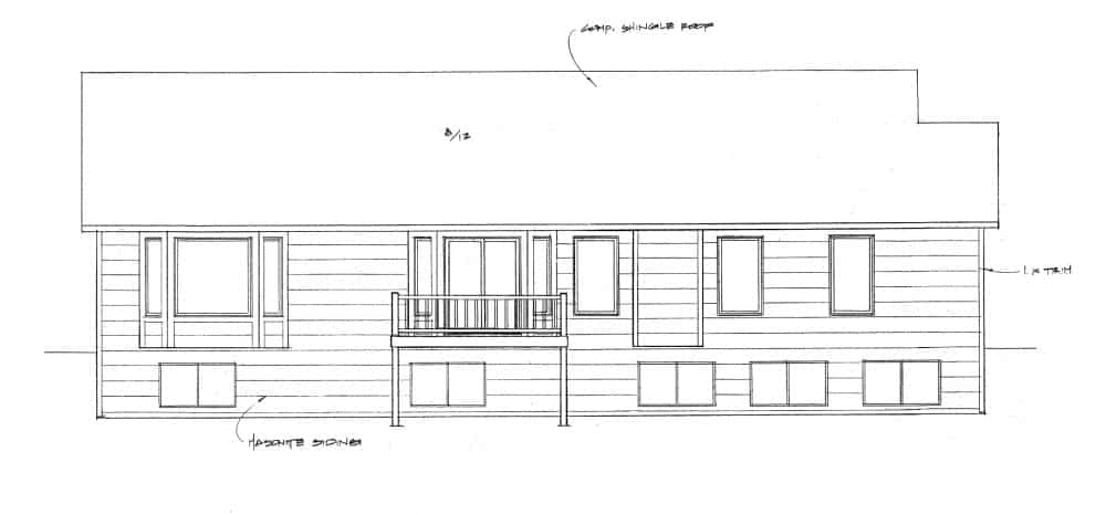
You’ll appreciate the free-flowing nature of this traditionally styled Ranch house, with its brick and stone accents and traditional column-and-balustrade treatment on the front covered porch that add grace to this house. The remarkable 1-story floor plan has vaulted ceilings in the living room, dining area, and kitchen, as well as a 10-foot ceiling in front bedroom #2, all in 1539 square feet of fully conditioned living space that includes 3 bedrooms, 2 full bathrooms, and a half bath. A truly great home for you and your...
Estimate your costs based on your location and materials.
All sales of house plans, modifications, and other products found on this site are final. No refunds or exchanges can be given once your order has begun the fulfillment process. Please see our Policies for additional information.
All plans offered on ThePlanCollection.com are designed to conform to the local building codes when and where the original plan was drawn.
The homes as shown in photographs and renderings may differ from the actual blueprints. For more detailed information, please review the floor plan images herein carefully.
Estimate your costs based on your location and materials.