3-Bedroom, 2389 Sq Ft Ranch Plan with Vaulted Ceilings

Ranch home (ThePlanCollection: Plan #198-1159)

Images/Plans copyrighted by designer. Photos may reflect homeowner modifications.

About House Plan #198-1159

Sq Ft
2389
Sq Ft
Bedrooms
3
Bedrooms
Bathroom
2
Baths
Half Baths
0
Half Baths
Bedrooms
2
Cars
Bedrooms
1
Stories
Bedrooms
80' 10'
Width
Bedrooms
59
Depth
Starting at$1245.00What's included
STEP 1Bedrooms
STEP 2Bedrooms
STEP 3Bedrooms

Subtotal:$0
Plan Collection

How much will it cost to build?

Estimate your costs based on your location and materials.

Free Cost Instant Estimator

Floor Plans

Floor Plan Main Level
Floor Plan Main Level
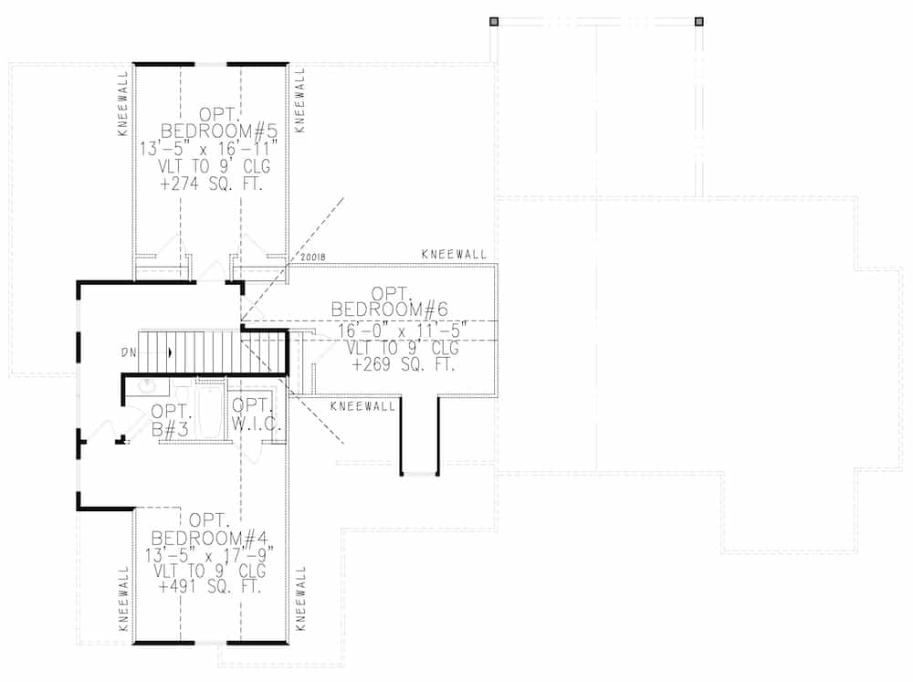
Floor Plan Upper Level
Floor Plan Upper Level
Plan Collection

Can I modify this plan?

Yes! This plan can be customized—contact us for a free quote.

Additional Notes from Designer

NO Material lists.

House Plan Description

Bursting with glamour, this Ranch style home has Cottage characteristics that could be just what you're looking for. The pleasant living spaces – with vaulted ceilings that make the rooms feel more spacious – and nice amenities are evident in the home and all blend in together well for the owners' convenience. This graceful 1-story floor plan has 2389 square feet of heated and cooled living space with an optional 1034-square-foot upper level.

As soon as you enter the home, you'll see it has an open...

Home Details

Summary
Plan #:198-1159
Starting at:$1245.00
Floors:1
Bedrooms:3
Full Baths:2
Half Baths:0
Garage:
Square Footage
Heated Area:2389 Sq. Ft.
First Floor:2389 Sq. Ft.
Unheated Area:
Garage:595 Sq. Ft.
Dimensions
Width:80' 10''
Architectural Styles
Exterior Wall Material
Vinyl SidingRock/StoneWood Siding
Roofing Type
GableHipGable/Shed Dormer
Roofing Material
Asphalt ShinglesMetal
Ceiling Height
10 Foot Ceiling9 Foot Ceiling
Special Feature
FireplaceDining RoomMud RoomFamily RoomMain Level LaundryColor PhotosSplit BathroomStorageVaulted CeilingsOpen Floor Plan
Garage Type
Attached GarageSide Entry
Fireplaces
Two Fireplaces
Building Lot Type
Corner Lot
Kitchen Features
Kitchen IslandWalk-in PantryPeninsula/Eating Bar
Porches and Exterior Features
Covered Front PorchCovered Rear Porch
Master Suite Features
Main Floor MasterMaster BathroomWalk In ClosetSplit Master Bedroom

What’s Included

Most plan sets include the following:

icon text-secondary-400 includedExterior elevations

icon text-secondary-400 includedFoundation plan

icon text-secondary-400 includedDetailed floor plans

icon text-secondary-400 includedInterior details

icon text-secondary-400 includedRoof plan

icon text-secondary-400 includedCross-section details

icon text-secondary-400 includedElectrical layout

What’s Not Included

These items are  NOT included:

icon text-secondary-400 includedArchitectural or Engineering Stamp - handled locally if required.

icon text-secondary-400 includedSite Plan - handled locally when required.

icon text-secondary-400 includedMechanical Drawings (location of heating and air equipment and ductwork) - your subcontractors handle this.

icon text-secondary-400 includedPlumbing Drawings (drawings showing the actual plumbing pipe sizes and locations) - your subcontractors handle this.

icon text-secondary-400 includedEnergy calculations - handled locally when required.

Related House Plans

Plan Collection
Plan Collection
Plan Collection
Plan#142-1168
Starting at$1395
2597
Sq Ft
1
Story
3
Bed
2.5
Bath
2
Car
Plan Collection
Plan Collection
Plan Collection
Plan#117-1092
Starting at$1095
2091
Sq Ft
1
Story
3
Bed
2.5
Bath
2
Car
Plan Collection
Plan Collection
Plan Collection
Plan#106-1276
Starting at$1295
2344
Sq Ft
1
Story
3
Bed
2.5
Bath
2
Car
View All

Other Plans By This Designer

Plan Collection
Plan Collection
Plan Collection
Plan#198-1053
Starting at$2195
2498
Sq Ft
1.5
Story
3
Bed
3
Bath
3
Car
Plan Collection
Plan Collection
Plan Collection
Plan#198-1054
Starting at$2630
4376
Sq Ft
2
Story
4
Bed
4.5
Bath
3
Car
Plan Collection
Plan Collection
Plan Collection
Plan#198-1060
Starting at$1985
3970
Sq Ft
2
Story
5
Bed
4.5
Bath
2
Car