3-Bedroom, 2471 Sq Ft Cape Cod Plan with Loft/Balcony

Cape Cod home (ThePlanCollection: Plan #198-1150)

Images/Plans copyrighted by designer. Photos may reflect homeowner modifications.

About House Plan #198-1150

Sq Ft
2471
Sq Ft
Bedrooms
3
Bedrooms
Bathroom
2
Baths
Half Baths
1
Half Baths
Bedrooms
2
Cars
Bedrooms
2
Stories
Bedrooms
64' 9'
Width
Bedrooms
53
Depth
Starting at$1195.00What's included
STEP 1Bedrooms
STEP 2Bedrooms
STEP 3Bedrooms

Subtotal:$0
Plan Collection

How much will it cost to build?

Estimate your costs based on your location and materials.

Free Cost Instant Estimator

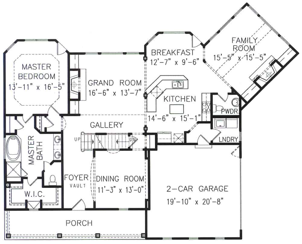
Floor Plans

Floor Plan Main Level
Floor Plan Main Level
Floor Plan Upper Level
Floor Plan Upper Level
Plan Collection

Can I modify this plan?

Yes! This plan can be customized—contact us for a free quote.

Additional Notes from Designer

NO Material lists.

House Plan Description

Welcome to this simple yet elegant Country Cape Cod style home! It covers a total heated and cooled area of 2471 square feet for the main and upper levels. A modest porch, a variety of windows, decorative dormers, and colonnades combine to enhance the exterior of the house.

 

Home Details

Summary
Plan #:198-1150
Starting at:$1195.00
Floors:2
Bedrooms:3
Full Baths:2
Half Baths:1
Garage:
Square Footage
Heated Area:2471 Sq. Ft.
First Floor:1822 Sq. Ft.
Second Floor:649 Sq. Ft.
Unheated Area:
Garage:425 Sq. Ft.
Dimensions
Width:64' 9''
Depth:53' 7''
Architectural Styles
Exterior Wall Material
Vinyl SidingWood Siding
Roofing Type
Gable/Dormer
Roofing Material
Asphalt Shingles
Ceiling Height
9 Foot Ceiling8 Foot Ceiling
Special Feature
FireplaceDining RoomMud RoomFamily RoomMain Level LaundrySplit BathroomStorageVaulted CeilingsBalconyOpen Floor Plan
Garage Type
Attached GarageSide Entry
Fireplaces
Two Fireplaces
Building Lot Type
Corner Lot
Kitchen Features
Kitchen IslandNook/Breakfast AreaWalk-in PantryPeninsula/Eating BarEat-In Kitchen
Porches and Exterior Features
Covered Front Porch
Master Suite Features
Main Floor MasterMaster BathroomWalk In ClosetSplit Master Bedroom

What’s Included

Most plan sets include the following:

icon text-secondary-400 includedExterior elevations

icon text-secondary-400 includedFoundation plan

icon text-secondary-400 includedDetailed floor plans

icon text-secondary-400 includedInterior details

icon text-secondary-400 includedRoof plan

icon text-secondary-400 includedCross-section details

icon text-secondary-400 includedElectrical layout

What’s Not Included

These items are  NOT included:

icon text-secondary-400 includedArchitectural or Engineering Stamp - handled locally if required.

icon text-secondary-400 includedSite Plan - handled locally when required.

icon text-secondary-400 includedMechanical Drawings (location of heating and air equipment and ductwork) - your subcontractors handle this.

icon text-secondary-400 includedPlumbing Drawings (drawings showing the actual plumbing pipe sizes and locations) - your subcontractors handle this.

icon text-secondary-400 includedEnergy calculations - handled locally when required.

Related House Plans

Plan Collection
Plan Collection
Plan Collection
Plan#126-1297
Starting at$1715
2257
Sq Ft
2
Story
3
Bed
2.5
Bath
2
Car
Plan Collection
Plan Collection
Plan Collection
Plan#198-1006
Starting at$2395
2587
Sq Ft
2
Story
3
Bed
2.5
Bath
3
Car
Plan Collection
Plan Collection
Plan Collection
Plan#117-1030
Starting at$1095
2112
Sq Ft
2
Story
3
Bed
2.5
Bath
2
Car
View All

Other Plans By This Designer

Plan Collection
Plan Collection
Plan Collection
Plan#198-1053
Starting at$2195
2498
Sq Ft
1.5
Story
3
Bed
3
Bath
3
Car
Plan Collection
Plan Collection
Plan Collection
Plan#198-1054
Starting at$2630
4376
Sq Ft
2
Story
4
Bed
4.5
Bath
3
Car
Plan Collection
Plan Collection
Plan Collection
Plan#198-1060
Starting at$1985
3970
Sq Ft
2
Story
5
Bed
4.5
Bath
2
Car