Estimate your costs based on your location and materials.
Yes! This plan can be customized—contact us for a free quote.
Yes! This plan can be customized—contact us for a free quote.
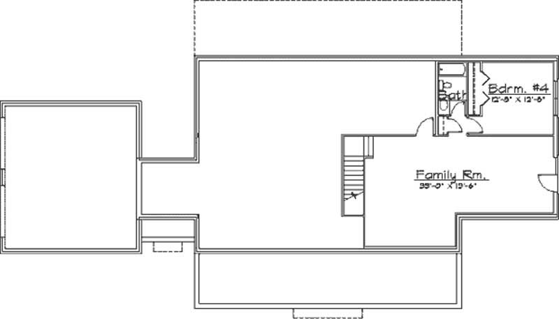
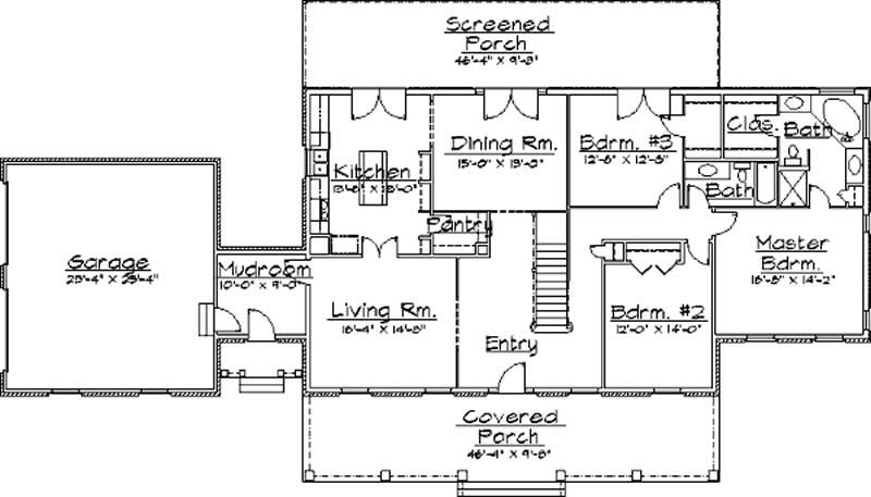
The Brazito offers the charm of a classic cape cod style home with all the conveniences of a one level home. Entertain guests in a large formal dining room, and formal living room. It also boasts a large entry, budroom and screened porch.
Estimate your costs based on your location and materials.
All sales of house plans, modifications, and other products found on this site are final. No refunds or exchanges can be given once your order has begun the fulfillment process. Please see our Policies for additional information.
All plans offered on ThePlanCollection.com are designed to conform to the local building codes when and where the original plan was drawn.
The homes as shown in photographs and renderings may differ from the actual blueprints. For more detailed information, please review the floor plan images herein carefully.
Estimate your costs based on your location and materials.