4-Bedroom, 2390 Sq Ft Mediterranean Plan with Master Bathroom

This is the front elevation for these Mediterranean Home Plans.

Images/Plans copyrighted by designer. Photos may reflect homeowner modifications.

About House Plan #159-1006

Sq Ft
2390
Sq Ft
Bedrooms
4
Bedrooms
Bathroom
3
Baths
Half Baths
0
Half Baths
Bedrooms
3
Cars
Bedrooms
1
Stories
Bedrooms
60' 0'
Width
Bedrooms
60
Depth
Starting at$1250.00What's included
STEP 1Bedrooms
STEP 2Bedrooms
STEP 3Bedrooms

Subtotal:$0
Plan Collection

How much will it cost to build?

Estimate your costs based on your location and materials.

Free Cost Instant Estimator

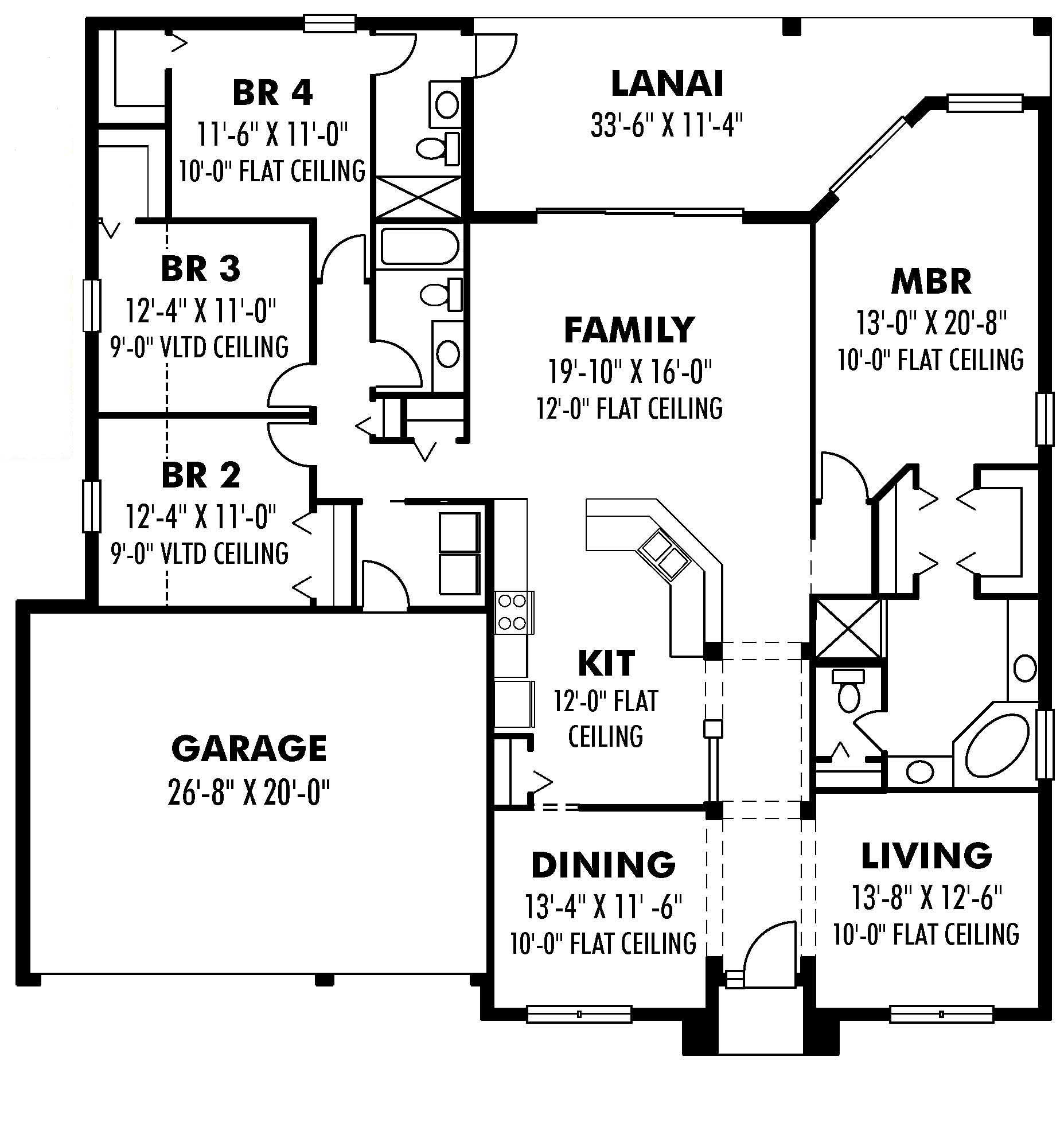
Floor Plans

Floor Plan First Story
Floor Plan First Story
Plan Collection

Can I modify this plan?

Yes! This plan can be customized—contact us for a free quote.

Additional Notes from Designer

All slab foundations from this designer are monolithic slab foundations.

House Plan Description

Mediterranean House Plans

Home Details

Summary
Plan #:159-1006
Starting at:$1250.00
Floors:1
Bedrooms:4
Full Baths:3
Half Baths:0
Garage:
Square Footage
Heated Area:2390 Sq. Ft.
First Floor:2390 Sq. Ft.
Unheated Area:
Dimensions
Depth:60' 3''
Architectural Styles
Exterior Wall Material
Stucco
Roofing Type
GableHip
Roofing Material
Asphalt Shingles
Special Feature
Dining RoomMud RoomFamily RoomMain Level Laundry
Garage Type
Attached GarageFront Entry
Exterior Wall Framing
Concrete
Kitchen Features
Nook/Breakfast AreaPeninsula/Eating BarEat-In Kitchen
Porches and Exterior Features
Covered Lanai
Master Suite Features
Main Floor MasterMaster BathroomWalk In Closet

What’s Included

Most plan sets include the following:

icon text-secondary-400 includedFoundation Plan

icon text-secondary-400 includedFloor Plan

icon text-secondary-400 includedElectrical Layout

icon text-secondary-400 includedExterior Elevations

icon text-secondary-400 includedConstruction Details

icon text-secondary-400 includedRoof Plan (Birdseye View)

What’s Not Included

These items are  NOT included:

icon text-secondary-400 includedArchitectural or Engineering Stamp - handled locally if required.

icon text-secondary-400 includedSite Plan - handled locally when required.

icon text-secondary-400 includedMechanical Drawings (location of heating and air equipment and ductwork) - your subcontractors handle this.

icon text-secondary-400 includedPlumbing Drawings (drawings showing the actual plumbing pipe sizes and locations) - your subcontractors handle this.

icon text-secondary-400 includedEnergy calculations - handled locally when required.

Related House Plans

Plan Collection
Plan Collection
Plan Collection
Plan#142-1102
Starting at$1395
2639
Sq Ft
1
Story
4
Bed
3
Bath
2
Car
Plan Collection
Plan Collection
Plan Collection
Plan#146-2173
Starting at$1015
2464
Sq Ft
1
Story
4
Bed
3
Bath
3
Car
Plan Collection
Plan Collection
Plan Collection
Plan#142-1005
Starting at$1395
2500
Sq Ft
1
Story
4
Bed
3
Bath
2
Car
View All

Other Plans By This Designer

Plan Collection
Plan Collection
Plan Collection
Plan#159-1040
Starting at$1250
2755
Sq Ft
1
Story
4
Bed
3
Bath
3
Car
Plan Collection
Plan Collection
Plan Collection
Plan#159-1004
Starting at$1000
1704
Sq Ft
1
Story
3
Bed
2
Bath
2
Car
Plan Collection
Plan Collection
Plan Collection
Plan#159-1037
Starting at$1000
1122
Sq Ft
1
Story
2
Bed
2
Bath
1
Car