Estimate your costs based on your location and materials.
Yes! This plan can be customized—contact us for a free quote.
Yes! This plan can be customized—contact us for a free quote.
PLEASE NOTE!! For this designer, The PDF that comes with the PRINT Packages (5 set+PDF and 8 set+PDF) is NOT Modifiable - it is for printing ONLY! PLEASE NOTE!! Optional Foundations (foundations that cost extra money) will take 5-10 business days to complete.
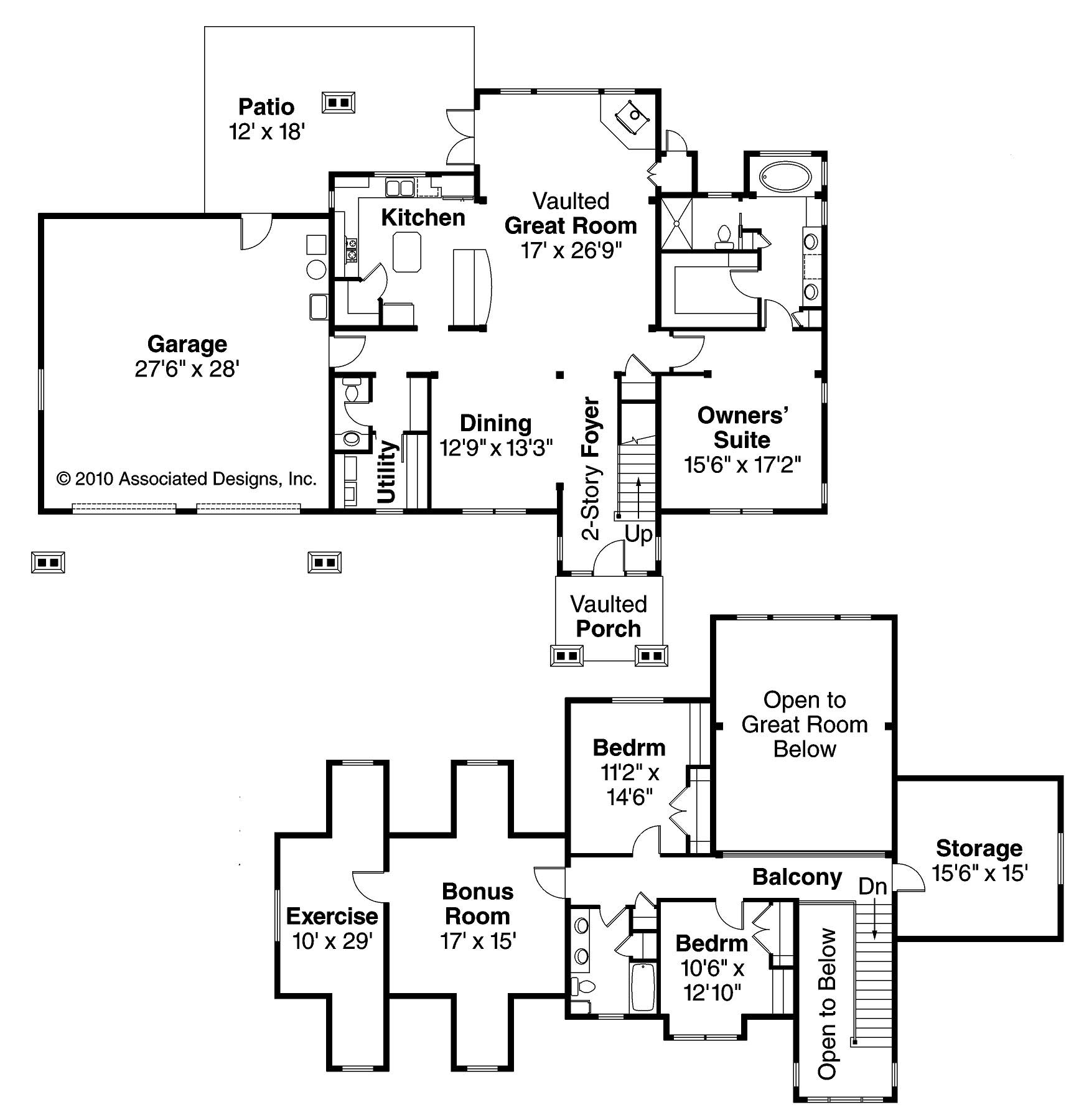
Neo-traditional home plans. This home plan could be a retreat cottage, but also fits well in a suburban neighborhood. Natural light washes into the vaulted foyer, which flows into an even brighter vaulted great room that's open to the large kitchen. The owners' suite is on the ground floor. Two bedrooms and a bathroom are upstairs, along with storage, bonus and exercise rooms. King posts and struts highlight the #108-1505's lofty vaulted entry porch. This neo-traditional home is an up-to-date combination of traditional and contemporary design features. While it could be built as a retreat...
Estimate your costs based on your location and materials.
All sales of house plans, modifications, and other products found on this site are final. No refunds or exchanges can be given once your order has begun the fulfillment process. Please see our Policies for additional information.
All plans offered on ThePlanCollection.com are designed to conform to the local building codes when and where the original plan was drawn.
The homes as shown in photographs and renderings may differ from the actual blueprints. For more detailed information, please review the floor plan images herein carefully.
Estimate your costs based on your location and materials.