4-Bedroom, 2475 Sq Ft Craftsman Plan with Master Bathroom

color rendering of this house plan

Images/Plans copyrighted by designer. Photos may reflect homeowner modifications.

About House Plan #135-1039

Sq Ft
2475
Sq Ft
Bedrooms
4
Bedrooms
Bathroom
4
Baths
Half Baths
1
Half Baths
Bedrooms
2
Cars
Bedrooms
2
Stories
Bedrooms
64' 5'
Width
Bedrooms
64
Depth
Starting at$1610.00What's included
STEP 1Bedrooms
STEP 2Bedrooms
STEP 3Bedrooms

Subtotal:$0
Plan Collection

How much will it cost to build?

Estimate your costs based on your location and materials.

Free Cost Instant Estimator

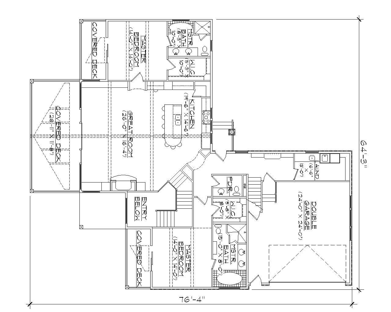
Floor Plans

Floor Plan First Story
Floor Plan First Story
Floor Plan Second Story
Floor Plan Second Story
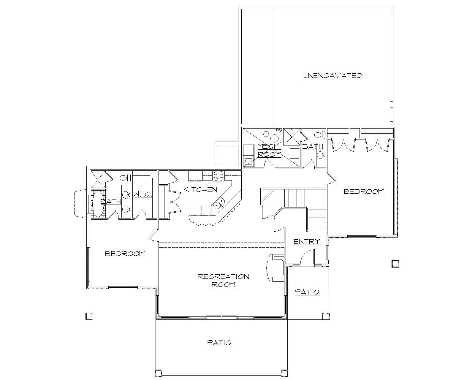
Floor Plan Basement
Floor Plan Basement
Plan Collection

Can I modify this plan?

Yes! This plan can be customized—contact us for a free quote.

House Plan Description

This Mountain style plan features many ceiling variations to give a look of size without using unneeded square footage.

Home Details

Summary
Plan #:135-1039
Starting at:$1610.00
Floors:2
Bedrooms:4
Full Baths:4
Half Baths:1
Garage:
Square Footage
Heated Area:2475 Sq. Ft.
First Floor:2064 Sq. Ft.
Second Floor:411 Sq. Ft.
Unheated Area:
Basement:1808 Sq. Ft.
Dimensions
Width:64' 5''
Depth:64' 8''
Ridge Height:38'9"' 0''
Architectural Styles
Roofing Type
Gable
Roof Pitch
7/12
Ceiling Height
9 Foot Ceiling8 Foot Ceiling
Special Feature
FireplaceBonus RoomGame RoomMain Level Laundry
Garage Type
Side Entry
Fireplaces
Two Fireplaces
Exterior Wall Framing
2x6
Building Lot Type
Up Site
Kitchen Features
Kitchen IslandPeninsula/Eating BarSecondary Kitchen
Porches and Exterior Features
Covered Front Porch
Master Suite Features
Main Floor MasterTwo or More Master SuitesMaster BathroomWalk In ClosetPrivate Deck

What’s Included

Most plan sets include the following:

icon text-secondary-400 includedCover

icon text-secondary-400 includedGeneral notes

icon text-secondary-400 includedFoundation/Footing plan

icon text-secondary-400 includedBasement plan

icon text-secondary-400 includedFloor framing plan

icon text-secondary-400 includedMain level plan

icon text-secondary-400 includedUpper-level floor framing (if applicable)

icon text-secondary-400 includedUpper floor plan (if applicable)

icon text-secondary-400 includedRoof framing plan

icon text-secondary-400 includedBuilding sections/details

icon text-secondary-400 includedElectrical layout

What’s Not Included

These items are  NOT included:

icon text-secondary-400 includedArchitectural or Engineering Stamp - handled locally if required.

icon text-secondary-400 includedSite Plan - handled locally when required.

icon text-secondary-400 includedMechanical Drawings (location of heating and air equipment and ductwork) - your subcontractors handle this.

icon text-secondary-400 includedPlumbing Drawings (drawings showing the actual plumbing pipe sizes and locations) - your subcontractors handle this.

icon text-secondary-400 includedEnergy calculations - handled locally when required.

Related House Plans

Plan Collection
Plan Collection
Plan Collection
Plan#109-1020
Starting at$1395
2493
Sq Ft
2
Story
4
Bed
4
Bath
3
Car
Plan Collection
Plan Collection
Plan Collection
Plan#132-1484
Starting at$1795
2514
Sq Ft
2
Story
4
Bed
4
Bath
2
Car
Plan Collection
Plan Collection
Plan Collection
Plan#109-1019
Starting at$1595
2964
Sq Ft
2
Story
4
Bed
4
Bath
3
Car
View All

Other Plans By This Designer

Plan Collection
Plan Collection
Plan Collection
Plan#135-1015
Starting at$0
5022
Sq Ft
2
Story
5
Bed
5
Bath
4
Car
Plan Collection
Plan Collection
Plan Collection
Plan#135-1081
Starting at$1725
2759
Sq Ft
1
Story
5
Bed
3.5
Bath
3
Car
Plan Collection
Plan Collection
Plan Collection
Plan#135-1018
Starting at$0
3102
Sq Ft
1
Story
5
Bed
3.5
Bath
3
Car