4-Bedroom, 2437 Sq Ft Craftsman Plan with Loft Space

Front elevation of Craftsman home (ThePlanCollection: House Plan #120-2749)

Images/Plans copyrighted by designer. Photos may reflect homeowner modifications.

About House Plan #120-2749

Sq Ft
2437
Sq Ft
Bedrooms
4
Bedrooms
Bathroom
4
Baths
Half Baths
0
Half Baths
Bedrooms
2
Cars
Bedrooms
2
Stories
Bedrooms
41' 0'
Width
Bedrooms
68
Depth
Starting at$1155.00What's included
STEP 1Bedrooms
STEP 2Bedrooms
STEP 3Bedrooms

Subtotal:$0
Plan Collection

How much will it cost to build?

Estimate your costs based on your location and materials.

Free Cost Instant Estimator

Floor Plans

Main Level
Main Level
Upper Level
Upper Level
Plan Collection

Can I modify this plan?

Yes! This plan can be customized—contact us for a free quote.

Additional Notes from Designer

PLEASE NOTE! If you order an optional foundation and a materials list, the materials list will NOT include the optional foundation, only the standard foundation. The designer can provide an updated materials list for a fee, so please ask for a quote!

Note: Porch sq ft figures may include deck sq ft as well.

House Plan Description

This remarkable Rustic home with Craftsman influences is 2,437 square feet with 4 bedrooms, 4 baths, and a 2-car garage. This dazzling home also features these wonderful amenities:

  • Family Room
  • Flex Room
  • Drop Zone
  • Kitchen with Walk-in Pantry
  • Master Bedroom with Walk-in Closet
  • Loft

Home Details

Summary
Plan #:120-2749
Starting at:$1155.00
Floors:2
Bedrooms:4
Full Baths:4
Half Baths:0
Garage:
Square Footage
Heated Area:2437 Sq. Ft.
First Floor:1594 Sq. Ft.
Second Floor:843 Sq. Ft.
Unheated Area:
Garage:624 Sq. Ft.
Porch:361 Sq. Ft.
Dimensions
Architectural Styles
Exterior Wall Material
Vinyl SidingRock/StoneWood SidingShakes
Roofing Type
Gable
Roofing Material
Asphalt Shingles
Roof Pitch
6/128/12
Ceiling Height
9 Foot Ceiling8 Foot Ceiling
Special Feature
FireplaceMud RoomFamily RoomMain Level LaundryLoftSplit BathroomOpen Floor Plan
Garage Type
Attached GarageFront Entry
Fireplaces
One Fireplace
Exterior Wall Framing
2x4
Building Lot Type
Narrow Lot Design
Kitchen Features
Kitchen IslandWalk-in PantryEat-In Kitchen
Porches and Exterior Features
Covered Front PorchCovered Rear Patio
Master Suite Features
Main Floor MasterMaster BathroomWalk In ClosetSplit Master Bedroom

What’s Included

Most plan sets include the following:

icon text-secondary-400 includedCover Page. Each home plan features the front elevation and informative reference sections including, general notes and design criteria*, abbreviations, and symbols for your plan.

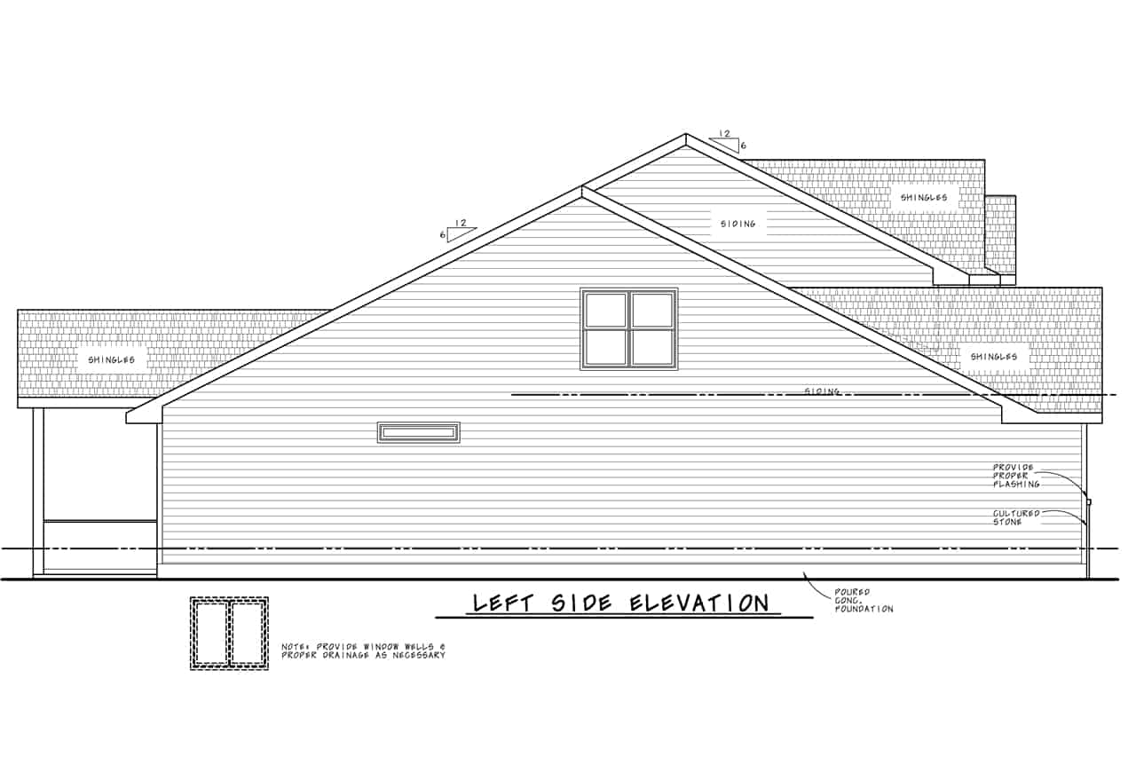
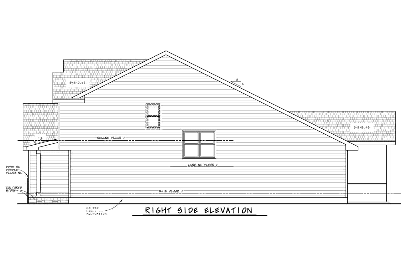
icon text-secondary-400 includedElevations. Scaled elevations for the front, rear, and sides are provided. All elevations are detailed and an aerial view of the roof is provided.

icon text-secondary-400 includedFoundations. Foundations are fully engineered for each design, whether slab or basement.

icon text-secondary-400 includedMain Level Floor Plan

icon text-secondary-400 includedSecond Level Floor Plan

icon text-secondary-400 includedElectrical layout

icon text-secondary-400 includedWall & Stair Sections

What’s Not Included

These items are  NOT included:

icon text-secondary-400 includedArchitectural or Engineering Stamp - handled locally if required.

icon text-secondary-400 includedSite Plan - handled locally when required.

icon text-secondary-400 includedMechanical Drawings (location of heating and air equipment and ductwork) - your subcontractors handle this.

icon text-secondary-400 includedPlumbing Drawings (drawings showing the actual plumbing pipe sizes and locations) - your subcontractors handle this.

icon text-secondary-400 includedEnergy calculations - handled locally when required.

Related House Plans

Plan Collection
Plan Collection
Plan Collection
Plan#141-1092
Starting at$1795
3000
Sq Ft
2
Story
4
Bed
4
Bath
3
Car
Plan Collection
Plan Collection
Plan Collection
Plan#109-1020
Starting at$1395
2493
Sq Ft
2
Story
4
Bed
4
Bath
3
Car
Plan Collection
Plan Collection
Plan Collection
Plan#176-1005
Starting at$800
2097
Sq Ft
2
Story
4
Bed
4.5
Bath
2
Car
View All

Other Plans By This Designer

Plan Collection
Plan Collection
Plan Collection
Plan#120-2655
Starting at$1005
800
Sq Ft
1
Story
2
Bed
1
Bath
0
Car
Plan Collection
Plan Collection
Plan Collection
Plan#120-2696
Starting at$1105
1642
Sq Ft
1
Story
3
Bed
2.5
Bath
2
Car
Plan Collection
Plan Collection
Plan Collection
Plan#120-1117
Starting at$1105
1699
Sq Ft
2
Story
3
Bed
2.5
Bath
2
Car