3-Bedroom, 1587 Sq Ft Ranch Plan with Walk In Closet

Front view of Ranch home (ThePlanCollection: House Plan #146-2586)

Images/Plans copyrighted by designer. Photos may reflect homeowner modifications.

About House Plan #146-2586

Sq Ft
1587
Sq Ft
Bedrooms
3
Bedrooms
Bathroom
2
Baths
Half Baths
0
Half Baths
Bedrooms
2
Cars
Bedrooms
1
Stories
Bedrooms
58' 0'
Width
Bedrooms
40
Depth
Starting at$980.00What's included
STEP 1Bedrooms
STEP 2Bedrooms
STEP 3Bedrooms

Subtotal:$0
Plan Collection

How much will it cost to build?

Estimate your costs based on your location and materials.

Free Cost Instant Estimator

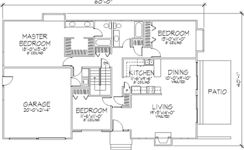
Floor Plans

Floor Plan First Story
Floor Plan First Story
Plan Collection

Can I modify this plan?

Yes! This plan can be customized—contact us for a free quote.

House Plan Description

This attractive contemporary design with its dramatic, low-pitched roof contains a lot more space than is apparent from the outside. Bedrooms are secluded on one side and to the rear; living areas and active kitchen space are grouped on the opposite side of the home. All rooms are easily reached by a central hallway. The spacious living room features a wonderful fireplace and flows into the dining room. The roomy master suite includes a dual-sink dressing area with a walk-in closet, and a private bath.

Home Details

Summary
Plan #:146-2586
Starting at:$980.00
Floors:1
Bedrooms:3
Full Baths:2
Half Baths:0
Garage:
Square Footage
Heated Area:1587 Sq. Ft.
First Floor:1587 Sq. Ft.
Unheated Area:
Basement:1587 Sq. Ft.
Dimensions
Architectural Styles
Exterior Wall Material
Rock/StoneWood Siding
Roofing Type
Gable
Ceiling Height
8 Foot Ceiling
Special Feature
FireplaceDining RoomMain Level LaundryVaulted Ceilings
Garage Type
Front Entry
Fireplaces
One Fireplace
Exterior Wall Framing
2x6
Building Lot Type
Flat Site
Kitchen Features
Peninsula/Eating Bar
Porches and Exterior Features
Covered Front Porch
Master Suite Features
Main Floor MasterMaster BathroomWalk In Closet

What’s Included

Most plan sets include the following:

What’s Not Included

These items are  NOT included:

icon text-secondary-400 includedArchitectural or Engineering Stamp - handled locally if required.

icon text-secondary-400 includedSite Plan - handled locally when required.

icon text-secondary-400 includedMechanical Drawings (location of heating and air equipment and ductwork) - your subcontractors handle this.

icon text-secondary-400 includedPlumbing Drawings (drawings showing the actual plumbing pipe sizes and locations) - your subcontractors handle this.

icon text-secondary-400 includedEnergy calculations - handled locally when required.

Related House Plans

Plan Collection
Plan Collection
Plan Collection
Plan#141-1243
Starting at$1485
1640
Sq Ft
1
Story
3
Bed
2
Bath
2
Car
Plan Collection
Plan Collection
Plan Collection
Plan#176-1012
Starting at$600
1412
Sq Ft
1
Story
3
Bed
2
Bath
0
Car
Plan Collection
Plan Collection
Plan Collection
Plan#142-1082
Starting at$1295
1834
Sq Ft
1
Story
3
Bed
2
Bath
2
Car
View All

Other Plans By This Designer

Plan Collection
Plan Collection
Plan Collection
Plan#146-2806
Starting at$980
1933
Sq Ft
2
Story
3
Bed
2
Bath
0
Car
Plan Collection
Plan Collection
Plan Collection
Plan#146-2810
Starting at$1285
3594
Sq Ft
2
Story
4
Bed
3.5
Bath
2
Car
Plan Collection
Plan Collection
Plan Collection
Plan#146-1917
Starting at$1120
2525
Sq Ft
2
Story
4
Bed
2.5
Bath
3
Car