1063 Sq Ft, 2-Bedroom Lakefront A-Frame Plan with Large Deck

Front view of A Frame home (ThePlanCollection: House Plan #146-1535)

Images/Plans copyrighted by designer. Photos may reflect homeowner modifications.

About House Plan #146-1535

Sq Ft
1063
Sq Ft
Bedrooms
2
Bedrooms
Bathroom
1
Baths
Half Baths
0
Half Baths
Bedrooms
0
Cars
Bedrooms
2
Stories
Bedrooms
35' 0'
Width
Bedrooms
56
Depth
Starting at$885.00What's included
STEP 1Bedrooms
STEP 2Bedrooms
STEP 3Bedrooms

Subtotal:$0
Plan Collection

How much will it cost to build?

Estimate your costs based on your location and materials.

Free Cost Instant Estimator

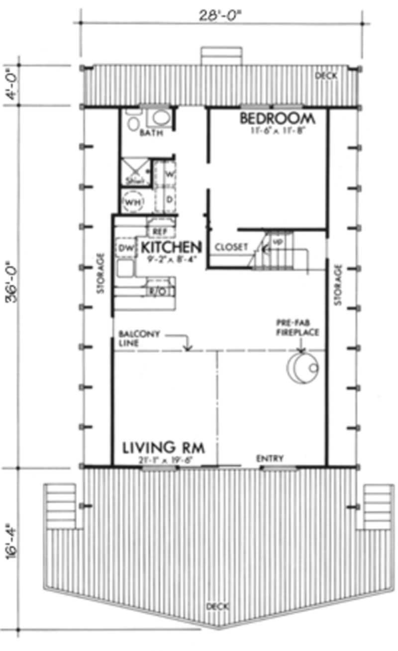
Floor Plans

Floor Plan First Story
Floor Plan First Story
Floor Plan Second Story
Floor Plan Second Story
Plan Collection

Can I modify this plan?

Yes! This plan can be customized—contact us for a free quote.

House Plan Description

Marvel at this home's expansive front deck, then step into the living room, where a breathtaking cathedral ceiling and a freestanding fireplace will warm your heart and lift your spirits. The efficient kitchen is open to this space to enhance group entertaining. Rounding out the plan are two spacious bedrooms--one of which adjoins a flexible balcony/loft--and a hall bath.

Home Details

Summary
Plan #:146-1535
Starting at:$885.00
Floors:2
Bedrooms:2
Full Baths:1
Half Baths:0
Garage:
Square Footage
Heated Area:1063 Sq. Ft.
First Floor:760 Sq. Ft.
Second Floor:303 Sq. Ft.
Unheated Area:
Dimensions
Architectural Styles
Exterior Wall Material
Wood Siding
Roofing Type
Gable
Roofing Material
Asphalt Shingles
Special Feature
FireplaceMain Level LaundryLoftStorageVaulted CeilingsBalconyOpen Floor Plan
Fireplaces
One Fireplace
Exterior Wall Framing
2x4
Building Lot Type
Flat SiteNarrow Lot DesignView Lot
Kitchen Features
Nook/Breakfast AreaPeninsula/Eating BarEat-In Kitchen
Porches and Exterior Features
Sundeck

What’s Included

Most plan sets include the following:

What’s Not Included

These items are  NOT included:

icon text-secondary-400 includedArchitectural or Engineering Stamp - handled locally if required.

icon text-secondary-400 includedSite Plan - handled locally when required.

icon text-secondary-400 includedMechanical Drawings (location of heating and air equipment and ductwork) - your subcontractors handle this.

icon text-secondary-400 includedPlumbing Drawings (drawings showing the actual plumbing pipe sizes and locations) - your subcontractors handle this.

icon text-secondary-400 includedEnergy calculations - handled locally when required.

Related House Plans

Plan Collection
Plan Collection
Plan Collection
Plan#176-1003
Starting at$600
1122
Sq Ft
2
Story
2
Bed
1
Bath
0
Car
Plan Collection
Plan Collection
Plan Collection
Plan#177-1027
Starting at$1040
849
Sq Ft
2
Story
2
Bed
1
Bath
0
Car
Plan Collection
Plan Collection
Plan Collection
Plan#126-1237
Starting at$1180
996
Sq Ft
2
Story
2
Bed
1.5
Bath
2
Car
View All

Other Plans By This Designer

Plan Collection
Plan Collection
Plan Collection
Plan#146-2806
Starting at$980
1933
Sq Ft
2
Story
3
Bed
2
Bath
0
Car
Plan Collection
Plan Collection
Plan Collection
Plan#146-2810
Starting at$1285
3594
Sq Ft
2
Story
4
Bed
3.5
Bath
2
Car
Plan Collection
Plan Collection
Plan Collection
Plan#146-1917
Starting at$1120
2525
Sq Ft
2
Story
4
Bed
2.5
Bath
3
Car