3-Bedroom, 3032 Sq Ft Cape Cod Plan with Covered Rear Porch

Front view of Southern home (ThePlanCollection: House Plan #146-2566)

Images/Plans copyrighted by designer. Photos may reflect homeowner modifications.

About House Plan #146-2566

Sq Ft
3032
Sq Ft
Bedrooms
3
Bedrooms
Bathroom
4
Baths
Half Baths
1
Half Baths
Bedrooms
3
Cars
Bedrooms
2
Stories
Bedrooms
74' 0'
Width
Bedrooms
82
Depth
Starting at$1213.25What's included
STEP 1Bedrooms
STEP 2Bedrooms
STEP 3Bedrooms

Subtotal:$0
Plan Collection

How much will it cost to build?

Estimate your costs based on your location and materials.

Free Cost Instant Estimator

Floor Plans

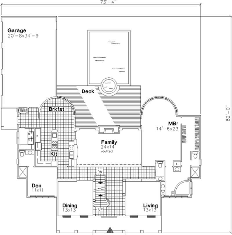
Floor Plan First Story
Floor Plan First Story
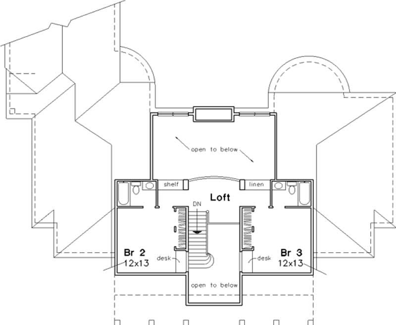
Floor Plan Second Story
Floor Plan Second Story
Plan Collection

Can I modify this plan?

Yes! This plan can be customized—contact us for a free quote.

House Plan Description

Southern nights beckon their down-home welcome on the front porch of this plantation-style home. The formal living and dining rooms flank the two-story entry with loft bridge above. Straight ahead of the entry is the vaulted family room with center fireplace focal point. The island kitchen overlooks a semi-circular breakfast room with handy rear deck and three-car garage access. The den features a private bath for overnight guests. The main-floor master suite features a sitting sunroom encircled by windows. There is also a walk-through closet and a spacious master bath with garden tub and...

Home Details

Summary
Plan #:146-2566
Starting at:$1213.25
Floors:2
Bedrooms:3
Full Baths:4
Half Baths:1
Garage:
Square Footage
Heated Area:3032 Sq. Ft.
First Floor:2463 Sq. Ft.
Second Floor:569 Sq. Ft.
Unheated Area:
Dimensions
Ridge Height:27' 0''
Architectural Styles
Exterior Wall Material
Wood Siding
Roofing Type
Gable
Roofing Material
Asphalt Shingles
Special Feature
FireplaceSwimming PoolDining RoomFamily RoomMain Level LaundryLoftDenVaulted CeilingsBalcony
Garage Type
Attached GarageSide Entry
Fireplaces
One Fireplace
Exterior Wall Framing
2x6
Building Lot Type
Flat Site
Kitchen Features
Kitchen IslandNook/Breakfast AreaEat-In Kitchen
Porches and Exterior Features
Covered Front PorchSundeck
Master Suite Features
Main Floor MasterMaster BathroomWalk In Closet

What’s Included

Most plan sets include the following:

What’s Not Included

These items are  NOT included:

icon text-secondary-400 includedArchitectural or Engineering Stamp - handled locally if required.

icon text-secondary-400 includedSite Plan - handled locally when required.

icon text-secondary-400 includedMechanical Drawings (location of heating and air equipment and ductwork) - your subcontractors handle this.

icon text-secondary-400 includedPlumbing Drawings (drawings showing the actual plumbing pipe sizes and locations) - your subcontractors handle this.

icon text-secondary-400 includedEnergy calculations - handled locally when required.

Related House Plans

Plan Collection
Plan Collection
Plan Collection
Plan#180-1047
Starting at$1550
3314
Sq Ft
2
Story
3
Bed
4.5
Bath
3
Car
Plan Collection
Plan Collection
Plan Collection
Plan#180-1021
Starting at$1650
3660
Sq Ft
2
Story
3
Bed
4.5
Bath
3
Car
Plan Collection
Plan Collection
Plan Collection
Plan#132-1480
Starting at$1760
2464
Sq Ft
2
Story
3
Bed
4.5
Bath
0
Car
View All

Other Plans By This Designer

Plan Collection
Plan Collection
Plan Collection
Plan#146-2806
Starting at$980
1933
Sq Ft
2
Story
3
Bed
2
Bath
0
Car
Plan Collection
Plan Collection
Plan Collection
Plan#146-2810
Starting at$1285
3594
Sq Ft
2
Story
4
Bed
3.5
Bath
2
Car
Plan Collection
Plan Collection
Plan Collection
Plan#146-1917
Starting at$1120
2525
Sq Ft
2
Story
4
Bed
2.5
Bath
3
Car