Estimate your costs based on your location and materials.
Yes! This plan can be customized—contact us for a free quote.
Yes! This plan can be customized—contact us for a free quote.
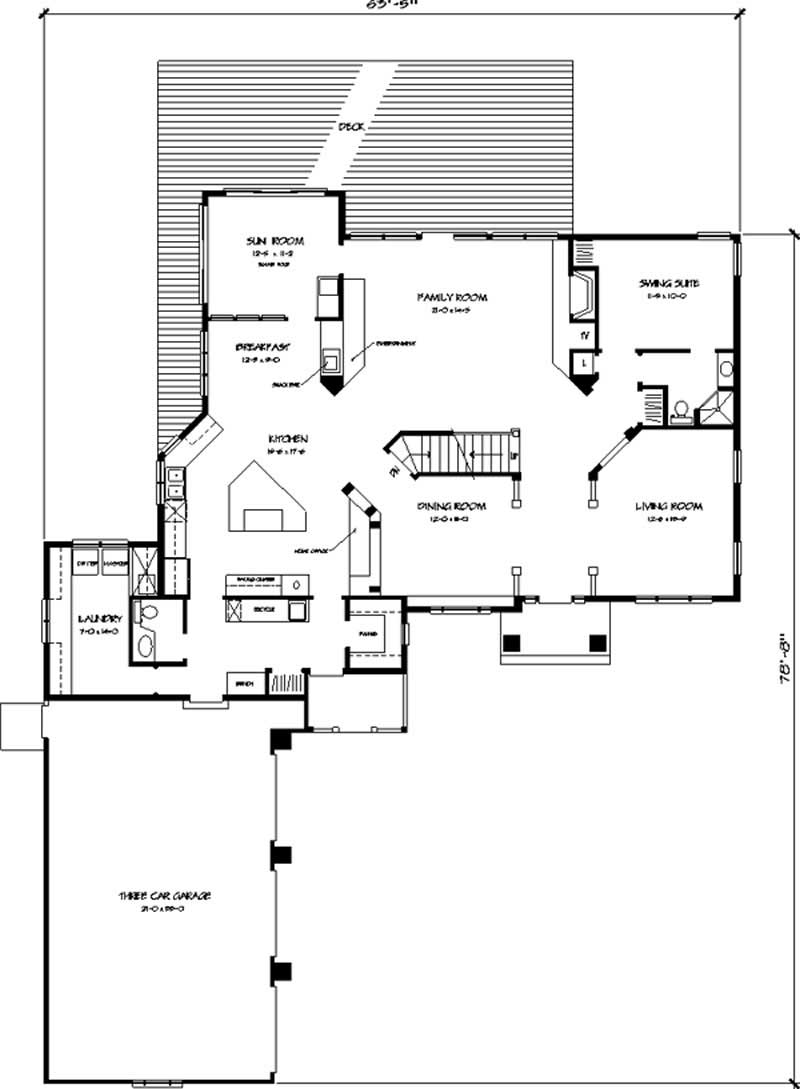
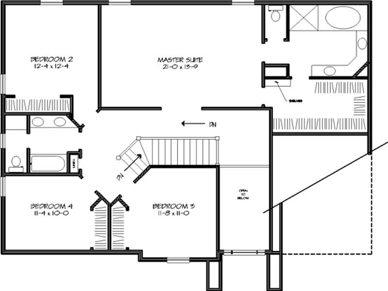
Designed with today's lifestyles in mind, this beautiful home has a thoroughly modern floor plan. Past the columned entry, the impressive two-story-high foyer is brightened by a high transom window. Columns and half-walls define the formal dining room and the intimate living room, which boasts an 18-ft. vaulted ceiling. The spacious family room features a built-in entertainment center, a warm fireplace and sliding glass doors to a huge backyard deck. A French-style door opens to a skylighted sun room which also expands to the deck. A gardening sink or wet bar is also offered. The roomy...
Estimate your costs based on your location and materials.
All sales of house plans, modifications, and other products found on this site are final. No refunds or exchanges can be given once your order has begun the fulfillment process. Please see our Policies for additional information.
All plans offered on ThePlanCollection.com are designed to conform to the local building codes when and where the original plan was drawn.
The homes as shown in photographs and renderings may differ from the actual blueprints. For more detailed information, please review the floor plan images herein carefully.
Estimate your costs based on your location and materials.