2-Bedroom, 2375 Sq Ft Country Plan with a Bonus Room

Front elevation of Cottage home (ThePlanCollection: House Plan #115-1111)

Images/Plans copyrighted by designer. Photos may reflect homeowner modifications.

About House Plan #115-1111

Sq Ft
2375
Sq Ft
Bedrooms
2
Bedrooms
Bathroom
2
Baths
Half Baths
1
Half Baths
Bedrooms
2
Cars
Bedrooms
2
Stories
Bedrooms
52' 0'
Width
Bedrooms
45
Depth
Starting at$1600.00What's included
STEP 1Bedrooms
STEP 2Bedrooms
STEP 3Bedrooms

Subtotal:$0
Plan Collection

How much will it cost to build?

Estimate your costs based on your location and materials.

Free Cost Instant Estimator

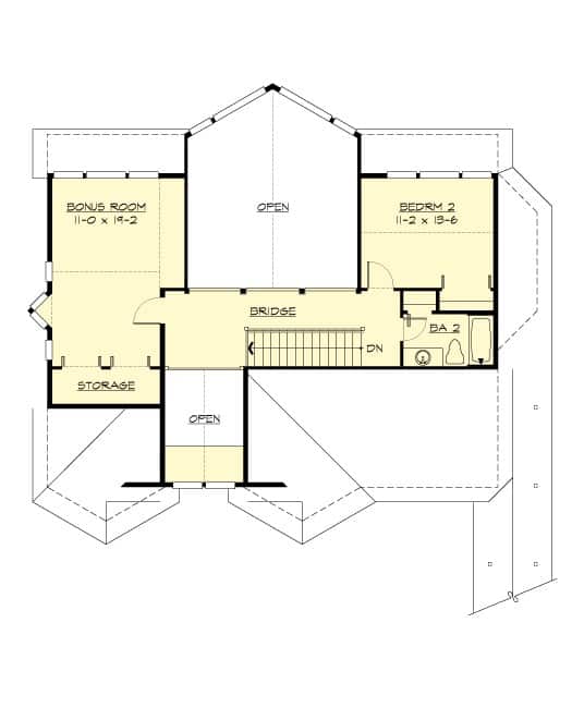
Floor Plans

Main Level
Main Level
Upper Level
Upper Level
Garage with 2-Car Layout
Garage with 2-Car Layout
Plan Collection

Can I modify this plan?

Yes! This plan can be customized—contact us for a free quote.

Additional Notes from Designer

Please Note: The plans by this designer DO NOT include electrical plans or electrical layout plans. NOTE: If you are building this home in Washington State, please contact us BEFORE placing your order!

House Plan Description

This gorgeous and amazing houseplan has many features to offer you. You have a beautiful master bedroom with a relaxing master bath and walk-in closet on the main floor. The kitchen is very open and has an island in the middle which gives you extra room for cooking. In the dining area you have a door leading out to a large deck where you can have barbeques with the family.

Home Details

Summary
Plan #:115-1111
Starting at:$1600.00
Floors:2
Bedrooms:2
Full Baths:2
Half Baths:1
Garage:
Square Footage
Heated Area:2375 Sq. Ft.
First Floor:1715 Sq. Ft.
Second Floor:660 Sq. Ft.
Unheated Area:
Garage:660 Sq. Ft.
Dimensions
Ridge Height:24' 0''
Architectural Styles
Exterior Wall Material
Vinyl Siding
Roof Pitch
8/12
Special Feature
Dining RoomHome OfficeBonus RoomMain Level LaundryStorageDenOpen Floor Plan
Garage Type
Detached GarageFront Entry
Porches and Exterior Features
BreezewaySundeck
Master Suite Features
Main Floor MasterMaster BathroomWalk In ClosetSplit Master Bedroom

What’s Included

Most plan sets include the following:

icon text-secondary-400 includedCover Sheet

icon text-secondary-400 includedSchedule Sheet

icon text-secondary-400 includedDetail Sheet

icon text-secondary-400 includedFoundation Plan Sheet

icon text-secondary-400 includedFloor Plan/Floor Framing Sheet(s)

icon text-secondary-400 includedRoof Framing Plan Sheet

icon text-secondary-400 includedElevation Sheet

icon text-secondary-400 includedBuilding Section Sheet

What’s Not Included

These items are  NOT included:

icon text-secondary-400 includedArchitectural or Engineering Stamp - handled locally if required.

icon text-secondary-400 includedSite Plan - handled locally when required.

icon text-secondary-400 includedMechanical Drawings (location of heating and air equipment and ductwork) - your subcontractors handle this.

icon text-secondary-400 includedPlumbing Drawings (drawings showing the actual plumbing pipe sizes and locations) - your subcontractors handle this.

icon text-secondary-400 includedEnergy calculations - handled locally when required.

Related House Plans

Plan Collection
Plan Collection
Plan Collection
Plan#132-1186
Starting at$1145
2051
Sq Ft
2
Story
2
Bed
2
Bath
0
Car
Plan Collection
Plan Collection
Plan Collection
Plan#108-1550
Starting at$900
1987
Sq Ft
2
Story
2
Bed
2.5
Bath
1
Car
Plan Collection
Plan Collection
Plan Collection
Plan#161-1050
Starting at$1550
1874
Sq Ft
2
Story
2
Bed
2.5
Bath
1
Car
View All

Other Plans By This Designer

Plan Collection
Plan Collection
Plan Collection
Plan#115-1370
Starting at$1400
1000
Sq Ft
2
Story
2
Bed
2
Bath
0
Car
Plan Collection
Plan Collection
Plan Collection
Plan#115-1150
Starting at$1600
2025
Sq Ft
2
Story
3
Bed
2.5
Bath
3
Car
Plan Collection
Plan Collection
Plan Collection
Plan#115-1371
Starting at$1400
1000
Sq Ft
2
Story
2
Bed
2
Bath
0
Car