Estimate your costs based on your location and materials.
Yes! This plan can be customized—contact us for a free quote.
Yes! This plan can be customized—contact us for a free quote.
PLEASE NOTE: Materials Lists are based on the STOCK plan ONLY without modifications! Custom materials lists are available if you modify a plan. Please ask for a quote.
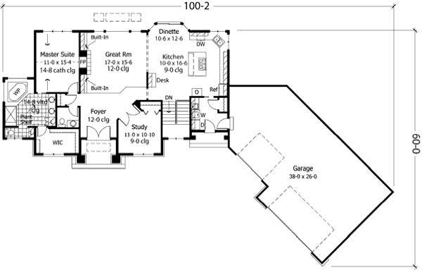
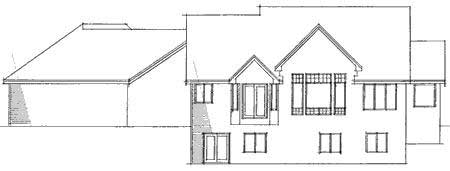
Combining the clean lines of European style with the stone-and-shingle siding and tapered columns of the Craftsman style, this home successfully attains "rustic elegance." Double doors invite you inside, where a vast Great Room tempts you to curl up next to the warm fireplace. The gem of the vaulted master suite is the corner garden tub with wide, scenic windows to help you relax and unwind. The basement is a treat, with its own family room and fireplace, as well as a corner bar.
Estimate your costs based on your location and materials.
All sales of house plans, modifications, and other products found on this site are final. No refunds or exchanges can be given once your order has begun the fulfillment process. Please see our Policies for additional information.
All plans offered on ThePlanCollection.com are designed to conform to the local building codes when and where the original plan was drawn.
The homes as shown in photographs and renderings may differ from the actual blueprints. For more detailed information, please review the floor plan images herein carefully.
Estimate your costs based on your location and materials.