4-Bedroom, 2569 Sq Ft Country Plan with Main Floor Master

Front view of Country home (ThePlanCollection: House Plan #146-1594)

Images/Plans copyrighted by designer. Photos may reflect homeowner modifications.

About House Plan #146-1594

Sq Ft
2569
Sq Ft
Bedrooms
4
Bedrooms
Bathroom
2
Baths
Half Baths
1
Half Baths
Bedrooms
2
Cars
Bedrooms
2
Stories
Bedrooms
58' 0'
Width
Bedrooms
43
Depth
Starting at$1120.00What's included
STEP 1Bedrooms
STEP 2Bedrooms
STEP 3Bedrooms

Subtotal:$0
Plan Collection

How much will it cost to build?

Estimate your costs based on your location and materials.

Free Cost Instant Estimator

Floor Plans

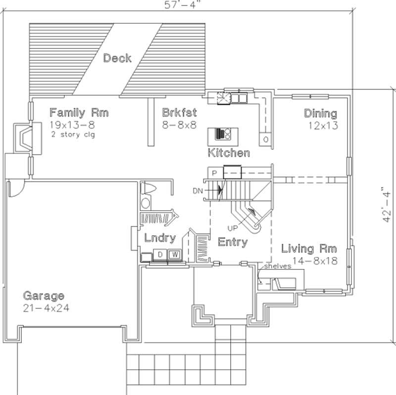
Floor Plan First Story
Floor Plan First Story
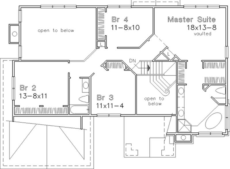
Floor Plan Second Story
Floor Plan Second Story
Plan Collection

Can I modify this plan?

Yes! This plan can be customized—contact us for a free quote.

House Plan Description

This European-style home has a distinguished brick exterior that presents a sophisticated, urban image while retaining its inviting country charm. The majestic covered entrance leads into the two-story-high entry foyer, which is brightened by sidelights and an arched transom. The spacious living room is enhanced by dramatic corner windows, a unique fireplace and built-in shelves. Attractive wood posts define the dining area, which is perfect for formal events. The central island kitchen gives way to a sunny breakfast nook with sliding door access to a delightful deck. A 36-in.-high wall...

Home Details

Summary
Plan #:146-1594
Starting at:$1120.00
Floors:2
Bedrooms:4
Full Baths:2
Half Baths:1
Garage:
Square Footage
Heated Area:2569 Sq. Ft.
First Floor:1374 Sq. Ft.
Second Floor:1195 Sq. Ft.
Unheated Area:
Dimensions
Ridge Height:27' 0''
Architectural Styles
Exterior Wall Material
BrickWood Siding
Roofing Type
Gable
Roofing Material
Asphalt Shingles
Special Feature
FireplaceDining RoomMud RoomFamily RoomMain Level LaundrySplit BathroomVaulted CeilingsBalcony
Garage Type
Attached GarageFront Entry
Fireplaces
One Fireplace
Exterior Wall Framing
2x6
Building Lot Type
Flat Site
Kitchen Features
Kitchen IslandNook/Breakfast AreaWalk-in PantryEat-In Kitchen
Porches and Exterior Features
Covered Front PorchSundeck
Master Suite Features
Master BathroomWalk In ClosetSecond Floor Master

What’s Included

Most plan sets include the following:

What’s Not Included

These items are  NOT included:

icon text-secondary-400 includedArchitectural or Engineering Stamp - handled locally if required.

icon text-secondary-400 includedSite Plan - handled locally when required.

icon text-secondary-400 includedMechanical Drawings (location of heating and air equipment and ductwork) - your subcontractors handle this.

icon text-secondary-400 includedPlumbing Drawings (drawings showing the actual plumbing pipe sizes and locations) - your subcontractors handle this.

icon text-secondary-400 includedEnergy calculations - handled locally when required.

Related House Plans

Plan Collection
Plan Collection
Plan Collection
Plan#169-1035
Starting at$720
2482
Sq Ft
2
Story
4
Bed
2.5
Bath
3
Car
Plan Collection
Plan Collection
Plan Collection
Plan#163-1001
Starting at$1230
2757
Sq Ft
2
Story
4
Bed
2.5
Bath
2
Car
Plan Collection
Plan Collection
Plan Collection
Plan#178-1080
Starting at$1005
1980
Sq Ft
2
Story
4
Bed
2.5
Bath
2
Car
View All

Other Plans By This Designer

Plan Collection
Plan Collection
Plan Collection
Plan#146-2806
Starting at$980
1933
Sq Ft
2
Story
3
Bed
2
Bath
0
Car
Plan Collection
Plan Collection
Plan Collection
Plan#146-2810
Starting at$1285
3594
Sq Ft
2
Story
4
Bed
3.5
Bath
2
Car
Plan Collection
Plan Collection
Plan Collection
Plan#146-1917
Starting at$1120
2525
Sq Ft
2
Story
4
Bed
2.5
Bath
3
Car