Estimate your costs based on your location and materials.
Yes! This plan can be customized—contact us for a free quote.
Yes! This plan can be customized—contact us for a free quote.
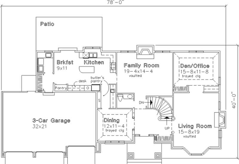
This European-style home has a vaulted entry and a lovely bay creating a rich formal exterior for this two-story home. The vaulted living room features a bay window, a fireplace and access to the den, which features a trayed ceiling. The spacious master suite boasts two walk-in closets and a private bath with double sinks, a window tub and a separate shower. Three additional bedrooms, a full bath and a balcony that overlooks the family room below complete the second floor.
Estimate your costs based on your location and materials.
All sales of house plans, modifications, and other products found on this site are final. No refunds or exchanges can be given once your order has begun the fulfillment process. Please see our Policies for additional information.
All plans offered on ThePlanCollection.com are designed to conform to the local building codes when and where the original plan was drawn.
The homes as shown in photographs and renderings may differ from the actual blueprints. For more detailed information, please review the floor plan images herein carefully.
Estimate your costs based on your location and materials.