3-Bedroom, 4110 Sq Ft Country Plan with Peninsula/Eating Bar

Front view of Country home (ThePlanCollection: House Plan #146-2862)

Images/Plans copyrighted by designer. Photos may reflect homeowner modifications.

About House Plan #146-2862

Sq Ft
4110
Sq Ft
Bedrooms
3
Bedrooms
Bathroom
4
Baths
Half Baths
1
Half Baths
Bedrooms
3
Cars
Bedrooms
2
Stories
Bedrooms
71' 0'
Width
Bedrooms
97
Depth
Starting at$1360.00What's included
STEP 1Bedrooms
STEP 2Bedrooms
STEP 3Bedrooms

Subtotal:$0
Plan Collection

How much will it cost to build?

Estimate your costs based on your location and materials.

Free Cost Instant Estimator

Floor Plans

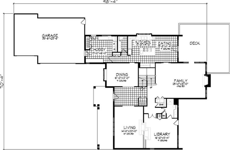
Main Level
Main Level
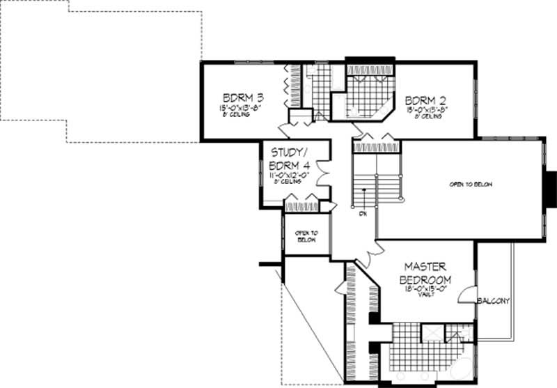
Upper Level
Upper Level
Plan Collection

Can I modify this plan?

Yes! This plan can be customized—contact us for a free quote.

House Plan Description

The super-sized family room overlooks the deck and has a sloping ceiling and transom windows beside the imposing fireplace wall. The kitchen features an island cooktop and plenty of eat-in space, while the dining room is graced with a lovely bay window. The deluxe master suite boasts a luxurious bath and huge walk-in closet for these set of house plans.

Home Details

Summary
Plan #:146-2862
Starting at:$1360.00
Floors:2
Bedrooms:3
Full Baths:4
Half Baths:1
Garage:
Square Footage
Heated Area:4110 Sq. Ft.
First Floor:2464 Sq. Ft.
Second Floor:1646 Sq. Ft.
Unheated Area:
Basement:2464 Sq. Ft.
Dimensions
Architectural Styles
Exterior Wall Material
Stucco
Roofing Type
Gable
Special Feature
FireplaceDining RoomHome OfficeFamily RoomLibraryWorkshop
Garage Type
Attached GarageCourtyard Entry
Fireplaces
Three Fireplaces
Kitchen Features
Kitchen IslandEat-In Kitchen
Master Suite Features
Master BathroomWalk In ClosetSecond Floor Master

What’s Included

Most plan sets include the following:

What’s Not Included

These items are  NOT included:

icon text-secondary-400 includedArchitectural or Engineering Stamp - handled locally if required.

icon text-secondary-400 includedSite Plan - handled locally when required.

icon text-secondary-400 includedMechanical Drawings (location of heating and air equipment and ductwork) - your subcontractors handle this.

icon text-secondary-400 includedPlumbing Drawings (drawings showing the actual plumbing pipe sizes and locations) - your subcontractors handle this.

icon text-secondary-400 includedEnergy calculations - handled locally when required.

Related House Plans

Plan Collection
Plan Collection
Plan Collection
Plan#180-1047
Starting at$1550
3314
Sq Ft
2
Story
3
Bed
4.5
Bath
3
Car
Plan Collection
Plan Collection
Plan Collection
Plan#202-1002
Starting at$1200
3959
Sq Ft
2
Story
3
Bed
4.5
Bath
3
Car
Plan Collection
Plan Collection
Plan Collection
Plan#180-1021
Starting at$1650
3660
Sq Ft
2
Story
3
Bed
4.5
Bath
3
Car
View All

Other Plans By This Designer

Plan Collection
Plan Collection
Plan Collection
Plan#146-2806
Starting at$980
1933
Sq Ft
2
Story
3
Bed
2
Bath
0
Car
Plan Collection
Plan Collection
Plan Collection
Plan#146-2810
Starting at$1285
3594
Sq Ft
2
Story
4
Bed
3.5
Bath
2
Car
Plan Collection
Plan Collection
Plan Collection
Plan#146-1917
Starting at$1120
2525
Sq Ft
2
Story
4
Bed
2.5
Bath
3
Car