Front view of Duplex/Multi-Unit home (ThePlanCollection: House Plan #146-2128)

Images/Plans copyrighted by designer. Photos may reflect homeowner modifications.

About House Plan #146-2128

Sq Ft
1385
Sq Ft
Bedrooms
2
Bedrooms
Bathroom
1
Baths
Half Baths
1
Half Baths
Bedrooms
1
Cars
Bedrooms
2
Stories
Bedrooms
61' 0'
Width
Bedrooms
54
Depth
Starting at$1645.00What's included
STEP 1Bedrooms
STEP 2Bedrooms
STEP 3Bedrooms

Subtotal:$0
Plan Collection

How much will it cost to build?

Estimate your costs based on your location and materials.

Free Cost Instant Estimator

Floor Plans

Main Level
Main Level
Upper Level
Upper Level
Plan Collection

Can I modify this plan?

Yes! This plan can be customized—contact us for a free quote.

House Plan Description

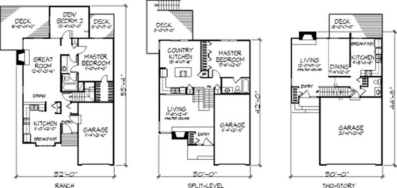
This multi-unit design offers three exciting floor plans. Unit A is a one-level design that's perfect for empty nesters. A Great Room with a fireplace opens to a rear deck. The master bedroom has private access to a full bath that it shares with a den, which may be utilized as a guest room. The kitchen has a sunny breakfast nook. Unit B is a multi-level design. A big country kitchen with deck access overlooks the living room, which features a fireplace. The master bedroom has private access to a full bath. On the lower level, two secondary bedrooms flank a family room. Unit C offers a...

Home Details

Summary
Plan #:146-2128
Starting at:$1645.00
Floors:2
Bedrooms:2
Full Baths:1
Half Baths:1
Garage:
Square Footage
Heated Area:1385 Sq. Ft.
First Floor:567 Sq. Ft.
Second Floor:818 Sq. Ft.
Unheated Area:
Basement:567 Sq. Ft.
Dimensions
Ridge Height:18-0' 0''
Architectural Styles
Exterior Wall Material
Wood Siding
Roofing Type
Gable
Special Feature
FireplaceDining RoomGuest RoomFamily Room
Garage Type
Attached GarageFront Entry
Fireplaces
One Fireplace
Exterior Wall Framing
2x4

What’s Included

Most plan sets include the following:

What’s Not Included

These items are  NOT included:

icon text-secondary-400 includedArchitectural or Engineering Stamp - handled locally if required.

icon text-secondary-400 includedSite Plan - handled locally when required.

icon text-secondary-400 includedMechanical Drawings (location of heating and air equipment and ductwork) - your subcontractors handle this.

icon text-secondary-400 includedPlumbing Drawings (drawings showing the actual plumbing pipe sizes and locations) - your subcontractors handle this.

icon text-secondary-400 includedEnergy calculations - handled locally when required.

Related House Plans

Plan Collection
Plan Collection
Plan Collection
Plan#146-2041
Starting at$1425
1176
Sq Ft
2
Story
2
Bed
1.5
Bath
2
Car
Plan Collection
Plan Collection
Plan Collection
Plan#145-1841
Starting at$800
1104
Sq Ft
2
Story
2
Bed
1
Bath
2
Car
Plan Collection
Plan Collection
Plan Collection
Plan#146-2119
Starting at$1645
1544
Sq Ft
2
Story
2
Bed
1.5
Bath
1
Car
View All

Other Plans By This Designer

Plan Collection
Plan Collection
Plan Collection
Plan#146-2806
Starting at$980
1933
Sq Ft
2
Story
3
Bed
2
Bath
0
Car
Plan Collection
Plan Collection
Plan Collection
Plan#146-2810
Starting at$1285
3594
Sq Ft
2
Story
4
Bed
3.5
Bath
2
Car
Plan Collection
Plan Collection
Plan Collection
Plan#146-1917
Starting at$1120
2525
Sq Ft
2
Story
4
Bed
2.5
Bath
3
Car