3-Bedroom, 2507 Sq Ft Cape Cod Plan with Master Bathroom

Front view of European home (ThePlanCollection: House Plan #146-2071)

Images/Plans copyrighted by designer. Photos may reflect homeowner modifications.

About House Plan #146-2071

Sq Ft
2507
Sq Ft
Bedrooms
3
Bedrooms
Bathroom
2
Baths
Half Baths
1
Half Baths
Bedrooms
2
Cars
Bedrooms
2
Stories
Bedrooms
54' 0'
Width
Bedrooms
55
Depth
Starting at$1120.00What's included
STEP 1Bedrooms
STEP 2Bedrooms
STEP 3Bedrooms

Subtotal:$0
Plan Collection

How much will it cost to build?

Estimate your costs based on your location and materials.

Free Cost Instant Estimator

Floor Plans

Main Level
Main Level
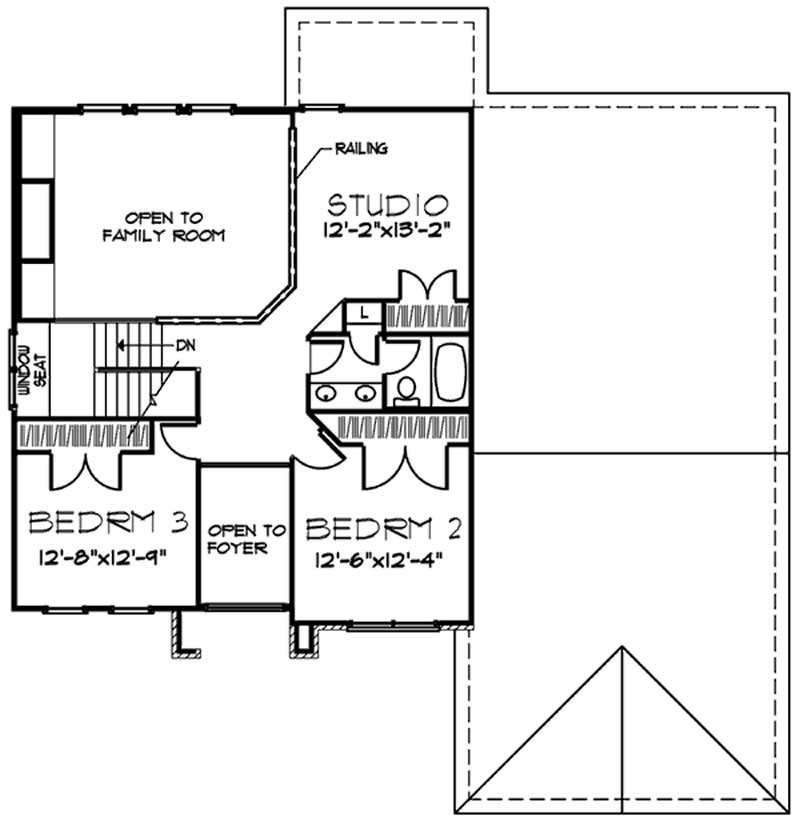
Upper Level
Upper Level
Plan Collection

Can I modify this plan?

Yes! This plan can be customized—contact us for a free quote.

House Plan Description

This home's design is most distinguished by its abundance of high ceilings, beginning with the foyer, which is flanked by two notable formal spaces, the trayed dining room and the sunken living room. The spacious kitchen offers a wraparound snack counter into both the huge family room with fireplace and the sunny breakfast nook with access to the backyard. Double doors lead to the master bedroom's sleeping area, which in turn leads through double doors to its private bath with a dual-sink vanity and a great walk-in closet.

Home Details

Summary
Plan #:146-2071
Starting at:$1120.00
Floors:2
Bedrooms:3
Full Baths:2
Half Baths:1
Garage:
Square Footage
Heated Area:2507 Sq. Ft.
First Floor:1764 Sq. Ft.
Second Floor:743 Sq. Ft.
Unheated Area:
Basement:650 Sq. Ft.
Dimensions
Ridge Height:29' 0''
Architectural Styles
Exterior Wall Material
Brick
Roofing Type
Gable
Special Feature
FireplaceDining RoomFamily Room
Garage Type
Attached GarageSide Entry
Fireplaces
One Fireplace
Exterior Wall Framing
2x4

What’s Included

Most plan sets include the following:

What’s Not Included

These items are  NOT included:

icon text-secondary-400 includedArchitectural or Engineering Stamp - handled locally if required.

icon text-secondary-400 includedSite Plan - handled locally when required.

icon text-secondary-400 includedMechanical Drawings (location of heating and air equipment and ductwork) - your subcontractors handle this.

icon text-secondary-400 includedPlumbing Drawings (drawings showing the actual plumbing pipe sizes and locations) - your subcontractors handle this.

icon text-secondary-400 includedEnergy calculations - handled locally when required.

Related House Plans

Plan Collection
Plan Collection
Plan Collection
Plan#116-1073
Starting at$0
2082
Sq Ft
2
Story
3
Bed
2.5
Bath
2
Car
Plan Collection
Plan Collection
Plan Collection
Plan#137-1483
Starting at$800
2087
Sq Ft
2
Story
3
Bed
2.5
Bath
2
Car
Plan Collection
Plan Collection
Plan Collection
Plan#146-2868
Starting at$1015
2002
Sq Ft
2
Story
3
Bed
2.5
Bath
2
Car
View All

Other Plans By This Designer

Plan Collection
Plan Collection
Plan Collection
Plan#146-2806
Starting at$980
1933
Sq Ft
2
Story
3
Bed
2
Bath
0
Car
Plan Collection
Plan Collection
Plan Collection
Plan#146-2810
Starting at$1285
3594
Sq Ft
2
Story
4
Bed
3.5
Bath
2
Car
Plan Collection
Plan Collection
Plan Collection
Plan#146-1917
Starting at$1120
2525
Sq Ft
2
Story
4
Bed
2.5
Bath
3
Car