3-Bedroom, 3537 Sq Ft European Plan with Peninsula/Eating Bar

Front view of European home (ThePlanCollection: House Plan #146-1907)

Images/Plans copyrighted by designer. Photos may reflect homeowner modifications.

About House Plan #146-1907

Sq Ft
3537
Sq Ft
Bedrooms
3
Bedrooms
Bathroom
2
Baths
Half Baths
1
Half Baths
Bedrooms
3
Cars
Bedrooms
2
Stories
Bedrooms
85' 0'
Width
Bedrooms
62
Depth
Starting at$1285.00What's included
STEP 1Bedrooms
STEP 2Bedrooms
STEP 3Bedrooms

Subtotal:$0
Plan Collection

How much will it cost to build?

Estimate your costs based on your location and materials.

Free Cost Instant Estimator

Floor Plans

Main Level
Main Level
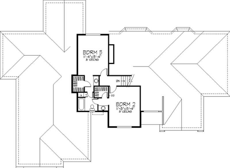
Upper Level
Upper Level
Plan Collection

Can I modify this plan?

Yes! This plan can be customized—contact us for a free quote.

House Plan Description

The family room, breakfast nook and sun room provide homey living spaces, while the living and dining rooms are ideally suited for formal entertaining. The master suite is entered through stylish double doors, and has a bayed sitting area, dual sinks, a huge walk-in closet, a private toilet, a shower and a whirlpool tub. Upstairs, two bedrooms and a full bath offer a great retreat for kids.

Home Details

Summary
Plan #:146-1907
Starting at:$1285.00
Floors:2
Bedrooms:3
Full Baths:2
Half Baths:1
Garage:
Square Footage
Heated Area:3537 Sq. Ft.
First Floor:2455 Sq. Ft.
Second Floor:1082 Sq. Ft.
Unheated Area:
Basement:2005 Sq. Ft.
Dimensions
Ridge Height:32-0' 0''
Architectural Styles
Exterior Wall Material
BrickStucco
Roofing Type
Hip
Special Feature
Dining RoomFamily RoomColor Photos
Garage Type
Attached GarageSide Entry
Fireplaces
Two Fireplaces
Exterior Wall Framing
2x6

What’s Included

Most plan sets include the following:

What’s Not Included

These items are  NOT included:

icon text-secondary-400 includedArchitectural or Engineering Stamp - handled locally if required.

icon text-secondary-400 includedSite Plan - handled locally when required.

icon text-secondary-400 includedMechanical Drawings (location of heating and air equipment and ductwork) - your subcontractors handle this.

icon text-secondary-400 includedPlumbing Drawings (drawings showing the actual plumbing pipe sizes and locations) - your subcontractors handle this.

icon text-secondary-400 includedEnergy calculations - handled locally when required.

Related House Plans

Plan Collection
Plan Collection
Plan Collection
Plan#158-1197
Starting at$1455
2783
Sq Ft
2
Story
3
Bed
2.5
Bath
2
Car
Plan Collection
Plan Collection
Plan Collection
Plan#158-1160
Starting at$1455
3536
Sq Ft
2
Story
3
Bed
2.5
Bath
2
Car
Plan Collection
Plan Collection
Plan Collection
Plan#187-1005
Starting at$1350
2664
Sq Ft
2
Story
3
Bed
2.5
Bath
3
Car
View All

Other Plans By This Designer

Plan Collection
Plan Collection
Plan Collection
Plan#146-2806
Starting at$980
1933
Sq Ft
2
Story
3
Bed
2
Bath
0
Car
Plan Collection
Plan Collection
Plan Collection
Plan#146-2810
Starting at$1285
3594
Sq Ft
2
Story
4
Bed
3.5
Bath
2
Car
Plan Collection
Plan Collection
Plan Collection
Plan#146-1917
Starting at$1120
2525
Sq Ft
2
Story
4
Bed
2.5
Bath
3
Car

By Architectural Style

By Feature

By Region