4-Bedroom, 2214 Sq Ft Colonial Plan with Sundeck

Front view of Colonial home (ThePlanCollection: House Plan #146-1020)

Images/Plans copyrighted by designer. Photos may reflect homeowner modifications.

About House Plan #146-1020

Sq Ft
2214
Sq Ft
Bedrooms
4
Bedrooms
Bathroom
2
Baths
Half Baths
1
Half Baths
Bedrooms
3
Cars
Bedrooms
2
Stories
Bedrooms
72' 0'
Width
Bedrooms
36
Depth
Starting at$1015.00What's included
STEP 1Bedrooms
STEP 2Bedrooms
STEP 3Bedrooms

Subtotal:$0
Plan Collection

How much will it cost to build?

Estimate your costs based on your location and materials.

Free Cost Instant Estimator

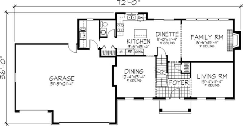
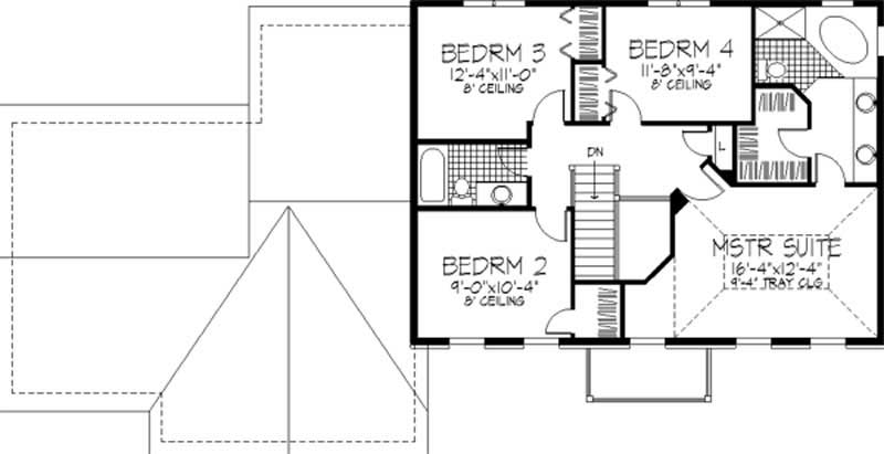
Floor Plans

Main Level
Main Level
Upper Level
Upper Level
Plan Collection

Can I modify this plan?

Yes! This plan can be customized—contact us for a free quote.

House Plan Description

The clan will enjoy hanging out in the family room and breakfast nook, while company will appreciate the formal dining and living rooms. Upstairs, a balcony overlooks the foyer. Three bedrooms cluster around one full bath, while the vaulted master suite has a lavish bath all its own. In it you will find a walk-in closet, a shower, dual sinks and a beautiful corner spa.

Home Details

Summary
Plan #:146-1020
Starting at:$1015.00
Floors:2
Bedrooms:4
Full Baths:2
Half Baths:1
Garage:
Square Footage
Heated Area:2214 Sq. Ft.
First Floor:1150 Sq. Ft.
Second Floor:1064 Sq. Ft.
Unheated Area:
Basement:988 Sq. Ft.
Dimensions
Ridge Height:27-0' 0''
Architectural Styles
Exterior Wall Material
Brick
Roofing Type
Gable
Special Feature
Family RoomColor Photos
Garage Type
Attached GarageFront Entry
Fireplaces
One Fireplace
Exterior Wall Framing
2x6

What’s Included

Most plan sets include the following:

What’s Not Included

These items are  NOT included:

icon text-secondary-400 includedArchitectural or Engineering Stamp - handled locally if required.

icon text-secondary-400 includedSite Plan - handled locally when required.

icon text-secondary-400 includedMechanical Drawings (location of heating and air equipment and ductwork) - your subcontractors handle this.

icon text-secondary-400 includedPlumbing Drawings (drawings showing the actual plumbing pipe sizes and locations) - your subcontractors handle this.

icon text-secondary-400 includedEnergy calculations - handled locally when required.

Related House Plans

Plan Collection
Plan Collection
Plan Collection
Plan#178-1080
Starting at$1005
1980
Sq Ft
2
Story
4
Bed
2.5
Bath
2
Car
Plan Collection
Plan Collection
Plan Collection
Plan#146-2292
Starting at$1120
2548
Sq Ft
2
Story
4
Bed
2.5
Bath
2
Car
Plan Collection
Plan Collection
Plan Collection
Plan#146-1263
Starting at$1120
2508
Sq Ft
2
Story
4
Bed
2.5
Bath
2
Car
View All

Other Plans By This Designer

Plan Collection
Plan Collection
Plan Collection
Plan#146-2806
Starting at$980
1933
Sq Ft
2
Story
3
Bed
2
Bath
0
Car
Plan Collection
Plan Collection
Plan Collection
Plan#146-2810
Starting at$1285
3594
Sq Ft
2
Story
4
Bed
3.5
Bath
2
Car
Plan Collection
Plan Collection
Plan Collection
Plan#146-1917
Starting at$1120
2525
Sq Ft
2
Story
4
Bed
2.5
Bath
3
Car