4-Bedroom, 3511 Sq Ft Country Plan with Split Master Bedroom

Front view of Country home (ThePlanCollection: House Plan #146-2925)

Images/Plans copyrighted by designer. Photos may reflect homeowner modifications.

About House Plan #146-2925

Sq Ft
3511
Sq Ft
Bedrooms
4
Bedrooms
Bathroom
4
Baths
Half Baths
1
Half Baths
Bedrooms
0
Cars
Bedrooms
2
Stories
Bedrooms
63' 0'
Width
Bedrooms
71
Depth
Starting at$1285.00What's included
STEP 1Bedrooms
STEP 2Bedrooms
STEP 3Bedrooms

Subtotal:$0
Plan Collection

How much will it cost to build?

Estimate your costs based on your location and materials.

Free Cost Instant Estimator

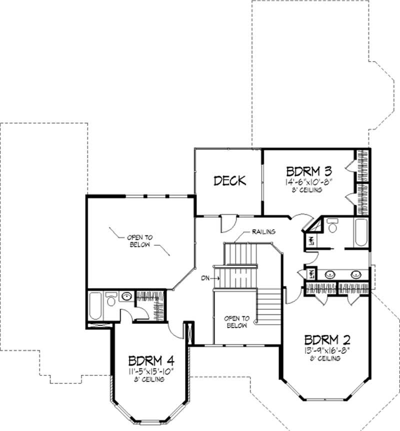
Floor Plans

Main Level
Main Level
Upper Level
Upper Level
Plan Collection

Can I modify this plan?

Yes! This plan can be customized—contact us for a free quote.

House Plan Description

A wraparound porch from yesteryear greets guests as they approach this traditional country-style home. The Great Room boasts a large corner fireplace, while nearby sliding glass doors open onto a charming rear deck. The island kitchen offers a serving bar into the breakfast room. Across the home, the master bedroom enjoys an adorable sitting area with a window seat, plus a private bath with dual-sink vanity and his-and-hers walk-in closets.

Home Details

Summary
Plan #:146-2925
Starting at:$1285.00
Floors:2
Bedrooms:4
Full Baths:4
Half Baths:1
Garage:
Square Footage
Heated Area:3511 Sq. Ft.
First Floor:2477 Sq. Ft.
Second Floor:1034 Sq. Ft.
Unheated Area:
Dimensions
Ridge Height:31-0' 0''
Architectural Styles
Exterior Wall Material
BrickWood Siding
Roofing Type
Hip
Special Feature
FireplaceGuest Room
Fireplaces
One Fireplace
Exterior Wall Framing
2x4

What’s Included

Most plan sets include the following:

What’s Not Included

These items are  NOT included:

icon text-secondary-400 includedArchitectural or Engineering Stamp - handled locally if required.

icon text-secondary-400 includedSite Plan - handled locally when required.

icon text-secondary-400 includedMechanical Drawings (location of heating and air equipment and ductwork) - your subcontractors handle this.

icon text-secondary-400 includedPlumbing Drawings (drawings showing the actual plumbing pipe sizes and locations) - your subcontractors handle this.

icon text-secondary-400 includedEnergy calculations - handled locally when required.

Related House Plans

Plan Collection
Plan Collection
Plan Collection
Plan#180-1020
Starting at$1800
4304
Sq Ft
2
Story
4
Bed
4.5
Bath
3
Car
Plan Collection
Plan Collection
Plan Collection
Plan#106-1167
Starting at$1695
4140
Sq Ft
2
Story
4
Bed
4.5
Bath
3
Car
Plan Collection
Plan Collection
Plan Collection
Plan#153-1491
Starting at$1350
3568
Sq Ft
2
Story
4
Bed
4.5
Bath
2
Car
View All

Other Plans By This Designer

Plan Collection
Plan Collection
Plan Collection
Plan#146-2806
Starting at$980
1933
Sq Ft
2
Story
3
Bed
2
Bath
0
Car
Plan Collection
Plan Collection
Plan Collection
Plan#146-2810
Starting at$1285
3594
Sq Ft
2
Story
4
Bed
3.5
Bath
2
Car
Plan Collection
Plan Collection
Plan Collection
Plan#146-1917
Starting at$1120
2525
Sq Ft
2
Story
4
Bed
2.5
Bath
3
Car