3-Bedroom, 2700 Sq Ft European Plan with Patio

Front view of European home (ThePlanCollection: House Plan #146-2928)

Images/Plans copyrighted by designer. Photos may reflect homeowner modifications.

About House Plan #146-2928

Sq Ft
2700
Sq Ft
Bedrooms
3
Bedrooms
Bathroom
2
Baths
Half Baths
1
Half Baths
Bedrooms
2
Cars
Bedrooms
2
Stories
Bedrooms
35' 0'
Width
Bedrooms
76
Depth
Starting at$1120.00What's included
STEP 1Bedrooms
STEP 2Bedrooms
STEP 3Bedrooms

Subtotal:$0
Plan Collection

How much will it cost to build?

Estimate your costs based on your location and materials.

Free Cost Instant Estimator

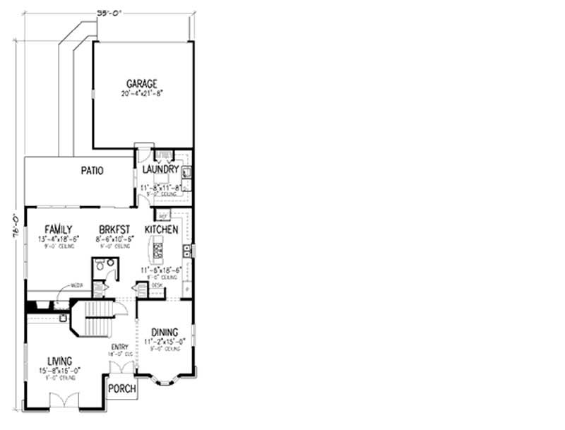
Floor Plans

Main Level
Main Level
Upper Level
Upper Level
Plan Collection

Can I modify this plan?

Yes! This plan can be customized—contact us for a free quote.

House Plan Description

The Federal style of this home gives it a traditional feel. Relax in the well-lighted living room, which includes French doors to the front yard. The central kitchen includes an island, a formal dining room, a breakfast nook and nearby access to an oversized utility room. Upstairs, the master bedroom offers a corner garden tub, a private balcony and his-and-hers walk-in closets.

Home Details

Summary
Plan #:146-2928
Starting at:$1120.00
Floors:2
Bedrooms:3
Full Baths:2
Half Baths:1
Garage:
Square Footage
Heated Area:2700 Sq. Ft.
First Floor:1500 Sq. Ft.
Second Floor:1200 Sq. Ft.
Unheated Area:
Basement:1355 Sq. Ft.
Garage:440 Sq. Ft.
Dimensions
Ridge Height:32-0' 0''
Architectural Styles
Exterior Wall Material
Brick
Roofing Type
Hip
Special Feature
Dining Room
Garage Type
Attached Garage
Fireplaces
One Fireplace
Exterior Wall Framing
2x4
Building Lot Type
Narrow Lot Design

What’s Included

Most plan sets include the following:

What’s Not Included

These items are  NOT included:

icon text-secondary-400 includedArchitectural or Engineering Stamp - handled locally if required.

icon text-secondary-400 includedSite Plan - handled locally when required.

icon text-secondary-400 includedMechanical Drawings (location of heating and air equipment and ductwork) - your subcontractors handle this.

icon text-secondary-400 includedPlumbing Drawings (drawings showing the actual plumbing pipe sizes and locations) - your subcontractors handle this.

icon text-secondary-400 includedEnergy calculations - handled locally when required.

Related House Plans

Plan Collection
Plan Collection
Plan Collection
Plan#126-1297
Starting at$1715
2257
Sq Ft
2
Story
3
Bed
2.5
Bath
2
Car
Plan Collection
Plan Collection
Plan Collection
Plan#142-1175
Starting at$1345
2084
Sq Ft
2
Story
3
Bed
2.5
Bath
0
Car
Plan Collection
Plan Collection
Plan Collection
Plan#126-1286
Starting at$1715
2350
Sq Ft
2
Story
3
Bed
2.5
Bath
2
Car
View All

Other Plans By This Designer

Plan Collection
Plan Collection
Plan Collection
Plan#146-2806
Starting at$980
1933
Sq Ft
2
Story
3
Bed
2
Bath
0
Car
Plan Collection
Plan Collection
Plan Collection
Plan#146-2810
Starting at$1285
3594
Sq Ft
2
Story
4
Bed
3.5
Bath
2
Car
Plan Collection
Plan Collection
Plan Collection
Plan#146-1917
Starting at$1120
2525
Sq Ft
2
Story
4
Bed
2.5
Bath
3
Car