4-Bedroom, 3498 Sq Ft Ranch Plan with Walk In Closet

Front view of Ranch home (ThePlanCollection: House Plan #146-2220)

Images/Plans copyrighted by designer. Photos may reflect homeowner modifications.

About House Plan #146-2220

Sq Ft
3498
Sq Ft
Bedrooms
4
Bedrooms
Bathroom
2
Baths
Half Baths
1
Half Baths
Bedrooms
3
Cars
Bedrooms
2
Stories
Bedrooms
51' 0'
Width
Bedrooms
94
Depth
Starting at$1213.25What's included
STEP 1Bedrooms
STEP 2Bedrooms
STEP 3Bedrooms

Subtotal:$0
Plan Collection

How much will it cost to build?

Estimate your costs based on your location and materials.

Free Cost Instant Estimator

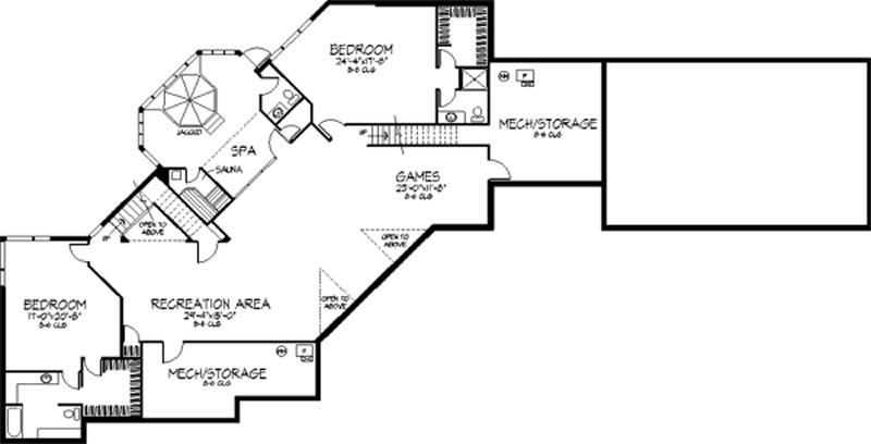
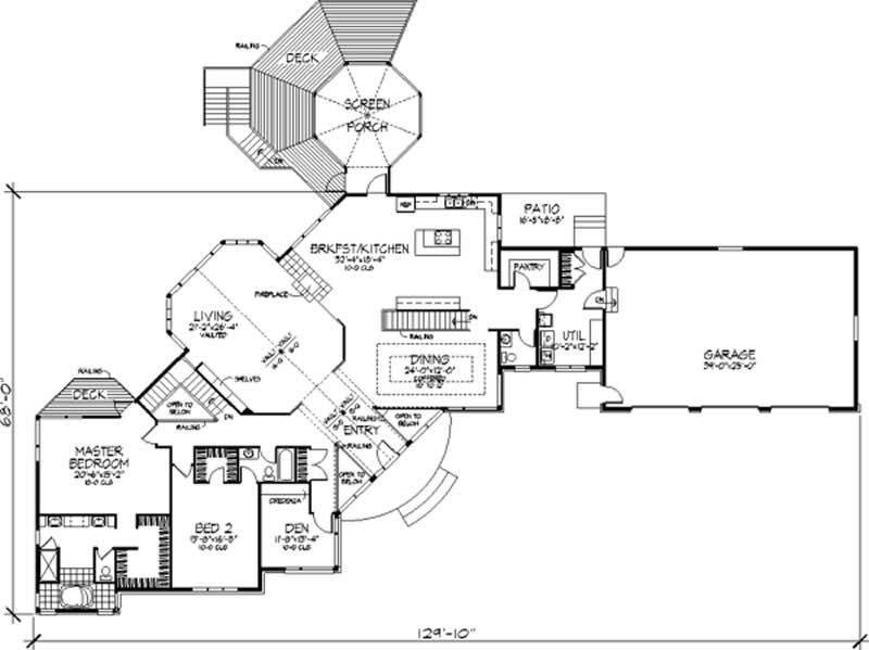
Floor Plans

Main Level
Main Level
Upper Level
Upper Level
Plan Collection

Can I modify this plan?

Yes! This plan can be customized—contact us for a free quote.

House Plan Description

This exciting two-story floor plan has it all. The foyer opens to a formal dining room defined by decorative columns. The nearby living room is topped by a spacious vaulted ceiling. The kitchen opens to a breakfast room with access to a rear deck. The adjoining family room is wrapped in windows. A three-sided fireplace warms this wonderful space. Upstairs, the master suite has its own fireplace and access to a private deck. The suite also has its own bath and a generous walk-in closet. Three secondary bedrooms share a full bath and feature loads of closet space.

Home Details

Summary
Plan #:146-2220
Starting at:$1213.25
Floors:2
Bedrooms:4
Full Baths:2
Half Baths:1
Garage:
Square Footage
Heated Area:3498 Sq. Ft.
First Floor:1974 Sq. Ft.
Second Floor:1524 Sq. Ft.
Unheated Area:
Dimensions
Ridge Height:30-0' 0''
Architectural Styles
Exterior Wall Material
BrickStucco
Roofing Type
Gable
Special Feature
FireplaceDining RoomFamily Room
Garage Type
Attached GarageFront Entry
Fireplaces
Two Fireplaces
Exterior Wall Framing
2x6
Master Suite Features
Fireplace in Master

What’s Included

Most plan sets include the following:

What’s Not Included

These items are  NOT included:

icon text-secondary-400 includedArchitectural or Engineering Stamp - handled locally if required.

icon text-secondary-400 includedSite Plan - handled locally when required.

icon text-secondary-400 includedMechanical Drawings (location of heating and air equipment and ductwork) - your subcontractors handle this.

icon text-secondary-400 includedPlumbing Drawings (drawings showing the actual plumbing pipe sizes and locations) - your subcontractors handle this.

icon text-secondary-400 includedEnergy calculations - handled locally when required.

Related House Plans

Plan Collection
Plan Collection
Plan Collection
Plan#192-1022
Starting at$500
2840
Sq Ft
2
Story
4
Bed
2.5
Bath
2
Car
Plan Collection
Plan Collection
Plan Collection
Plan#126-1327
Starting at$2135
3493
Sq Ft
2
Story
4
Bed
2
Bath
0
Car
Plan Collection
Plan Collection
Plan Collection
Plan#115-1243
Starting at$2400
4025
Sq Ft
2
Story
4
Bed
2
Bath
3
Car
View All

Other Plans By This Designer

Plan Collection
Plan Collection
Plan Collection
Plan#146-2806
Starting at$980
1933
Sq Ft
2
Story
3
Bed
2
Bath
0
Car
Plan Collection
Plan Collection
Plan Collection
Plan#146-2810
Starting at$1285
3594
Sq Ft
2
Story
4
Bed
3.5
Bath
2
Car
Plan Collection
Plan Collection
Plan Collection
Plan#146-1917
Starting at$1120
2525
Sq Ft
2
Story
4
Bed
2.5
Bath
3
Car