1-Bedroom, 2092 Sq Ft French Plan with Master Bathroom

Front view of French home (ThePlanCollection: House Plan #146-2228)

Images/Plans copyrighted by designer. Photos may reflect homeowner modifications.

About House Plan #146-2228

Sq Ft
2092
Sq Ft
Bedrooms
1
Bedrooms
Bathroom
2
Baths
Half Baths
0
Half Baths
Bedrooms
4
Cars
Bedrooms
1
Stories
Bedrooms
80' 0'
Width
Bedrooms
67
Depth
Starting at$1015.00What's included
STEP 1Bedrooms
STEP 2Bedrooms
STEP 3Bedrooms

Subtotal:$0
Plan Collection

How much will it cost to build?

Estimate your costs based on your location and materials.

Free Cost Instant Estimator

Floor Plans

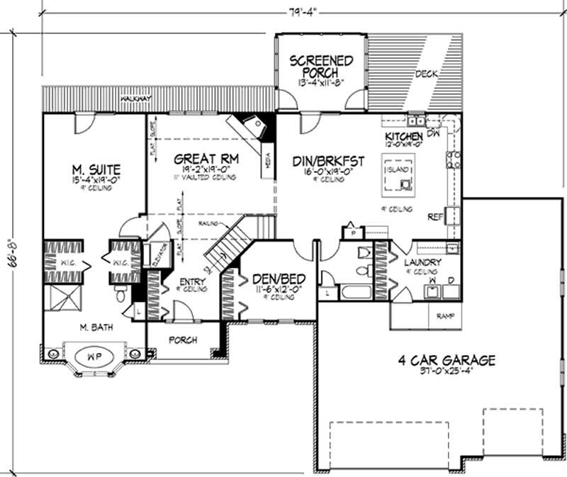
Main Level
Main Level
Plan Collection

Can I modify this plan?

Yes! This plan can be customized—contact us for a free quote.

House Plan Description

A gigantic 4-car garage is just one of several terrific amenities offered by this barrier-free vacation home. Once inside, a convenient elevator will be of use for handicapped dwellers looking to make their way downstairs and out to the beach. The central Great Room enjoys a corner fireplace and a built-in media center, while the adjoining dining/breakfast area boasts proximity to the great island kitchen as well as access to a screened-in deck. The master suite, with access to a rear walkway, offers his-and-hers walk-in closets and a master bath with a bayed spa tub flanked by separate...

Home Details

Summary
Plan #:146-2228
Starting at:$1015.00
Floors:1
Bedrooms:1
Full Baths:2
Half Baths:0
Garage:
Square Footage
Heated Area:2092 Sq. Ft.
First Floor:2092 Sq. Ft.
Unheated Area:
Basement:2092 Sq. Ft.
Dimensions
Ridge Height:27-0' 0''
Architectural Styles
Exterior Wall Material
BrickWood Siding
Roofing Type
Hip
Special Feature
Fireplace
Garage Type
Attached GarageFront Entry
Fireplaces
One Fireplace
Exterior Wall Framing
2x4

What’s Included

Most plan sets include the following:

What’s Not Included

These items are  NOT included:

icon text-secondary-400 includedArchitectural or Engineering Stamp - handled locally if required.

icon text-secondary-400 includedSite Plan - handled locally when required.

icon text-secondary-400 includedMechanical Drawings (location of heating and air equipment and ductwork) - your subcontractors handle this.

icon text-secondary-400 includedPlumbing Drawings (drawings showing the actual plumbing pipe sizes and locations) - your subcontractors handle this.

icon text-secondary-400 includedEnergy calculations - handled locally when required.

Other Plans By This Designer

Plan Collection
Plan Collection
Plan Collection
Plan#146-2806
Starting at$980
1933
Sq Ft
2
Story
3
Bed
2
Bath
0
Car
Plan Collection
Plan Collection
Plan Collection
Plan#146-2810
Starting at$1285
3594
Sq Ft
2
Story
4
Bed
3.5
Bath
2
Car
Plan Collection
Plan Collection
Plan Collection
Plan#146-1917
Starting at$1120
2525
Sq Ft
2
Story
4
Bed
2.5
Bath
3
Car