4-Bedroom, 3300 Sq Ft Colonial Plan with Covered Rear Porch

Front view of Colonial home (ThePlanCollection: House Plan #146-2176)

Images/Plans copyrighted by designer. Photos may reflect homeowner modifications.

About House Plan #146-2176

Sq Ft
3300
Sq Ft
Bedrooms
4
Bedrooms
Bathroom
2
Baths
Half Baths
1
Half Baths
Bedrooms
2
Cars
Bedrooms
2
Stories
Bedrooms
60' 0'
Width
Bedrooms
34
Depth
Starting at$1213.25What's included
STEP 1Bedrooms
STEP 2Bedrooms
STEP 3Bedrooms

Subtotal:$0
Plan Collection

How much will it cost to build?

Estimate your costs based on your location and materials.

Free Cost Instant Estimator

Floor Plans

Main Level
Main Level
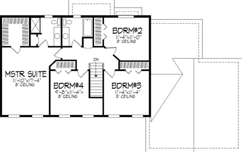
Upper Level
Upper Level
Plan Collection

Can I modify this plan?

Yes! This plan can be customized—contact us for a free quote.

House Plan Description

This updated Colonial design features a formal living room and dining room that flank the foyer. Together, they are the perfect spaces for elegant entertaining. The sunken family room is crowned by an oak beam ceiling and is warmed by a fireplace. The island kitchen at the back of the home includes a dinette with access to a rear patio. Upstairs, the master suite has a private bath and a walk-in closet. Three secondary bedrooms share a full bath.

Home Details

Summary
Plan #:146-2176
Starting at:$1213.25
Floors:2
Bedrooms:4
Full Baths:2
Half Baths:1
Garage:
Square Footage
Heated Area:3300 Sq. Ft.
First Floor:1171 Sq. Ft.
Second Floor:988 Sq. Ft.
Unheated Area:
Basement:1141 Sq. Ft.
Dimensions
Ridge Height:27-0' 0''
Architectural Styles
Exterior Wall Material
Wood Siding
Roofing Type
Gable
Special Feature
FireplaceDining RoomFamily Room
Garage Type
Attached GarageFront Entry
Fireplaces
One Fireplace
Exterior Wall Framing
2x6

What’s Included

Most plan sets include the following:

What’s Not Included

These items are  NOT included:

icon text-secondary-400 includedArchitectural or Engineering Stamp - handled locally if required.

icon text-secondary-400 includedSite Plan - handled locally when required.

icon text-secondary-400 includedMechanical Drawings (location of heating and air equipment and ductwork) - your subcontractors handle this.

icon text-secondary-400 includedPlumbing Drawings (drawings showing the actual plumbing pipe sizes and locations) - your subcontractors handle this.

icon text-secondary-400 includedEnergy calculations - handled locally when required.

Related House Plans

Plan Collection
Plan Collection
Plan Collection
Plan#146-2292
Starting at$1120
2548
Sq Ft
2
Story
4
Bed
2.5
Bath
2
Car
Plan Collection
Plan Collection
Plan Collection
Plan#146-1263
Starting at$1120
2508
Sq Ft
2
Story
4
Bed
2.5
Bath
2
Car
Plan Collection
Plan Collection
Plan Collection
Plan#161-1086
Starting at$2200
3231
Sq Ft
2
Story
4
Bed
2.5
Bath
3
Car
View All

Other Plans By This Designer

Plan Collection
Plan Collection
Plan Collection
Plan#146-2806
Starting at$980
1933
Sq Ft
2
Story
3
Bed
2
Bath
0
Car
Plan Collection
Plan Collection
Plan Collection
Plan#146-2810
Starting at$1285
3594
Sq Ft
2
Story
4
Bed
3.5
Bath
2
Car
Plan Collection
Plan Collection
Plan Collection
Plan#146-1917
Starting at$1120
2525
Sq Ft
2
Story
4
Bed
2.5
Bath
3
Car