3-Bedroom, 4845 Sq Ft Craftsman Plan with Second Floor Master

Front view of Craftsman home (ThePlanCollection: House Plan #146-2151)

Images/Plans copyrighted by designer. Photos may reflect homeowner modifications.

About House Plan #146-2151

Sq Ft
4845
Sq Ft
Bedrooms
3
Bedrooms
Bathroom
3
Baths
Half Baths
1
Half Baths
Bedrooms
2
Cars
Bedrooms
2
Stories
Bedrooms
92' 0'
Width
Bedrooms
69
Depth
Starting at$1425.00What's included
STEP 1Bedrooms
STEP 2Bedrooms
STEP 3Bedrooms

Subtotal:$0
Plan Collection

How much will it cost to build?

Estimate your costs based on your location and materials.

Free Cost Instant Estimator

Floor Plans

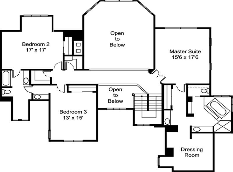
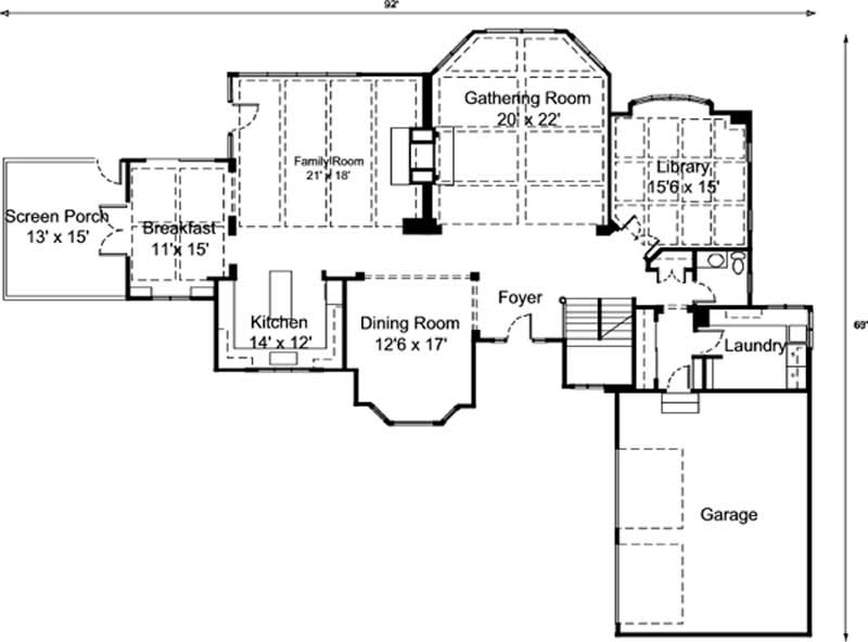
Main Level
Main Level
Upper Level
Upper Level
Plan Collection

Can I modify this plan?

Yes! This plan can be customized—contact us for a free quote.

House Plan Description

This sophisticated home features a fabulous floor plan, which includes a library ideal for quiet meditation or conversation after dinner. A fantastic see-through fireplace separates the expansive Great Room and the spacious family room. A roomy breakfast area that accesses the screened porch is found adjacent to the gourmet kitchen boasting a large island. The marvelous master suite flaunts a dressing room and a deluxe private bath.

Home Details

Summary
Plan #:146-2151
Starting at:$1425.00
Floors:2
Bedrooms:3
Full Baths:3
Half Baths:1
Garage:
Square Footage
Heated Area:4845 Sq. Ft.
First Floor:2474 Sq. Ft.
Second Floor:2371 Sq. Ft.
Unheated Area:
Basement:1454 Sq. Ft.
Dimensions
Ridge Height:34-0' 0''
Architectural Styles
Exterior Wall Material
BrickWood Siding
Roofing Type
Gable
Special Feature
FireplaceFamily RoomLibrary
Garage Type
Attached GarageCourtyard Entry
Fireplaces
One Fireplace
Exterior Wall Framing
2x6

What’s Included

Most plan sets include the following:

What’s Not Included

These items are  NOT included:

icon text-secondary-400 includedArchitectural or Engineering Stamp - handled locally if required.

icon text-secondary-400 includedSite Plan - handled locally when required.

icon text-secondary-400 includedMechanical Drawings (location of heating and air equipment and ductwork) - your subcontractors handle this.

icon text-secondary-400 includedPlumbing Drawings (drawings showing the actual plumbing pipe sizes and locations) - your subcontractors handle this.

icon text-secondary-400 includedEnergy calculations - handled locally when required.

Related House Plans

Plan Collection
Plan Collection
Plan Collection
Plan#161-1090
Starting at$2400
3859
Sq Ft
2
Story
3
Bed
3.5
Bath
3
Car
Plan Collection
Plan Collection
Plan Collection
Plan#132-1703
Starting at$1795
3967
Sq Ft
2
Story
3
Bed
3
Bath
0
Car
Plan Collection
Plan Collection
Plan Collection
Plan#108-1161
Starting at$1600
4021
Sq Ft
2
Story
3
Bed
3.5
Bath
2
Car
View All

Other Plans By This Designer

Plan Collection
Plan Collection
Plan Collection
Plan#146-2806
Starting at$980
1933
Sq Ft
2
Story
3
Bed
2
Bath
0
Car
Plan Collection
Plan Collection
Plan Collection
Plan#146-2810
Starting at$1285
3594
Sq Ft
2
Story
4
Bed
3.5
Bath
2
Car
Plan Collection
Plan Collection
Plan Collection
Plan#146-1917
Starting at$1120
2525
Sq Ft
2
Story
4
Bed
2.5
Bath
3
Car