Estimate your costs based on your location and materials.
Yes! This plan can be customized—contact us for a free quote.
Yes! This plan can be customized—contact us for a free quote.
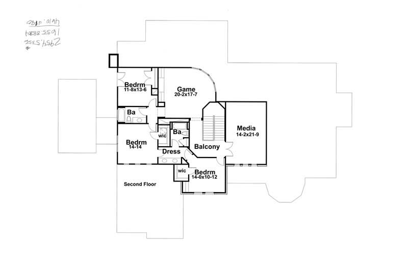
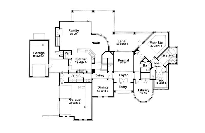
Home Plan The Santa Rosa is a great two story house plan with 4629 total square feet. Some of the special features of this plan include: Open Family/Kitchen/Nook with plenty of natural light Elegant and Secluded Master Suite with Enormous WIC Huge Lanai, perfect for Backyard Entertainment The Library features unique swinging bookcases which open to added storage Large Game room w/ built-in cabinets
Estimate your costs based on your location and materials.
All sales of house plans, modifications, and other products found on this site are final. No refunds or exchanges can be given once your order has begun the fulfillment process. Please see our Policies for additional information.
All plans offered on ThePlanCollection.com are designed to conform to the local building codes when and where the original plan was drawn.
The homes as shown in photographs and renderings may differ from the actual blueprints. For more detailed information, please review the floor plan images herein carefully.
Estimate your costs based on your location and materials.