Estimate your costs based on your location and materials.
Yes! This plan can be customized—contact us for a free quote.
Yes! This plan can be customized—contact us for a free quote.
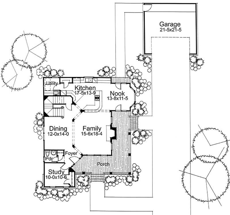
Well designed for a narrow lot, this farmhouse-style home has wonderful curb appeal with its wrap-around porch and gabel rooflines. Inside, the design makes the most of its 2274 living square feet. The open floor plan allows for the family room to be the center of activity. The kitchen and breakfast nook are only steps away. While the dining room looks out onto the family room and its center-fireplace. The first floor includes a study when privacy is preferred and could easily be a fourth bedroom. A wide staircase with a wonderful window leads upstairs. On the second floor is the master...
Estimate your costs based on your location and materials.
All sales of house plans, modifications, and other products found on this site are final. No refunds or exchanges can be given once your order has begun the fulfillment process. Please see our Policies for additional information.
All plans offered on ThePlanCollection.com are designed to conform to the local building codes when and where the original plan was drawn.
The homes as shown in photographs and renderings may differ from the actual blueprints. For more detailed information, please review the floor plan images herein carefully.
Estimate your costs based on your location and materials.