4-Bedroom, 3380 Sq Ft Florida Style Plan with Sitting Area

Front view of Florida Style home (ThePlanCollection: House Plan #146-2363)

Images/Plans copyrighted by designer. Photos may reflect homeowner modifications.

About House Plan #146-2363

Sq Ft
3380
Sq Ft
Bedrooms
4
Bedrooms
Bathroom
3
Baths
Half Baths
0
Half Baths
Bedrooms
3
Cars
Bedrooms
2
Stories
Bedrooms
64' 0'
Width
Bedrooms
61
Depth
Starting at$1213.25What's included
STEP 1Bedrooms
STEP 2Bedrooms
STEP 3Bedrooms

Subtotal:$0
Plan Collection

How much will it cost to build?

Estimate your costs based on your location and materials.

Free Cost Instant Estimator

Floor Plans

Main Level
Main Level
Upper Level
Upper Level
Plan Collection

Can I modify this plan?

Yes! This plan can be customized—contact us for a free quote.

House Plan Description

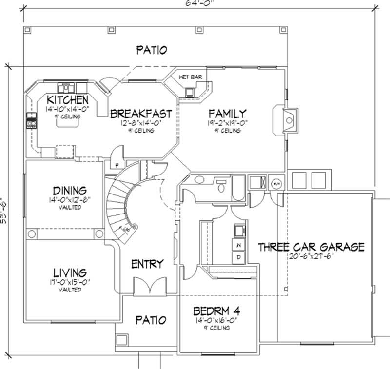
A three-car garage and four spacious bedrooms are two features that make this beautiful home perfect for the growing family. A front patio entrance provides views of the roomy living areas, which feature vaulted ceilings. A grand circular staircase winds to the second-story bedrooms. A large U-shaped kitchen connects to a breakfast room, while the adjacent family room boasts a wet bar and a fireplace. A full-length patio can be reached from the breakfast room. The master bedroom includes a private bath and vaulted ceilings for stylish comfort.

Home Details

Summary
Plan #:146-2363
Starting at:$1213.25
Floors:2
Bedrooms:4
Full Baths:3
Half Baths:0
Garage:
Square Footage
Heated Area:3380 Sq. Ft.
First Floor:2066 Sq. Ft.
Second Floor:1314 Sq. Ft.
Unheated Area:
Dimensions
Ridge Height:23-0' 0''
Architectural Styles
Exterior Wall Material
Stucco
Roofing Type
Hip
Roofing Material
Other Composites
Special Feature
FireplaceFamily Room
Garage Type
Attached GarageSide Entry
Fireplaces
One Fireplace
Exterior Wall Framing
2x6

What’s Included

Most plan sets include the following:

What’s Not Included

These items are  NOT included:

icon text-secondary-400 includedArchitectural or Engineering Stamp - handled locally if required.

icon text-secondary-400 includedSite Plan - handled locally when required.

icon text-secondary-400 includedMechanical Drawings (location of heating and air equipment and ductwork) - your subcontractors handle this.

icon text-secondary-400 includedPlumbing Drawings (drawings showing the actual plumbing pipe sizes and locations) - your subcontractors handle this.

icon text-secondary-400 includedEnergy calculations - handled locally when required.

Related House Plans

Plan Collection
Plan Collection
Plan Collection
Plan#175-1132
Starting at$1900
3276
Sq Ft
2
Story
4
Bed
3.5
Bath
2
Car
Plan Collection
Plan Collection
Plan Collection
Plan#108-1328
Starting at$1050
2567
Sq Ft
2
Story
4
Bed
3.5
Bath
2
Car
Plan Collection
Plan Collection
Plan Collection
Plan#175-1117
Starting at$1600
2731
Sq Ft
2
Story
4
Bed
3.5
Bath
2
Car
View All

Other Plans By This Designer

Plan Collection
Plan Collection
Plan Collection
Plan#146-2806
Starting at$980
1933
Sq Ft
2
Story
3
Bed
2
Bath
0
Car
Plan Collection
Plan Collection
Plan Collection
Plan#146-2810
Starting at$1285
3594
Sq Ft
2
Story
4
Bed
3.5
Bath
2
Car
Plan Collection
Plan Collection
Plan Collection
Plan#146-1917
Starting at$1120
2525
Sq Ft
2
Story
4
Bed
2.5
Bath
3
Car