4-Bedroom, 5844 Sq Ft Country Plan with Covered Rear Porch

Front view of Country home (ThePlanCollection: House Plan #146-1957)

Images/Plans copyrighted by designer. Photos may reflect homeowner modifications.

About House Plan #146-1957

Sq Ft
5844
Sq Ft
Bedrooms
4
Bedrooms
Bathroom
5
Baths
Half Baths
1
Half Baths
Bedrooms
2
Cars
Bedrooms
2
Stories
Bedrooms
103' 0'
Width
Bedrooms
69
Depth
Starting at$1645.00What's included
STEP 1Bedrooms
STEP 2Bedrooms
STEP 3Bedrooms

Subtotal:$0
Plan Collection

How much will it cost to build?

Estimate your costs based on your location and materials.

Free Cost Instant Estimator

Floor Plans

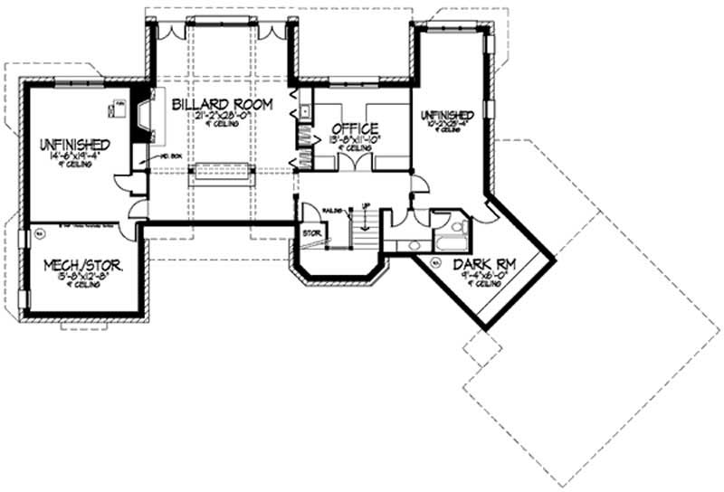
Basement
Basement
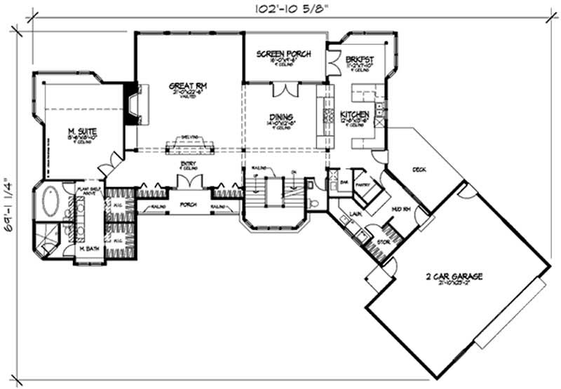
Main Level
Main Level
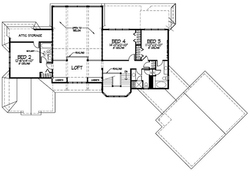
Upper Level
Upper Level
Plan Collection

Can I modify this plan?

Yes! This plan can be customized—contact us for a free quote.

House Plan Description

A daylight basement gives you plenty of space to spread out in this lovely stone and cedar-shingle home. The main floor boasts a Great Room, a formal dining room, a screen porch, a handy mud room with a big storage closet and a sumptuous master suite. The top floor has a loft that overlooks the Great Room, and three secondary bedrooms, two of which boast private baths. The daylight basement has a billiard room, an office and even a dark room for photography buffs.

Home Details

Summary
Plan #:146-1957
Starting at:$1645.00
Floors:2
Bedrooms:4
Full Baths:5
Half Baths:1
Garage:
Square Footage
Heated Area:5844 Sq. Ft.
First Floor:2489 Sq. Ft.
Second Floor:1184 Sq. Ft.
Unheated Area:
Basement:2171 Sq. Ft.
Dimensions
Ridge Height:35-0' 0''
Architectural Styles
Exterior Wall Material
Rock/StoneShakes
Roofing Type
Gable
Ceiling Height
9 Foot Ceiling8 Foot Ceiling
Special Feature
FireplaceDining RoomHome OfficeMud RoomBonus RoomFamily RoomGame RoomMain Level LaundryLoftStorageDenVaulted CeilingsWorkshopBalcony
Garage Type
Attached GarageSide Entry
Fireplaces
Two Fireplaces
Exterior Wall Framing
2x6
Building Lot Type
Down Site
Kitchen Features
Kitchen IslandButler's PantryNook/Breakfast AreaWalk-in PantryPeninsula/Eating Bar
Porches and Exterior Features
Covered Front PorchScreened Porch/SunroomScreened in LanaiCovered Lanai
Master Suite Features
Main Floor MasterMaster BathroomWalk In ClosetSitting Area

What’s Included

Most plan sets include the following:

What’s Not Included

These items are  NOT included:

icon text-secondary-400 includedArchitectural or Engineering Stamp - handled locally if required.

icon text-secondary-400 includedSite Plan - handled locally when required.

icon text-secondary-400 includedMechanical Drawings (location of heating and air equipment and ductwork) - your subcontractors handle this.

icon text-secondary-400 includedPlumbing Drawings (drawings showing the actual plumbing pipe sizes and locations) - your subcontractors handle this.

icon text-secondary-400 includedEnergy calculations - handled locally when required.

Related House Plans

Plan Collection
Plan Collection
Plan Collection
Plan#153-1058
Starting at$1650
4996
Sq Ft
2
Story
4
Bed
5.5
Bath
3
Car
Plan Collection
Plan Collection
Plan Collection
Plan#134-1027
Starting at$0
6634
Sq Ft
2
Story
4
Bed
5.5
Bath
4
Car
Plan Collection
Plan Collection
Plan Collection
Plan#134-1350
Starting at$0
5303
Sq Ft
2
Story
4
Bed
5.5
Bath
4
Car
View All

Other Plans By This Designer

Plan Collection
Plan Collection
Plan Collection
Plan#146-2806
Starting at$980
1933
Sq Ft
2
Story
3
Bed
2
Bath
0
Car
Plan Collection
Plan Collection
Plan Collection
Plan#146-2810
Starting at$1285
3594
Sq Ft
2
Story
4
Bed
3.5
Bath
2
Car
Plan Collection
Plan Collection
Plan Collection
Plan#146-1917
Starting at$1120
2525
Sq Ft
2
Story
4
Bed
2.5
Bath
3
Car