4-Bedroom, 2788 Sq Ft European Plan with Main Floor Master

Main image for house plan # 20321

Images/Plans copyrighted by designer. Photos may reflect homeowner modifications.

About House Plan #100-1119

Sq Ft
2788
Sq Ft
Bedrooms
4
Bedrooms
Bathroom
3
Baths
Half Baths
0
Half Baths
Bedrooms
3
Cars
Bedrooms
1
Stories
Bedrooms
67' 0'
Width
Bedrooms
63
Depth
Starting at$1700.00What's included
STEP 1Bedrooms
STEP 2Bedrooms
STEP 3Bedrooms

Subtotal:$0
Plan Collection

How much will it cost to build?

Estimate your costs based on your location and materials.

Free Cost Instant Estimator

Floor Plans

FLOOR PLAN
FLOOR PLAN
Plan Collection

Can I modify this plan?

Yes! This plan can be customized—contact us for a free quote.

Additional Notes from Designer

The CAD File formats are drawn in SoftPlan. PLEASE NOTE: Plans by this designer do NOT come with FRAMING! This designer does not do ICF.

House Plan Description

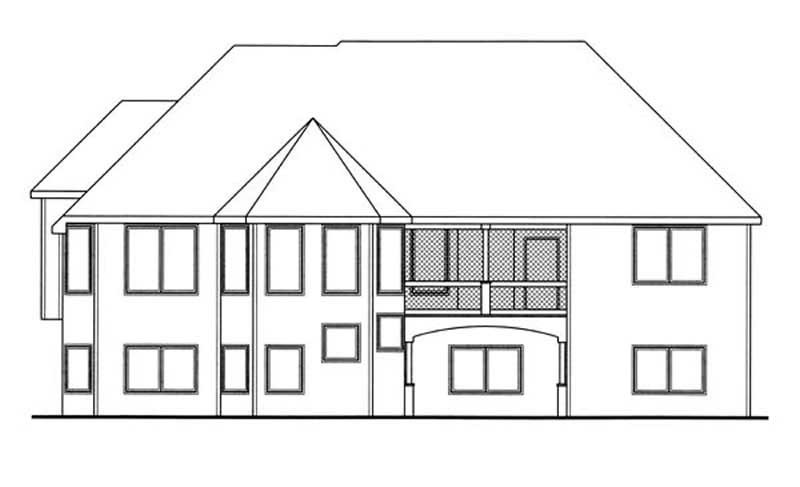
The #100-1119 home plan is a single story, Traditional European style house plan with 2788 total living square feet. It has 4 bedrooms, 3 bathrooms, and a 3 car garage. The covered porch leads you into the great room which has 10' high ceilings. To the left of the great room is the hearth, kitchen, and two bedrooms. To the right of the great room is the master bedroom and bath, as well as the other main level bedroom. This home plan has a very ceremonial traditional-European style house plan.

Home Details

Summary
Plan #:100-1119
Starting at:$1700.00
Floors:1
Bedrooms:4
Full Baths:3
Half Baths:0
Garage:
Square Footage
Heated Area:2788 Sq. Ft.
First Floor:2788 Sq. Ft.
Unheated Area:
Garage:705 Sq. Ft.
Dimensions
Ridge Height:25'5' 0''
Architectural Styles
Exterior Wall Material
Brick
Roofing Type
Hip
Roof Pitch
8/12
Fireplaces
One Fireplace
Exterior Wall Framing
2x4

What’s Included

Most plan sets include the following:

icon text-secondary-400 includedCover Sheet: Shows the front elevation and typical notes and requirements.

icon text-secondary-400 includedExterior Elevations: Shows the front, rear and sides of the home including exterior materials, details and measurements

icon text-secondary-400 includedFloor Plans: Shows the placement of walls and the dimensions for rooms, doors, windows, stairways, etc. for each floor.

icon text-secondary-400 includedElectrical Plans: Shows the location of outlets, fixtures and switches. They are shown as a separate sheet to make the floor plans more legible

icon text-secondary-400 includedFoundation Plans: will include a basement, crawlspace or slab depending on what is available for that home plan. (Please refer to the home plan's details sheet to see what foundation options are available for a specific home plan.) The foundation plan details the layout and construction of the foundation.

icon text-secondary-400 includedRoof Plan

icon text-secondary-400 includedTypical wall section

icon text-secondary-400 includedTypical stair section

icon text-secondary-400 includedCabinets are shown on all plans.

What’s Not Included

These items are  NOT included:

icon text-secondary-400 includedArchitectural or Engineering Stamp - handled locally if required.

icon text-secondary-400 includedSite Plan - handled locally when required.

icon text-secondary-400 includedMechanical Drawings (location of heating and air equipment and ductwork) - your subcontractors handle this.

icon text-secondary-400 includedPlumbing Drawings (drawings showing the actual plumbing pipe sizes and locations) - your subcontractors handle this.

icon text-secondary-400 includedEnergy calculations - handled locally when required.

Related House Plans

Plan Collection
Plan Collection
Plan Collection
Plan#142-1102
Starting at$1395
2639
Sq Ft
1
Story
4
Bed
3
Bath
2
Car
Plan Collection
Plan Collection
Plan Collection
Plan#146-2173
Starting at$1015
2464
Sq Ft
1
Story
4
Bed
3
Bath
3
Car
Plan Collection
Plan Collection
Plan Collection
Plan#142-1005
Starting at$1395
2500
Sq Ft
1
Story
4
Bed
3
Bath
2
Car
View All

Other Plans By This Designer

Plan Collection
Plan Collection
Plan Collection
Plan#100-1364
Starting at$350
224
Sq Ft
1.5
Story
0
Bed
0
Bath
0
Car
Plan Collection
Plan Collection
Plan Collection
Plan#100-1311
Starting at$1800
2978
Sq Ft
2
Story
6
Bed
2.5
Bath
2
Car
Plan Collection
Plan Collection
Plan Collection
Plan#100-1054
Starting at$1800
1412
Sq Ft
1
Story
3
Bed
1.5
Bath
2
Car