4-Bedroom, 2877 Sq Ft Craftsman Plan with Master Bathroom

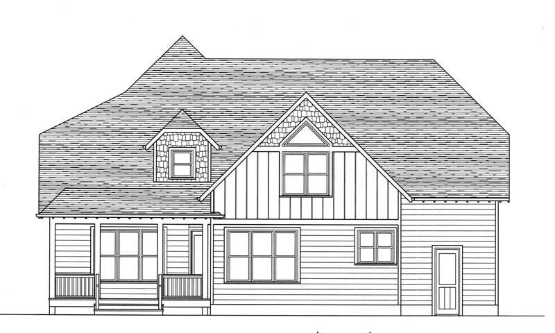
Main image for house plan # 19823

Images/Plans copyrighted by designer. Photos may reflect homeowner modifications.

About House Plan #127-1000

Sq Ft
2877
Sq Ft
Bedrooms
4
Bedrooms
Bathroom
3
Baths
Half Baths
0
Half Baths
Bedrooms
3
Cars
Bedrooms
2
Stories
Bedrooms
55' 0'
Width
Bedrooms
53
Depth
Starting at$1900.00What's included
STEP 1Bedrooms
STEP 2Bedrooms
STEP 3Bedrooms

Subtotal:$0
Plan Collection

How much will it cost to build?

Estimate your costs based on your location and materials.

Free Cost Instant Estimator

Floor Plans

Main Floor Plan
Main Floor Plan
Second Floor Plan
Second Floor Plan
Plan Collection

Can I modify this plan?

Yes! This plan can be customized—contact us for a free quote.

Additional Notes from Designer

NO MODS currently as of 2/9/2021

House Plan Description

House Plan EDG-2877 has a floor plan with formal and informal areas, making it perfect for entertaining guests. Towards the front, there is a formal dining room and a study. At the rear, the floor plan opens up into a great room, kitchen, and dining nook. The rear corner features a small corner office and a pantry, which could be modified to be a large office or a large pantry. The upper floor houses the bedrooms, the laundry, and a bonus room. The secondary bedrooms both have immediate access to a bathroom. The master suite is large with a vaulted ceiling, large walk-in closet, and a...

Home Details

Summary
Plan #:127-1000
Starting at:$1900.00
Floors:2
Bedrooms:4
Full Baths:3
Half Baths:0
Garage:
Square Footage
Heated Area:2877 Sq. Ft.
First Floor:1472 Sq. Ft.
Second Floor:1405 Sq. Ft.
Unheated Area:
Bonus Room:257 Sq. Ft.
Garage:719 Sq. Ft.
Dimensions
Depth:53' 4''
Ridge Height:32'6' 0''
Architectural Styles
Exterior Wall Material
Rock/StoneWood SidingShakes
Roofing Type
Hip
Roof Pitch
Other
Ceiling Height
10 Foot Ceiling9 Foot Ceiling
Special Feature
Dining RoomGuest RoomBonus RoomColor Photos
Garage Type
Attached GarageSide Entry
Fireplaces
One Fireplace
Exterior Wall Framing
2x62x4

What’s Included

Most plan sets include the following:

icon text-secondary-400 includedCOVER PAGE

icon text-secondary-400 includedFLOOR PLAN: Showing all dimensions, window and door locations, laminated beams, columns, floor materials, ceiling heights, fireplace size, and specifications.

icon text-secondary-400 includedFOUNDATION PLAN: Dimensioned plan detailing the location and size of footings, slabs, reinforcing steel, and other structural elements that are required to support the load of the upper floors.

icon text-secondary-400 includedFIRST FLOOR FRAMING (and Second and Third Floor Framing if applicable)

icon text-secondary-400 includedCEILING FRAMING

icon text-secondary-400 includedROOF PLAN: Dimensioned plan showing the elements that make up the roof, including notation of spacing and schematics of peaks and valleys.

icon text-secondary-400 includedELECTRICAL LAYOUT:Specifications, notes, schedules, and plan defining the location of panels, service, lighting fixtures, switches, outlets, fans, etc. NOTE – PLEASE VERIFY

icon text-secondary-400 includedFRONT, REAR, AND SIDE ELEVATIONS:The front, rear, and side elevations of the house as drawn. Shows placement of doors & windows on exterior of house, as well as roof pitches, ridge heights, and locations of chimney, exterior vents, etc. The elevations show the positioning of the final grade of the lot, exterior finishes, and other details that are necessary to give the home exterior architectural styling.

icon text-secondary-400 includedCROSS SECTIONS AND INTERIOR DETAILS:Explain certain special conditions more appropriately. A cross section is basically a view of the home (or parts of the home) if it were sliced down the center. These details can be helpful for the contractor.

What’s Not Included

These items are  NOT included:

icon text-secondary-400 includedArchitectural or Engineering Stamp - handled locally if required.

icon text-secondary-400 includedSite Plan - handled locally when required.

icon text-secondary-400 includedMechanical Drawings (location of heating and air equipment and ductwork) - your subcontractors handle this.

icon text-secondary-400 includedPlumbing Drawings (drawings showing the actual plumbing pipe sizes and locations) - your subcontractors handle this.

icon text-secondary-400 includedEnergy calculations - handled locally when required.

Related House Plans

Plan Collection
Plan Collection
Plan Collection
Plan#153-1020
Starting at$1200
2373
Sq Ft
2
Story
4
Bed
3
Bath
3
Car
Plan Collection
Plan Collection
Plan Collection
Plan#153-1786
Starting at$1200
2363
Sq Ft
2
Story
4
Bed
3
Bath
2
Car
Plan Collection
Plan Collection
Plan Collection
Plan#109-1191
Starting at$1495
2909
Sq Ft
2
Story
4
Bed
3.5
Bath
0
Car
View All

Other Plans By This Designer

Plan Collection
Plan Collection
Plan Collection
Plan#127-1011
Starting at$2600
4004
Sq Ft
2
Story
4
Bed
3.5
Bath
3
Car
Plan Collection
Plan Collection
Plan Collection
Plan#127-1050
Starting at$1900
2744
Sq Ft
2
Story
4
Bed
3.5
Bath
2
Car
Plan Collection
Plan Collection
Plan Collection
Plan#127-1045
Starting at$4000
6140
Sq Ft
2
Story
6
Bed
6.5
Bath
2
Car