4-Bedroom, 6280 Sq Ft European Plan with Covered Front Porch

Luxury homeplans color rendering.

Images/Plans copyrighted by designer. Photos may reflect homeowner modifications.

About House Plan #127-1006

Sq Ft
6280
Sq Ft
Bedrooms
4
Bedrooms
Bathroom
4
Baths
Half Baths
3
Half Baths
Bedrooms
3
Cars
Bedrooms
3
Stories
Bedrooms
70' 8'
Width
Bedrooms
84
Depth
Starting at$4000.00What's included
STEP 1Bedrooms
STEP 2Bedrooms
STEP 3Bedrooms

Subtotal:$0
Plan Collection

How much will it cost to build?

Estimate your costs based on your location and materials.

Free Cost Instant Estimator

Floor Plans

Floor Plan First Story
Floor Plan First Story
Floor Plan Second Story
Floor Plan Second Story
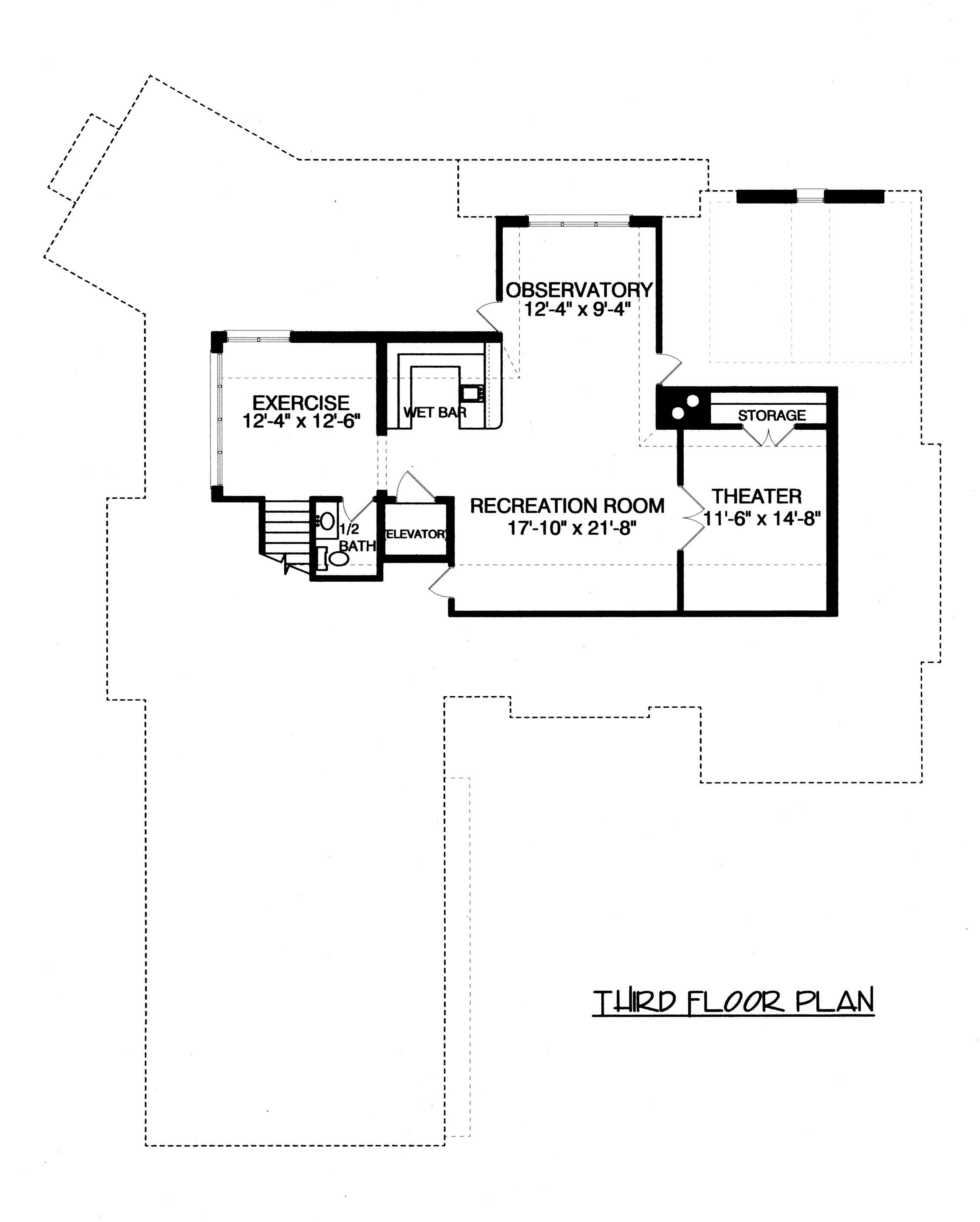
Floor Plan Third Story
Floor Plan Third Story
Plan Collection

Can I modify this plan?

Yes! This plan can be customized—contact us for a free quote.

Additional Notes from Designer

NO MODS currently as of 2/9/2021

House Plan Description

Luxury Plans Hawksmoor II are a beautiful set of house plans with 6280 total living square feet! The main floor plan has the master suite, laundry room, and the kitchen and dining areas. The second floor plan includes an upper master suite as well as a Nanny's Suite and a large game room. The third story includes a recreation room, exercise room, observatory, and a theater. This home plan has ample storage on all three levels. Check out these amazing Luxury houseplans, they have it all!

Home Details

Summary
Plan #:127-1006
Starting at:$4000.00
Floors:3
Bedrooms:4
Full Baths:4
Half Baths:3
Garage:
Square Footage
Heated Area:6280 Sq. Ft.
First Floor:2779 Sq. Ft.
Second Floor:2437 Sq. Ft.
Third Floor:1064 Sq. Ft.
Unheated Area:
Dimensions
Width:70' 8''
Depth:84' 3''
Ridge Height:37.8' 0''
Architectural Styles
Roof Pitch
Other
Ceiling Height
10 Foot Ceiling9 Foot Ceiling
Special Feature
In Home GymDining RoomHome OfficeGame RoomMain Level LaundryHome TheaterStorageElevatorBalcony
Garage Type
Attached GarageCourtyard Entry
Exterior Wall Framing
2x62x4
Kitchen Features
Kitchen IslandWalk-in Pantry
Porches and Exterior Features
Covered Front PorchCovered Rear Porch
Master Suite Features
Main Floor MasterTwo or More Master SuitesMaster BathroomSecond Floor Master

What’s Included

Most plan sets include the following:

icon text-secondary-400 includedCOVER PAGE

icon text-secondary-400 includedFLOOR PLAN: Showing all dimensions, window and door locations, laminated beams, columns, floor materials, ceiling heights, fireplace size, and specifications.

icon text-secondary-400 includedFOUNDATION PLAN: Dimensioned plan detailing the location and size of footings, slabs, reinforcing steel, and other structural elements that are required to support the load of the upper floors.

icon text-secondary-400 includedFIRST FLOOR FRAMING (and Second and Third Floor Framing if applicable)

icon text-secondary-400 includedCEILING FRAMING

icon text-secondary-400 includedROOF PLAN: Dimensioned plan showing the elements that make up the roof, including notation of spacing and schematics of peaks and valleys.

icon text-secondary-400 includedELECTRICAL LAYOUT:Specifications, notes, schedules, and plan defining the location of panels, service, lighting fixtures, switches, outlets, fans, etc. NOTE – PLEASE VERIFY

icon text-secondary-400 includedFRONT, REAR, AND SIDE ELEVATIONS:The front, rear, and side elevations of the house as drawn. Shows placement of doors & windows on exterior of house, as well as roof pitches, ridge heights, and locations of chimney, exterior vents, etc. The elevations show the positioning of the final grade of the lot, exterior finishes, and other details that are necessary to give the home exterior architectural styling.

icon text-secondary-400 includedCROSS SECTIONS AND INTERIOR DETAILS:Explain certain special conditions more appropriately. A cross section is basically a view of the home (or parts of the home) if it were sliced down the center. These details can be helpful for the contractor.

What’s Not Included

These items are  NOT included:

icon text-secondary-400 includedArchitectural or Engineering Stamp - handled locally if required.

icon text-secondary-400 includedSite Plan - handled locally when required.

icon text-secondary-400 includedMechanical Drawings (location of heating and air equipment and ductwork) - your subcontractors handle this.

icon text-secondary-400 includedPlumbing Drawings (drawings showing the actual plumbing pipe sizes and locations) - your subcontractors handle this.

icon text-secondary-400 includedEnergy calculations - handled locally when required.

Related House Plans

Plan Collection
Plan Collection
Plan Collection
Plan#115-1120
Starting at$4600
7425
Sq Ft
3
Story
4
Bed
4.5
Bath
4
Car
Plan Collection
Plan Collection
Plan Collection
Plan#137-1476
Starting at$1440
5224
Sq Ft
3
Story
4
Bed
4.5
Bath
4
Car
Plan Collection
Plan Collection
Plan Collection
Plan#175-1109
Starting at$3500
6189
Sq Ft
3
Story
4
Bed
4.5
Bath
10
Car
View All

Other Plans By This Designer

Plan Collection
Plan Collection
Plan Collection
Plan#127-1011
Starting at$2600
4004
Sq Ft
2
Story
4
Bed
3.5
Bath
3
Car
Plan Collection
Plan Collection
Plan Collection
Plan#127-1050
Starting at$1900
2744
Sq Ft
2
Story
4
Bed
3.5
Bath
2
Car
Plan Collection
Plan Collection
Plan Collection
Plan#127-1045
Starting at$4000
6140
Sq Ft
2
Story
6
Bed
6.5
Bath
2
Car