Estimate your costs based on your location and materials.
Yes! This plan can be customized—contact us for a free quote.
Yes! This plan can be customized—contact us for a free quote.
NO MODS currently as of 2/9/2021
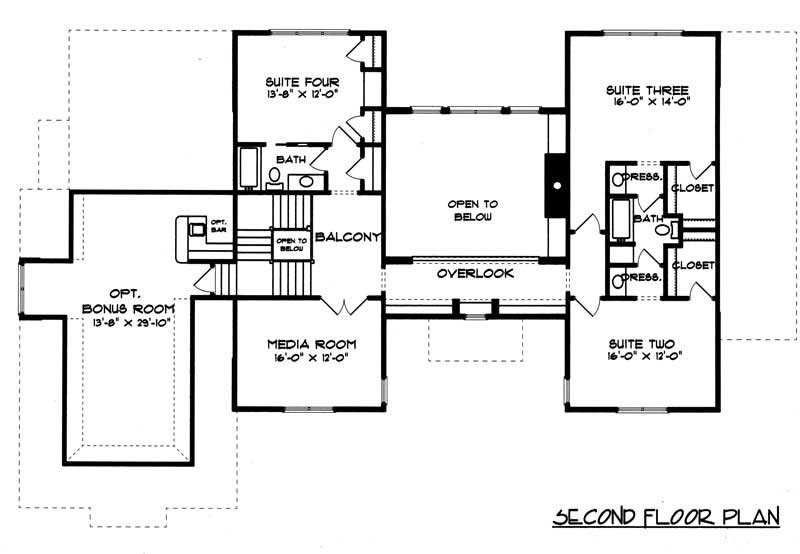
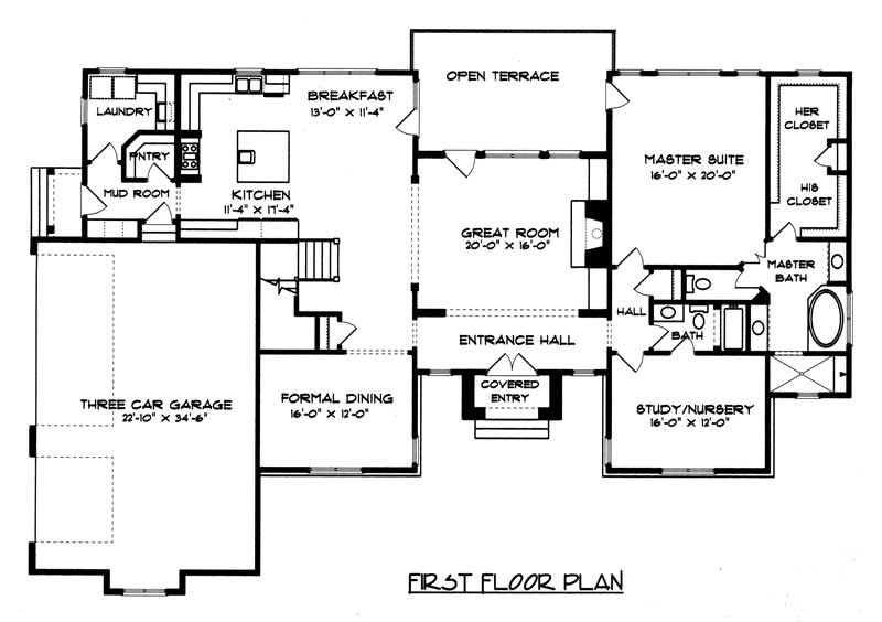
Home EDG-3928 has a smart and spacious floor plan. The main floor has a formal dining room near the entry. The rest of the floor is open with the kitchen and breakfast space open to the gathering room. All bedrooms are private. The master is secluded and has a large master bath with a deep shower and a big walk-in closet. The rest of the bedrooms are upstairs. Special features include 10' high ceilings, a large island in the kitchen, big laundry room, home office/nursery/guest room, walk-in closets in secondary bedrooms, a very large unfinished bonus room, and an open terrace. The roof...
Estimate your costs based on your location and materials.
All sales of house plans, modifications, and other products found on this site are final. No refunds or exchanges can be given once your order has begun the fulfillment process. Please see our Policies for additional information.
All plans offered on ThePlanCollection.com are designed to conform to the local building codes when and where the original plan was drawn.
The homes as shown in photographs and renderings may differ from the actual blueprints. For more detailed information, please review the floor plan images herein carefully.
Estimate your costs based on your location and materials.