5-Bedroom, 4642 Sq Ft Mediterranean Plan with Peninsula/Eating Bar

Main image for house plan # 16571

Images/Plans copyrighted by designer. Photos may reflect homeowner modifications.

About House Plan #156-1287

Sq Ft
4642
Sq Ft
Bedrooms
5
Bedrooms
Bathroom
3
Baths
Half Baths
0
Half Baths
Bedrooms
3
Cars
Bedrooms
2
Stories
Bedrooms
76' 0'
Width
Bedrooms
66
Depth
Starting at$1200.00What's included
STEP 1Bedrooms
STEP 2Bedrooms
STEP 3Bedrooms

Subtotal:$0
Plan Collection

How much will it cost to build?

Estimate your costs based on your location and materials.

Free Cost Instant Estimator

Floor Plans

FIRST STORY FLOOR PLAN
FIRST STORY FLOOR PLAN
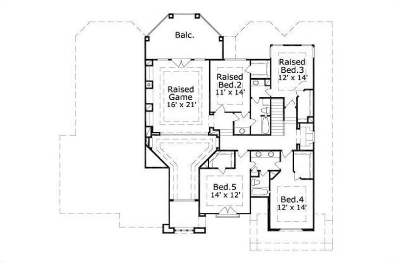
SECOND STORY FLOOR PLAN
SECOND STORY FLOOR PLAN
Plan Collection

Can I modify this plan?

Yes! This plan can be customized—contact us for a free quote.

Additional Notes from Designer

CAD files may take up to 3 business days to receive - please contact us for availability.

House Plan Description

Home plan number 10976 is a two story, Mediterranean style home with a total square footage of 4,642. There are 5 bedrooms and 3 bathrooms, along with a straight in, front loading, 3 car garage. The master bedroom includes a sitting area. Plan number 10976 has a covered terrace. It also has an exterior balcony. Special features include an exercise room, portico, cabana bath, porte cochere and a tile roof. Other features include a butler pantry, computer alcove, foyer, home office, mud entry, unfinished storage and a gallery.

Home Details

Summary
Plan #:156-1287
Starting at:$1200.00
Floors:2
Bedrooms:5
Full Baths:3
Half Baths:0
Garage:
Square Footage
Heated Area:4642 Sq. Ft.
First Floor:2965 Sq. Ft.
Second Floor:1677 Sq. Ft.
Unheated Area:
Dimensions
Ridge Height:32' 0''
Architectural Styles
Exterior Wall Material
Stucco
Ceiling Height
10 Foot Ceiling9 Foot Ceiling
Special Feature
Home Office
Garage Type
Attached GarageFront Entry

What’s Included

Most plan sets include the following:

icon text-secondary-400 includedExterior,

icon text-secondary-400 includedElevations

icon text-secondary-400 includedFloor Plans

icon text-secondary-400 includedElectrical Layout

icon text-secondary-400 includedBuilding Sections

icon text-secondary-400 includedRoofing Plan

icon text-secondary-400 includedInterior Elevations

icon text-secondary-400 includedGeneral Details

icon text-secondary-400 includedWall Sections

What’s Not Included

These items are  NOT included:

icon text-secondary-400 includedArchitectural or Engineering Stamp - handled locally if required.

icon text-secondary-400 includedSite Plan - handled locally when required.

icon text-secondary-400 includedMechanical Drawings (location of heating and air equipment and ductwork) - your subcontractors handle this.

icon text-secondary-400 includedPlumbing Drawings (drawings showing the actual plumbing pipe sizes and locations) - your subcontractors handle this.

icon text-secondary-400 includedEnergy calculations - handled locally when required.

Related House Plans

Plan Collection
Plan Collection
Plan Collection
Plan#135-1198
Starting at$0
4793
Sq Ft
2
Story
5
Bed
3
Bath
3
Car
Plan Collection
Plan Collection
Plan Collection
Plan#100-1013
Starting at$1800
3500
Sq Ft
2
Story
5
Bed
3.5
Bath
3
Car
Plan Collection
Plan Collection
Plan Collection
Plan#159-1110
Starting at$1500
3517
Sq Ft
2
Story
5
Bed
3.5
Bath
2
Car
View All

Other Plans By This Designer

Plan Collection
Plan Collection
Plan Collection
Plan#156-1607
Starting at$1450
5509
Sq Ft
3
Story
6
Bed
6.5
Bath
3
Car
Plan Collection
Plan Collection
Plan Collection
Plan#156-1085
Starting at$1100
3900
Sq Ft
2
Story
4
Bed
3.5
Bath
3
Car
Plan Collection
Plan Collection
Plan Collection
Plan#156-1734
Starting at$1700
6775
Sq Ft
2
Story
6
Bed
4.5
Bath
2
Car