5-Bedroom, 4648 Sq Ft Mediterranean Plan with Main Floor Master

Mediterranean home (ThePlanCollection: Plan #137-1035)

Images/Plans copyrighted by designer. Photos may reflect homeowner modifications.

About House Plan #137-1035

Sq Ft
4648
Sq Ft
Bedrooms
5
Bedrooms
Bathroom
3
Baths
Half Baths
2
Half Baths
Bedrooms
4
Cars
Bedrooms
2
Stories
Bedrooms
97' 0'
Width
Bedrooms
74
Depth
Starting at$1280.00What's included
STEP 1Bedrooms
STEP 2Bedrooms
STEP 3Bedrooms

Subtotal:$0
Plan Collection

How much will it cost to build?

Estimate your costs based on your location and materials.

Free Cost Instant Estimator

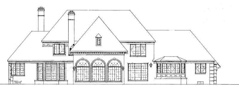
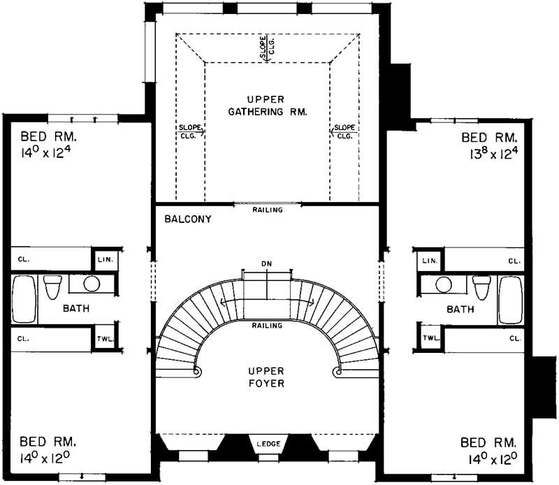
Floor Plans

MAIN FLOOR PLAN
MAIN FLOOR PLAN
SECOND FLOOR PLAN
SECOND FLOOR PLAN
Plan Collection

Can I modify this plan?

Yes! This plan can be customized—contact us for a free quote.

Additional Notes from Designer

Plans from this designer could take up to 14 days to fulfill, regardless of the plan package that was ordered. Please Note: The plans by this designer DO NOT include electrical plans or electrical layout plans. PLEASE NOTE: For this designer, if you are ordering a CAD, the wait time could be 2-3 weeks, depending on the plan. If you need it sooner, please contact us to find out the wait time. Thank you!

House Plan Description

This lavish Mediterranean house design has 4,648 square feet of living space. The two-story floor plan includes 5 bedrooms and 3.5 bathrooms.

Home Details

Summary
Plan #:137-1035
Starting at:$1280.00
Floors:2
Bedrooms:5
Full Baths:3
Half Baths:2
Garage:
Square Footage
Heated Area:4648 Sq. Ft.
First Floor:3350 Sq. Ft.
Second Floor:1298 Sq. Ft.
Unheated Area:
Dimensions
Depth:74' 4''
Ridge Height:34' 0''
Architectural Styles
Exterior Wall Material
Brick
Garage Type
Side Entry
Fireplaces
Two Fireplaces
Exterior Wall Framing
2x4

What’s Included

Most plan sets include the following:

icon text-secondary-400 includedAll 4 elevations

icon text-secondary-400 includedFloor plan

icon text-secondary-400 includedFoundation plan

icon text-secondary-400 includedSections

icon text-secondary-400 includedInterior elevations

icon text-secondary-400 includedDetail page

What’s Not Included

These items are  NOT included:

icon text-secondary-400 includedArchitectural or Engineering Stamp - handled locally if required.

icon text-secondary-400 includedSite Plan - handled locally when required.

icon text-secondary-400 includedMechanical Drawings (location of heating and air equipment and ductwork) - your subcontractors handle this.

icon text-secondary-400 includedPlumbing Drawings (drawings showing the actual plumbing pipe sizes and locations) - your subcontractors handle this.

icon text-secondary-400 includedEnergy calculations - handled locally when required.

Related House Plans

Plan Collection
Plan Collection
Plan Collection
Plan#100-1013
Starting at$1800
3500
Sq Ft
2
Story
5
Bed
3.5
Bath
3
Car
Plan Collection
Plan Collection
Plan Collection
Plan#159-1110
Starting at$1500
3517
Sq Ft
2
Story
5
Bed
3.5
Bath
2
Car
Plan Collection
Plan Collection
Plan Collection
Plan#133-1053
Starting at$0
4460
Sq Ft
2
Story
5
Bed
3
Bath
2
Car
View All

Other Plans By This Designer

Plan Collection
Plan Collection
Plan Collection
Plan#137-1476
Starting at$1440
5224
Sq Ft
3
Story
4
Bed
4.5
Bath
4
Car
Plan Collection
Plan Collection
Plan Collection
Plan#137-1375
Starting at$960
3833
Sq Ft
2
Story
3
Bed
3.5
Bath
2
Car
Plan Collection
Plan Collection
Plan Collection
Plan#137-1826
Starting at$600
1476
Sq Ft
1
Story
3
Bed
2
Bath
0
Car