5-Bedroom, 3996 Sq Ft Country Plan with Master Bathroom

Main image for house plan # 16003

Images/Plans copyrighted by designer. Photos may reflect homeowner modifications.

About House Plan #156-1071

Sq Ft
3996
Sq Ft
Bedrooms
5
Bedrooms
Bathroom
4
Baths
Half Baths
0
Half Baths
Bedrooms
3
Cars
Bedrooms
2
Stories
Bedrooms
75' 0'
Width
Bedrooms
71
Depth
Starting at$1100.00What's included
STEP 1Bedrooms
STEP 2Bedrooms
STEP 3Bedrooms

Subtotal:$0
Plan Collection

How much will it cost to build?

Estimate your costs based on your location and materials.

Free Cost Instant Estimator

Floor Plans

FIRST STORY FLOOR PLAN
FIRST STORY FLOOR PLAN
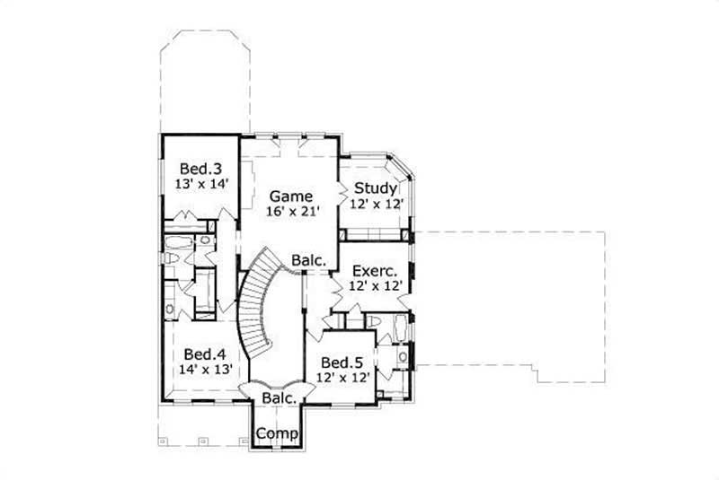
SECOND STORY FLOOR PLAN
SECOND STORY FLOOR PLAN
Plan Collection

Can I modify this plan?

Yes! This plan can be customized—contact us for a free quote.

Additional Notes from Designer

CAD files may take up to 3 business days to receive - please contact us for availability.

House Plan Description

Home plan number 30071 is a two story, Country French style home with a total square footage of 3,996. There are 5 bedrooms and 4 and 1/2 bathrooms, along with a straight in, front loading, 3 car garage. The master bedroom includes a sitting area. Plan number 30071 has a covered front porch and rear porch. Features include a butler pantry, foyer, computer alcove and a home office.

Home Details

Summary
Plan #:156-1071
Starting at:$1100.00
Floors:2
Bedrooms:5
Full Baths:4
Half Baths:0
Garage:
Square Footage
Heated Area:3996 Sq. Ft.
First Floor:2187 Sq. Ft.
Second Floor:1809 Sq. Ft.
Unheated Area:
Dimensions
Ridge Height:36' 0''
Architectural Styles
Exterior Wall Material
BrickRock/Stone
Ceiling Height
10 Foot Ceiling9 Foot Ceiling
Special Feature
Home Office
Garage Type
Attached GarageFront Entry
Porches and Exterior Features
Covered Front Porch

What’s Included

Most plan sets include the following:

icon text-secondary-400 includedExterior,

icon text-secondary-400 includedElevations

icon text-secondary-400 includedFloor Plans

icon text-secondary-400 includedElectrical Layout

icon text-secondary-400 includedBuilding Sections

icon text-secondary-400 includedRoofing Plan

icon text-secondary-400 includedInterior Elevations

icon text-secondary-400 includedGeneral Details

icon text-secondary-400 includedWall Sections

What’s Not Included

These items are  NOT included:

icon text-secondary-400 includedArchitectural or Engineering Stamp - handled locally if required.

icon text-secondary-400 includedSite Plan - handled locally when required.

icon text-secondary-400 includedMechanical Drawings (location of heating and air equipment and ductwork) - your subcontractors handle this.

icon text-secondary-400 includedPlumbing Drawings (drawings showing the actual plumbing pipe sizes and locations) - your subcontractors handle this.

icon text-secondary-400 includedEnergy calculations - handled locally when required.

Related House Plans

Plan Collection
Plan Collection
Plan Collection
Plan#198-1060
Starting at$1985
3970
Sq Ft
2
Story
5
Bed
4.5
Bath
2
Car
Plan Collection
Plan Collection
Plan Collection
Plan#189-1102
Starting at$1595
3942
Sq Ft
2
Story
5
Bed
4.5
Bath
3
Car
Plan Collection
Plan Collection
Plan Collection
Plan#106-1173
Starting at$1695
3698
Sq Ft
2
Story
5
Bed
4
Bath
3
Car
View All

Other Plans By This Designer

Plan Collection
Plan Collection
Plan Collection
Plan#156-1607
Starting at$1450
5509
Sq Ft
3
Story
6
Bed
6.5
Bath
3
Car
Plan Collection
Plan Collection
Plan Collection
Plan#156-1085
Starting at$1100
3900
Sq Ft
2
Story
4
Bed
3.5
Bath
3
Car
Plan Collection
Plan Collection
Plan Collection
Plan#156-1734
Starting at$1700
6775
Sq Ft
2
Story
6
Bed
4.5
Bath
2
Car