4-Bedroom, 4144 Sq Ft Country Plan with Walk In Closet

Main image for house plan # 15651

Images/Plans copyrighted by designer. Photos may reflect homeowner modifications.

About House Plan #156-2227

Sq Ft
4144
Sq Ft
Bedrooms
4
Bedrooms
Bathroom
3
Baths
Half Baths
0
Half Baths
Bedrooms
2
Cars
Bedrooms
2
Stories
Bedrooms
56' 0'
Width
Bedrooms
81
Depth
Starting at$1150.00What's included
STEP 1Bedrooms
STEP 2Bedrooms
STEP 3Bedrooms

Subtotal:$0
Plan Collection

How much will it cost to build?

Estimate your costs based on your location and materials.

Free Cost Instant Estimator

Floor Plans

First Floor Plan
First Floor Plan
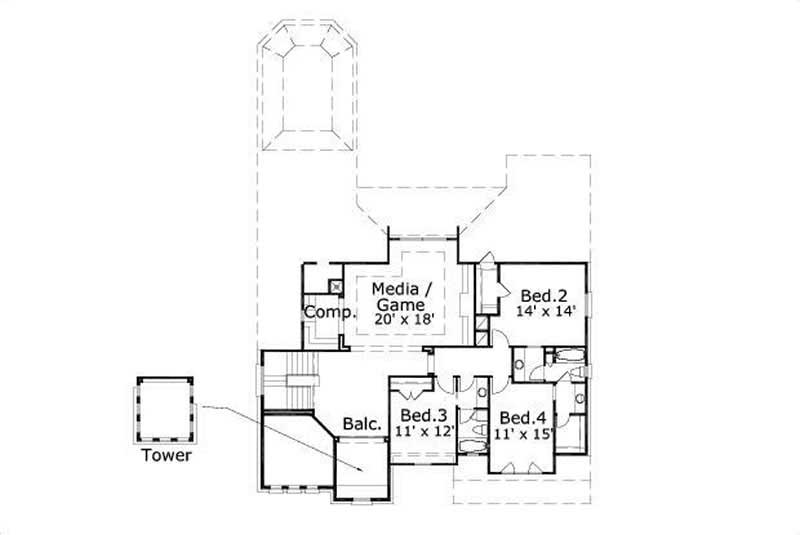
Second Floor Plan
Second Floor Plan
Plan Collection

Can I modify this plan?

Yes! This plan can be customized—contact us for a free quote.

Additional Notes from Designer

CAD files may take up to 3 business days to receive - please contact us for availability.

House Plan Description

Home Plan #20556 is a two story country french style home with brick and stucco exterior and 4144 total living square feet. It has 4 bedrooms and 3 baths as well as a straight in front load 2 car garage. This house plan also has 2 living areas, 2 dining areas, a computer alcove, a home office, a portico, a theater/media, a covered rear porch, a master with sitting area, and a separate master closet.

Home Details

Summary
Plan #:156-2227
Starting at:$1150.00
Floors:2
Bedrooms:4
Full Baths:3
Half Baths:0
Garage:
Square Footage
Heated Area:4144 Sq. Ft.
First Floor:2605 Sq. Ft.
Second Floor:1539 Sq. Ft.
Unheated Area:
Dimensions
Ridge Height:33' 0''
Architectural Styles
Exterior Wall Material
BrickStucco
Ceiling Height
10 Foot Ceiling9 Foot Ceiling
Special Feature
Home Office
Garage Type
Front Entry
Porches and Exterior Features
Covered Rear Porch

What’s Included

Most plan sets include the following:

icon text-secondary-400 includedExterior,

icon text-secondary-400 includedElevations

icon text-secondary-400 includedFloor Plans

icon text-secondary-400 includedElectrical Layout

icon text-secondary-400 includedBuilding Sections

icon text-secondary-400 includedRoofing Plan

icon text-secondary-400 includedInterior Elevations

icon text-secondary-400 includedGeneral Details

icon text-secondary-400 includedWall Sections

What’s Not Included

These items are  NOT included:

icon text-secondary-400 includedArchitectural or Engineering Stamp - handled locally if required.

icon text-secondary-400 includedSite Plan - handled locally when required.

icon text-secondary-400 includedMechanical Drawings (location of heating and air equipment and ductwork) - your subcontractors handle this.

icon text-secondary-400 includedPlumbing Drawings (drawings showing the actual plumbing pipe sizes and locations) - your subcontractors handle this.

icon text-secondary-400 includedEnergy calculations - handled locally when required.

Related House Plans

Plan Collection
Plan Collection
Plan Collection
Plan#161-1067
Starting at$2400
3897
Sq Ft
2
Story
4
Bed
3.5
Bath
3
Car
Plan Collection
Plan Collection
Plan Collection
Plan#120-2176
Starting at$1255
3124
Sq Ft
2
Story
4
Bed
3.5
Bath
2
Car
Plan Collection
Plan Collection
Plan Collection
Plan#134-1326
Starting at$0
4955
Sq Ft
2
Story
4
Bed
3.5
Bath
4
Car
View All

Other Plans By This Designer

Plan Collection
Plan Collection
Plan Collection
Plan#156-1607
Starting at$1450
5509
Sq Ft
3
Story
6
Bed
6.5
Bath
3
Car
Plan Collection
Plan Collection
Plan Collection
Plan#156-1085
Starting at$1100
3900
Sq Ft
2
Story
4
Bed
3.5
Bath
3
Car
Plan Collection
Plan Collection
Plan Collection
Plan#156-1734
Starting at$1700
6775
Sq Ft
2
Story
6
Bed
4.5
Bath
2
Car