3-Bed, 1731 Sq Ft Ranch with Unfinished Basement

California Ranch house design (ThePlanCollection: Plan #177-1035)

Images/Plans copyrighted by designer. Photos may reflect homeowner modifications.

About House Plan #177-1035

Sq Ft
1731
Sq Ft
Bedrooms
3
Bedrooms
Bathroom
2
Baths
Half Baths
1
Half Baths
Bedrooms
3
Cars
Bedrooms
1
Stories
Bedrooms
74' 0'
Width
Bedrooms
45
Depth
Starting at$1150.00What's included
STEP 1Bedrooms
STEP 2Bedrooms
STEP 3Bedrooms

Subtotal:$0
Plan Collection

How much will it cost to build?

Estimate your costs based on your location and materials.

Free Cost Instant Estimator

Floor Plans

Main Level
Main Level
Plan Collection

Can I modify this plan?

Yes! This plan can be customized—contact us for a free quote.

Additional Notes from Designer

No BCIN available. We advise you purchase a CAD and use a local engineer for BCIN Additional Use Licenses and Unlimited Use Licenses are available. After purchasing the plan, the designer will charge you separately for the additional licenses.

House Plan Description

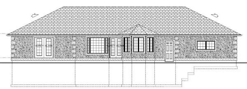
This appealing Ranch style home with Contemporary design characteristics (Plan #177-1035) has over 1700 square feet of heated and cooled living space. The attractive 1-story home's floor plan includes 3 bedrooms and
• Corner fireplace in the Great Room
• Large kitchen island with raised breakfast bar
• Bedroom with double French doors that could also serve as an office
• Rear covered patio for outdoor entertaining
• 9-foot-high ceiling in the garage

Home Details

Summary
Plan #:177-1035
Starting at:$1150.00
Floors:1
Bedrooms:3
Full Baths:2
Half Baths:1
Garage:
Square Footage
Heated Area:1731 Sq. Ft.
First Floor:1731 Sq. Ft.
Unheated Area:
Garage:888 Sq. Ft.
Dimensions
Architectural Styles
Exterior Wall Material
Stucco
Roofing Type
Hip
Roofing Material
Asphalt Shingles
Roof Pitch
6/12
Ceiling Height
9 Foot Ceiling8 Foot Ceiling
Special Feature
FireplaceDining RoomHome OfficeFamily RoomMain Level LaundryStorageOpen Floor Plan
Garage Type
Attached GarageSide Entry
Fireplaces
One Fireplace
Exterior Wall Framing
2x6
Building Lot Type
Flat SiteCorner Lot
Kitchen Features
Kitchen IslandNook/Breakfast AreaPeninsula/Eating BarEat-In Kitchen
Porches and Exterior Features
Covered Rear PorchPorticoCovered Rear Patio
Master Suite Features
Main Floor Master

What’s Included

Most plan sets include the following:

icon text-secondary-400 includedElectrical Layout

icon text-secondary-400 includedElevations

icon text-secondary-400 includedFoundation

icon text-secondary-400 includedTypically Roof Trusses, a few A-Frames might have the Stick Frame, but mostly roof trusses

icon text-secondary-400 includedWall Section

icon text-secondary-400 includedBuilding Sections

icon text-secondary-400 includedMaterial list available for purchase

icon text-secondary-400 includedCabinet elevations will vary depending on the plan (plans with inside modeling will typically have the cabinet elevations)

What’s Not Included

These items are  NOT included:

icon text-secondary-400 includedArchitectural or Engineering Stamp - handled locally if required.

icon text-secondary-400 includedSite Plan - handled locally when required.

icon text-secondary-400 includedMechanical Drawings (location of heating and air equipment and duct work) - your subcontractors handle this.

icon text-secondary-400 includedPlumbing Drawings (drawings showing the actual plumbing pipe sizes and locations) - your subcontractors handle this.

icon text-secondary-400 includedEnergy calculations - handled locally when required.

Related House Plans

Plan Collection
Plan Collection
Plan Collection
Plan#117-1092
Starting at$1095
2091
Sq Ft
1
Story
3
Bed
2.5
Bath
2
Car
Plan Collection
Plan Collection
Plan Collection
Plan#142-1041
Starting at$1245
1300
Sq Ft
1
Story
3
Bed
2
Bath
2
Car
Plan Collection
Plan Collection
Plan Collection
Plan#141-1243
Starting at$1485
1640
Sq Ft
1
Story
3
Bed
2
Bath
2
Car
View All

Other Plans By This Designer

Plan Collection
Plan Collection
Plan Collection
Plan#177-1054
Starting at$1040
624
Sq Ft
1
Story
1
Bed
1
Bath
0
Car
Plan Collection
Plan Collection
Plan Collection
Plan#177-1057
Starting at$1040
928
Sq Ft
1
Story
2
Bed
2
Bath
2
Car
Plan Collection
Plan Collection
Plan Collection
Plan#177-1055
Starting at$1090
1244
Sq Ft
1
Story
3
Bed
2
Bath
1
Car