3-Bedroom, 2599 Sq Ft European Plan with Split Master Bedroom

Main image for house plan # 11282

Images/Plans copyrighted by designer. Photos may reflect homeowner modifications.

About House Plan #174-1003

Sq Ft
2599
Sq Ft
Bedrooms
3
Bedrooms
Bathroom
4
Baths
Half Baths
0
Half Baths
Bedrooms
2
Cars
Bedrooms
2
Stories
Bedrooms
48' 0'
Width
Bedrooms
72
Depth
Starting at$810.00What's included
STEP 1Bedrooms
STEP 2Bedrooms
STEP 3Bedrooms

Subtotal:$0
Plan Collection

How much will it cost to build?

Estimate your costs based on your location and materials.

Free Cost Instant Estimator

Floor Plans

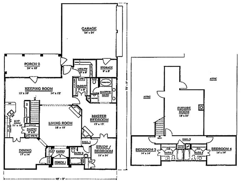
FIRST FLOOR PL;AN
FIRST FLOOR PL;AN
Plan Collection

Can I modify this plan?

Yes! This plan can be customized—contact us for a free quote.

House Plan Description

This set of House Plans has a symmetrical shape and a very European Style design. The stucco exterior and the hipped roof, combined with elegant arches and stately shutters make this set of house plans truly spectacular.

Home Details

Summary
Plan #:174-1003
Starting at:$810.00
Floors:2
Bedrooms:3
Full Baths:4
Half Baths:0
Garage:
Square Footage
Heated Area:2599 Sq. Ft.
First Floor:1967 Sq. Ft.
Second Floor:632 Sq. Ft.
Unheated Area:
Dimensions
Depth:72' 6''
Architectural Styles
Exterior Wall Material
Stucco
Roofing Type
Hip
Roofing Material
Asphalt Shingles
Special Feature
FireplaceDining RoomHome OfficeBonus RoomMain Level LaundryStorage
Garage Type
Attached Garage
Building Lot Type
Flat Site
Porches and Exterior Features
Covered Rear Porch
Master Suite Features
Main Floor MasterMaster BathroomWalk In Closet

What’s Included

Most plan sets include the following:

icon text-secondary-400 includedExterior elevations

icon text-secondary-400 includedFloor plan (with ceiling joists sizes)

icon text-secondary-400 includedCross-sections

icon text-secondary-400 includedCabinet elevations

icon text-secondary-400 includedFoundation plan

icon text-secondary-400 includedRoof plan

icon text-secondary-400 includedElectrical layout

What’s Not Included

These items are  NOT included:

icon text-secondary-400 includedArchitectural or Engineering Stamp - handled locally if required.

icon text-secondary-400 includedSite Plan - handled locally when required.

icon text-secondary-400 includedMechanical Drawings (location of heating and air equipment and duct work) - your subcontractors handle this.

icon text-secondary-400 includedPlumbing Drawings (drawings showing the actual plumbing pipe sizes and locations) - your subcontractors handle this.

icon text-secondary-400 includedEnergy calculations - handled locally when required.

Related House Plans

Plan Collection
Plan Collection
Plan Collection
Plan#202-1003
Starting at$1000
2536
Sq Ft
2
Story
3
Bed
4.5
Bath
3
Car
Plan Collection
Plan Collection
Plan Collection
Plan#180-1036
Starting at$1350
2765
Sq Ft
2
Story
3
Bed
4
Bath
2
Car
Plan Collection
Plan Collection
Plan Collection
Plan#132-1545
Starting at$1245
2522
Sq Ft
2
Story
3
Bed
4
Bath
2
Car
View All

Other Plans By This Designer

Plan Collection
Plan Collection
Plan Collection
Plan#174-1043
Starting at$610
1277
Sq Ft
1
Story
3
Bed
2
Bath
0
Car
Plan Collection
Plan Collection
Plan Collection
Plan#174-1033
Starting at$660
1620
Sq Ft
1
Story
4
Bed
2
Bath
2
Car
Plan Collection
Plan Collection
Plan Collection
Plan#174-1039
Starting at$660
1476
Sq Ft
1
Story
1
Bed
2.5
Bath
2
Car