4-Bedroom, 9792 Sq Ft Victorian Plan with Bowling Area

Front elevation of Victorian home (ThePlanCollection: House Plan #195-1326)

Images/Plans copyrighted by designer. Photos may reflect homeowner modifications.

About House Plan #195-1326

Sq Ft
9792
Sq Ft
Bedrooms
4
Bedrooms
Bathroom
5
Baths
Half Baths
1
Half Baths
Bedrooms
5
Cars
Bedrooms
2
Stories
Bedrooms
237' 0'
Width
Bedrooms
114
Depth
Starting at$4180.00What's included
STEP 1Bedrooms
STEP 2Bedrooms
STEP 3Bedrooms

Subtotal:$0
Plan Collection

How much will it cost to build?

Estimate your costs based on your location and materials.

Free Cost Instant Estimator

Floor Plans

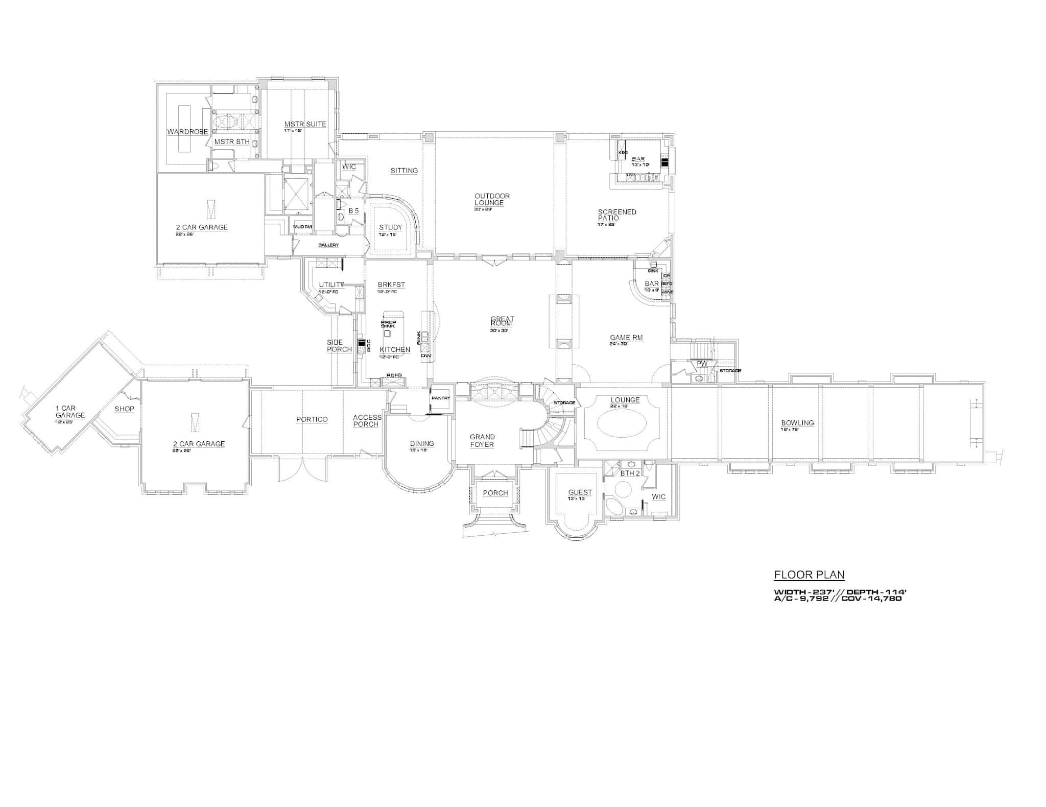
Main Level
Main Level
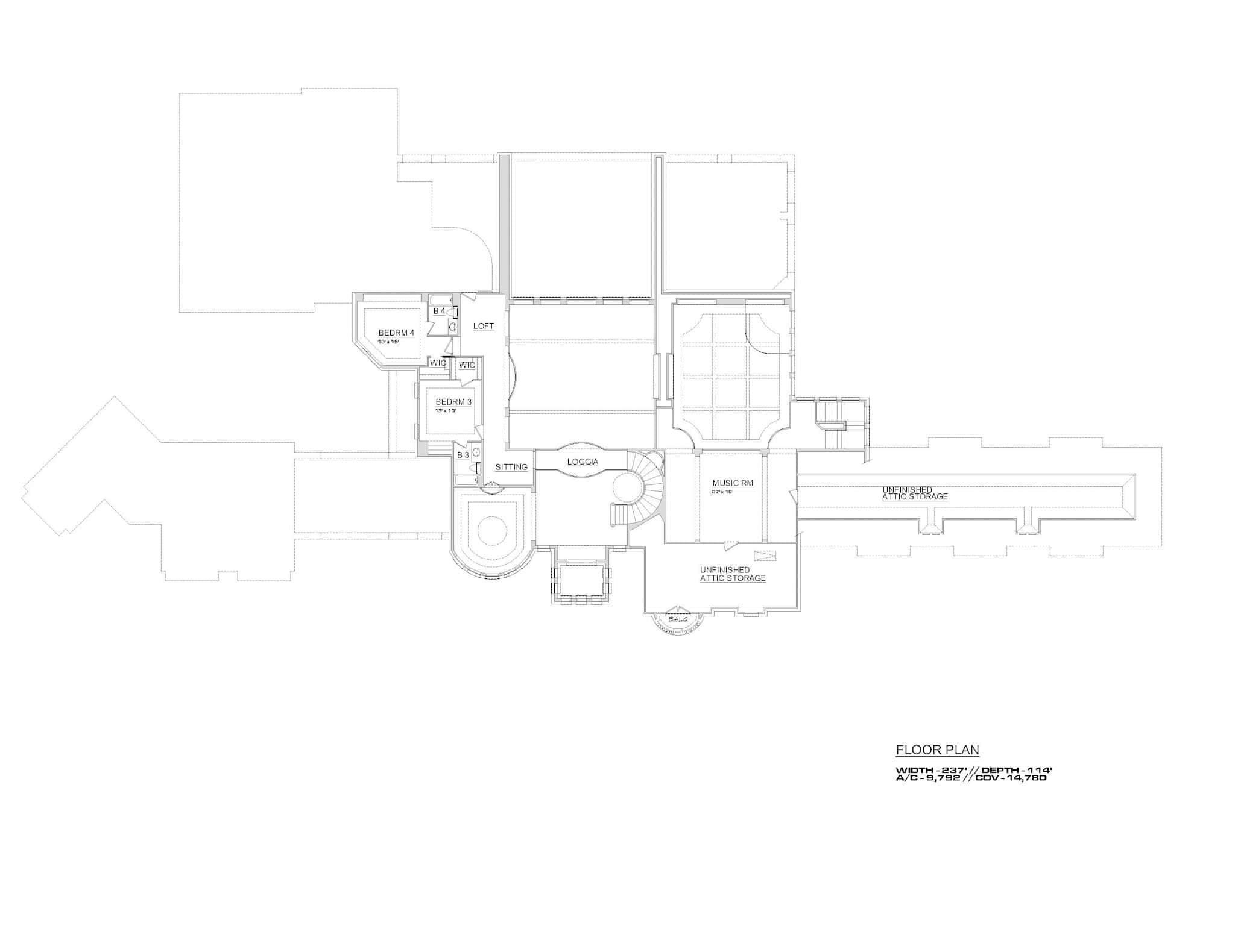
Upper Level
Upper Level
Plan Collection

Can I modify this plan?

Yes! This plan can be customized—contact us for a free quote.

Additional Notes from Designer

This designer does not offer ICF!

House Plan Description

This 9,792 square feet Victorian home exudes a European charm, featuring 4 bedrooms (1 guest room), 5.5 baths, and a 5-car garage. Notably, the property offers a host of fantastic amenities:

  • Outdoor Lounge, Indoor Lounge, Great Room, Study Room, Sitting Room, Loft
  • Music Room, Bowling Area, Game Room, Bar, Kitchen with Walk-in Pantry
  • Main Floor Master Suite with Walk-in Closet, Master Bathroom

Home Details

Summary
Plan #:195-1326
Starting at:$4180.00
Floors:2
Bedrooms:4
Full Baths:5
Half Baths:1
Garage:
Square Footage
Heated Area:9792 Sq. Ft.
First Floor:8123 Sq. Ft.
Second Floor:1669 Sq. Ft.
Unheated Area:
Garage:1971 Sq. Ft.
Dimensions
Architectural Styles
Exterior Wall Material
Vinyl SidingBrickStucco
Roofing Type
HipGable/DormerMansard
Roofing Material
Asphalt Shingles
Roof Pitch
8/1216/12
Ceiling Height
10 Foot Ceiling11 Foot Ceiling
Special Feature
FireplaceDining RoomGuest RoomMud RoomFamily RoomGame RoomMain Level LaundryMedia RoomLoftStorageOpen Floor Plan
Garage Type
Attached GarageCourtyard EntrySide Entry
Fireplaces
One Fireplace
Exterior Wall Framing
2x4
Building Lot Type
Flat Site
Kitchen Features
Kitchen IslandNook/Breakfast AreaWalk-in Pantry
Porches and Exterior Features
Covered Front PorchCovered Rear PorchPatio
Master Suite Features
Main Floor MasterMaster BathroomWalk In ClosetSplit Master Bedroom

What’s Included

Most plan sets include the following:

icon text-secondary-400 includedDimension Plan

icon text-secondary-400 includedNotation Plan

icon text-secondary-400 includedElectrical Layout

icon text-secondary-400 includedElevations

icon text-secondary-400 includedRoof Plan

icon text-secondary-400 includedGeneral Specifications

icon text-secondary-400 includedGeneral Details

What’s Not Included

These items are  NOT included:

icon text-secondary-400 includedArchitectural or Engineering Stamp - handled locally if required.

icon text-secondary-400 includedSite Plan - handled locally when required.

icon text-secondary-400 includedMechanical Drawings (location of heating and air equipment and ductwork) - your subcontractors handle this.

icon text-secondary-400 includedPlumbing Drawings (drawings showing the actual plumbing pipe sizes and locations) - your subcontractors handle this.

icon text-secondary-400 includedEnergy calculations - handled locally when required.

Related House Plans

Plan Collection
Plan Collection
Plan Collection
Plan#115-1144
Starting at$4600
7950
Sq Ft
2
Story
4
Bed
5.5
Bath
4
Car
Plan Collection
Plan Collection
Plan Collection
Plan#115-1182
Starting at$4600
7985
Sq Ft
2
Story
4
Bed
5
Bath
5
Car
Plan Collection
Plan Collection
Plan Collection
Plan#115-1226
Starting at$5400
9250
Sq Ft
2
Story
4
Bed
5
Bath
4
Car
View All

Other Plans By This Designer

Plan Collection
Plan Collection
Plan Collection
Plan#195-1216
Starting at$3295
7587
Sq Ft
2
Story
5
Bed
6.5
Bath
3
Car
Plan Collection
Plan Collection
Plan Collection
Plan#195-1307
Starting at$7995
12720
Sq Ft
2
Story
5
Bed
6.5
Bath
5
Car
Plan Collection
Plan Collection
Plan Collection
Plan#195-1127
Starting at$9995
14727
Sq Ft
2
Story
9
Bed
8.5
Bath
9
Car