3-Bedroom, 918 Sq Ft Rustic Plan with Open Floor Plan

Front elevation of Rustic home (ThePlanCollection: House Plan #216-1006)

Images/Plans copyrighted by designer. Photos may reflect homeowner modifications.

About House Plan #216-1006

Sq Ft
918
Sq Ft
Bedrooms
3
Bedrooms
Bathroom
2
Baths
Half Baths
0
Half Baths
Bedrooms
0
Cars
Bedrooms
2
Stories
Bedrooms
15' 0'
Width
Bedrooms
32
Depth
Starting at$995.00What's included
STEP 1Bedrooms
STEP 2Bedrooms
STEP 3Bedrooms

Subtotal:$0
Plan Collection

How much will it cost to build?

Estimate your costs based on your location and materials.

Free Cost Instant Estimator

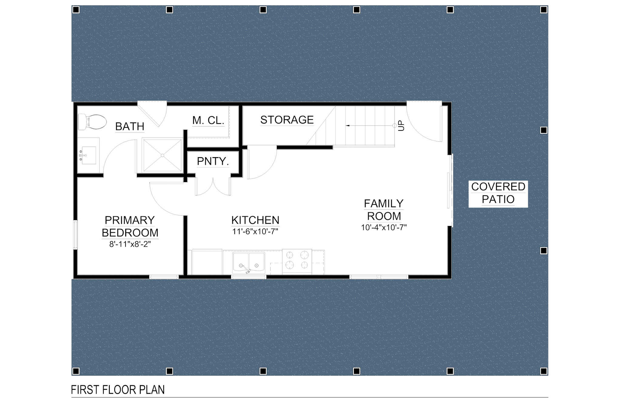
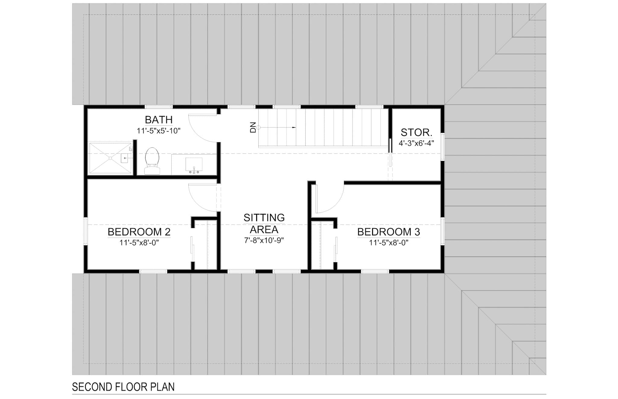
Floor Plans

Main Level
Main Level
Upper Level
Upper Level
Plan Collection

Can I modify this plan?

Yes! This plan can be customized—contact us for a free quote.

Additional Notes from Designer

Note: Porch sq ft figures may include any deck sq ft as well.

House Plan Description

With alluring Rustic touches, this 918 square feet Arts & Crafts style gem contains 3 bedrooms, and 2 baths. Not to forget, the home includes an impressive array of extras:

  • Family Room, Kitchen with Walk-in Pantry, Sitting Area
  • Main Floor Master Suite with Walk-in Closet

Home Details

Summary
Plan #:216-1006
Starting at:$995.00
Floors:2
Bedrooms:3
Full Baths:2
Half Baths:0
Garage:
Square Footage
Heated Area:918 Sq. Ft.
First Floor:480 Sq. Ft.
Second Floor:438 Sq. Ft.
Unheated Area:
Porch:760 Sq. Ft.
Dimensions
Architectural Styles
Exterior Wall Material
Vinyl SidingWood SidingLap Siding
Roofing Type
Gable
Roofing Material
Metal
Roof Pitch
4/128/12
Ceiling Height
10 Foot Ceiling8 Foot Ceiling
Special Feature
Family RoomStorageVaulted CeilingsOpen Floor Plan
Exterior Wall Framing
2x4
Building Lot Type
Narrow Lot Design
Kitchen Features
Walk-in Pantry
Porches and Exterior Features
Wrap Around PorchCovered Front Porch
Master Suite Features
Main Floor MasterWalk In ClosetSplit Master Bedroom

What’s Included

Most plan sets include the following:

icon text-secondary-400 includedCover sheet

icon text-secondary-400 includedFoundation plan

icon text-secondary-400 includedDimensional floor plan(s)

icon text-secondary-400 includedExterior elevations

icon text-secondary-400 includedRoof plan

icon text-secondary-400 includedRoof framing plan (when available - please call or email us to confirm)

icon text-secondary-400 includedElectrical layout (when available - please call or email us to confirm)

icon text-secondary-400 includedBuilding section(s)

icon text-secondary-400 includedGeneral structural notations

What’s Not Included

These items are  NOT included:

icon text-secondary-400 includedArchitectural or Engineering Stamp - handled locally if required.

icon text-secondary-400 includedSite Plan - handled locally when required.

icon text-secondary-400 includedMechanical Drawings (location of heating and air equipment and ductwork) - your subcontractors handle this.

icon text-secondary-400 includedPlumbing Drawings (drawings showing the actual plumbing pipe sizes and locations) - your subcontractors handle this.

icon text-secondary-400 includedEnergy calculations - handled locally when required.

Related House Plans

Plan Collection
Plan Collection
Plan Collection
Plan#126-1856
Starting at$1180
943
Sq Ft
2
Story
3
Bed
2
Bath
0
Car
Plan Collection
Plan Collection
Plan Collection
Plan#178-1260
Starting at$925
1132
Sq Ft
2
Story
3
Bed
2.5
Bath
2
Car
Plan Collection
Plan Collection
Plan Collection
Plan#145-1032
Starting at$800
1028
Sq Ft
2
Story
3
Bed
2
Bath
2
Car
View All

Other Plans By This Designer

Plan Collection
Plan Collection
Plan Collection
Plan#216-1003
Starting at$995
700
Sq Ft
1
Story
1
Bed
1
Bath
0
Car
Plan Collection
Plan Collection
Plan Collection
Plan#216-1004
Starting at$995
740
Sq Ft
1
Story
1
Bed
1
Bath
1
Car
Plan Collection
Plan Collection
Plan Collection
Plan#216-1007
Starting at$1095
1192
Sq Ft
1
Story
2
Bed
2
Bath
0
Car