2-Bedroom, 878 Sq Ft Contemporary Plan with Eat-In Kitchen

Contemporary style house (ThePlanCollection: Plan #196-1226)

Images/Plans copyrighted by designer. Photos may reflect homeowner modifications.

About House Plan #196-1226

Sq Ft
878
Sq Ft
Bedrooms
2
Bedrooms
Bathroom
2
Baths
Half Baths
0
Half Baths
Bedrooms
2
Cars
Bedrooms
2
Stories
Bedrooms
23' 0'
Width
Bedrooms
28
Depth
Starting at$925.00What's included
STEP 1Bedrooms
STEP 2Bedrooms
STEP 3Bedrooms

Subtotal:$0
Plan Collection

How much will it cost to build?

Estimate your costs based on your location and materials.

Free Cost Instant Estimator

Floor Plans

Upper Level
Upper Level
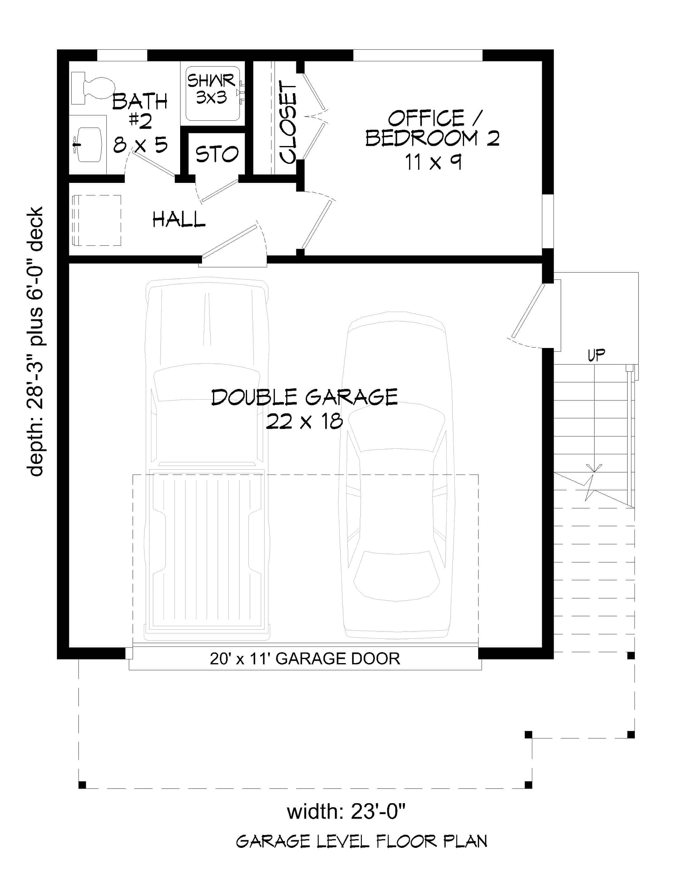
Garage
Garage
Plan Collection

Can I modify this plan?

Yes! This plan can be customized—contact us for a free quote.

Additional Notes from Designer

NOTE FROM DESIGNER REGARDING PLAN PURCHASES: 80% of a 5 set purchase price can be applied to any PDF or CAD license upgrade. Additionally, 80% of PDF Study purchase price can be applied to any CAD or PDF license upgrade.

House Plan Description

The sweet 2-story floor plan of this Contemporary style home has 878 square feet of fully conditioned living space that maximizes every available square foot of space. It would be a great home for retirement downsizing, a vacation getaway, or a starter home! This is a one-of-a-kind spectacular small home – and great for a building lot with a view.

Home Details

Summary
Plan #:196-1226
Starting at:$925.00
Floors:2
Bedrooms:2
Full Baths:2
Half Baths:0
Garage:
Square Footage
Heated Area:878 Sq. Ft.
First Floor:228 Sq. Ft.
Second Floor:650 Sq. Ft.
Unheated Area:
Garage:422 Sq. Ft.
Porch:148 Sq. Ft.
Dimensions
Depth:28' 9''
Architectural Styles
Exterior Wall Material
Vinyl SidingWood Siding
Roofing Type
Shed
Roofing Material
Asphalt Shingles
Roof Pitch
3/12
Ceiling Height
9 Foot Ceiling12 Foot Ceiling
Special Feature
Mud RoomFamily RoomMain Level LaundryStorageVaulted CeilingsBalconyOpen Floor Plan
Garage Type
Attached GarageUnder Main Floor EntrySide Entry
Exterior Wall Framing
2x6
Building Lot Type
Flat SiteNarrow Lot DesignCorner Lot
Kitchen Features
Kitchen IslandNook/Breakfast AreaPeninsula/Eating BarEat-In Kitchen
Porches and Exterior Features
Sundeck
Master Suite Features
Second Floor MasterSplit Master Bedroom

What’s Included

Most plan sets include the following:

What’s Not Included

These items are  NOT included:

Related House Plans

Plan Collection
Plan Collection
Plan Collection
Plan#115-1370
Starting at$1400
1000
Sq Ft
2
Story
2
Bed
2
Bath
0
Car
Plan Collection
Plan Collection
Plan Collection
Plan#117-1101
Starting at$895
985
Sq Ft
2
Story
2
Bed
2
Bath
1
Car
Plan Collection
Plan Collection
Plan Collection
Plan#126-1853
Starting at$1180
924
Sq Ft
2
Story
2
Bed
2
Bath
0
Car
View All

Other Plans By This Designer

Plan Collection
Plan Collection
Plan Collection
Plan#196-1211
Starting at$695
650
Sq Ft
2
Story
1
Bed
1
Bath
2
Car
Plan Collection
Plan Collection
Plan Collection
Plan#196-1196
Starting at$810
1500
Sq Ft
1
Story
2
Bed
2
Bath
3
Car
Plan Collection
Plan Collection
Plan Collection
Plan#196-1216
Starting at$845
1727
Sq Ft
2
Story
2
Bed
2
Bath
2
Car