6-Bedroom, 8769 Sq Ft European Plan with In-Law Suite

Front elevation of European home (ThePlanCollection: House Plan #193-1291)

Images/Plans copyrighted by designer. Photos may reflect homeowner modifications.

About House Plan #193-1291

Sq Ft
8769
Sq Ft
Bedrooms
6
Bedrooms
Bathroom
7
Baths
Half Baths
2
Half Baths
Bedrooms
5
Cars
Bedrooms
2
Stories
Bedrooms
108' 10'
Width
Bedrooms
82
Depth
Starting at$3750.00What's included
STEP 1Bedrooms
STEP 2Bedrooms
STEP 3Bedrooms

Subtotal:$0
Plan Collection

How much will it cost to build?

Estimate your costs based on your location and materials.

Free Cost Instant Estimator

Floor Plans

Main Level
Main Level
Upper Level
Upper Level
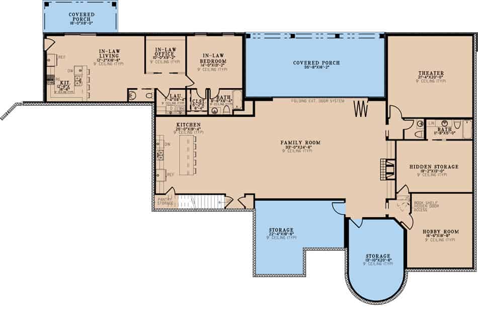
Lower Level
Lower Level
Plan Collection

Can I modify this plan?

Yes! This plan can be customized—contact us for a free quote.

Additional Notes from Designer

For this designer, if you choose optional features such as but not limited to: 2x6 exterior walls, reverse or optional basement, the designer will need an additional 2-5 business days to adjust the plan accordingly. Please keep this in mind when choosing your shipping option. if you would like Express or Priority shipping, the designer will ship the plan to you using the method you choose but you will still have the 2-5 business day waiting period BEFORE they ship! This designer does not offer Framing. Please feel free to contact us with any questions!

Note: Porch sq ft figures may include any deck sq ft ft as well.

House Plan Description

This remarkable European home with French style is 8,769 square feet with 6 bedrooms, 8 baths, and a 5-car garage. A few of the wonderful features of this outstanding home includes:

  • Family Room, Theater Room, Hobby Room, Game Room, Guest Room
  • In-Law Suite, Office and Living Room
  • Main Floor Master Suite with Master Bathroom and His & Her Walk-in Closets
  • Breakfast Room, Great Room, Study Room, DIning Room, Kitchens with Walk-in Pantry

Home Details

Summary
Plan #:193-1291
Starting at:$3750.00
Floors:2
Bedrooms:6
Full Baths:7
Half Baths:2
Garage:
Square Footage
Heated Area:8769 Sq. Ft.
Basement:3669 Sq. Ft.
First Floor:4488 Sq. Ft.
Second Floor:612 Sq. Ft.
Unheated Area:
Garage:2170 Sq. Ft.
Porch:778 Sq. Ft.
Dimensions
Width:108' 10''
Depth:82' 2''
Architectural Styles
Exterior Wall Material
BrickStuccoRock/StoneBoard and Batten
Roofing Type
Gable/Dormer
Roofing Material
Asphalt Shingles
Roof Pitch
12/12
Ceiling Height
9 Foot Ceiling
Special Feature
Mother in law apartmentFireplaceDining RoomGuest RoomHome OfficeMud RoomFamily RoomGame RoomMain Level LaundryColor PhotosStorageOpen Floor PlanInterior Photos
Garage Type
Attached GarageSide Entry
Fireplaces
Three Fireplaces
Exterior Wall Framing
2x6
Building Lot Type
Down Site
Kitchen Features
Kitchen IslandNook/Breakfast AreaWalk-in Pantry
Porches and Exterior Features
Covered Front PorchCovered Rear Porch
Master Suite Features
Main Floor MasterMaster BathroomWalk In ClosetSplit Master Bedroom

What’s Included

Most plan sets include the following:

icon text-secondary-400 included Each plan set includes the following:

icon text-secondary-400 included floorplan

icon text-secondary-400 included 4 side exterior elevations,

icon text-secondary-400 included electrical plan,

icon text-secondary-400 included birds-eye view of the roof,

icon text-secondary-400 included foundation plan,

icon text-secondary-400 included and some miscellaneous details. Please Note We do not offer framing, plumbing, HVAC, or window scheduling. This will have to be done on a local level, probably by your building team!

What’s Not Included

These items are  NOT included:

icon text-secondary-400 includedArchitectural or Engineering Stamp - handled locally if required.

icon text-secondary-400 includedSite Plan - handled locally when required.

icon text-secondary-400 includedMechanical Drawings (location of heating and air equipment and ductwork) - your subcontractors handle this.

icon text-secondary-400 includedPlumbing Drawings (drawings showing the actual plumbing pipe sizes and locations) - your subcontractors handle this.

icon text-secondary-400 includedEnergy calculations - handled locally when required.

icon text-secondary-400 includedNo Framing

Related House Plans

Plan Collection
Plan Collection
Plan Collection
Plan#161-1044
Starting at$4900
10266
Sq Ft
2
Story
6
Bed
7.5
Bath
3
Car
Plan Collection
Plan Collection
Plan Collection
Plan#107-1085
Starting at$2100
7100
Sq Ft
2
Story
6
Bed
7.5
Bath
3
Car
Plan Collection
Plan Collection
Plan Collection
Plan#107-1207
Starting at$2000
6679
Sq Ft
2
Story
6
Bed
7.5
Bath
3
Car
View All

Other Plans By This Designer

Plan Collection
Plan Collection
Plan Collection
Plan#193-1108
Starting at$1350
1905
Sq Ft
1.5
Story
3
Bed
2
Bath
0
Car
Plan Collection
Plan Collection
Plan Collection
Plan#193-1179
Starting at$1000
2006
Sq Ft
1.5
Story
3
Bed
2.5
Bath
2
Car
Plan Collection
Plan Collection
Plan Collection
Plan#193-1145
Starting at$1200
1897
Sq Ft
1
Story
4
Bed
2.5
Bath
3
Car