Luxury Duplex with 4 Bedrooms, 3705-3757 Sq Ft Per Unit

Color photograph of Multi-Unit home plan (ThePlanCollection: House Plan #195-1193)

Images/Plans copyrighted by designer. Photos may reflect homeowner modifications.

About House Plan #195-1193

Sq Ft
7462
Sq Ft
Bedrooms
8
Bedrooms
Bathroom
9
Baths
Half Baths
1
Half Baths
Bedrooms
6
Cars
Bedrooms
2
Stories
Bedrooms
60' 0'
Width
Bedrooms
89
Depth
Starting at$3295.00What's included
STEP 1Bedrooms
STEP 2Bedrooms
STEP 3Bedrooms

Subtotal:$0
Plan Collection

How much will it cost to build?

Estimate your costs based on your location and materials.

Free Cost Instant Estimator

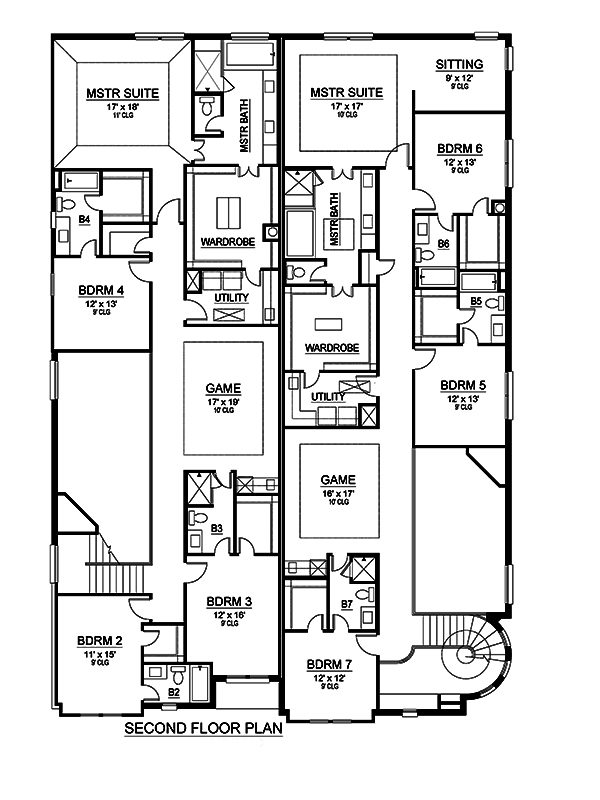
Floor Plans

Floor Plan Main Level
Floor Plan Main Level
Floor Plan Upper Level
Floor Plan Upper Level
Plan Collection

Can I modify this plan?

Yes! This plan can be customized—contact us for a free quote.

Additional Notes from Designer

This designer does not offer ICF!

House Plan Description

This luxurious, 2-story, Tudor-style duplex has 3705-3757 livings sq ft and 4 bedrooms per unit. Unit A has a total of 3757 living square feet. Unit B has 3705 living square feet.

Home Details

Summary
Plan #:195-1193
Starting at:$3295.00
Floors:2
Bedrooms:8
Full Baths:9
Half Baths:1
Garage:
Square Footage
Heated Area:7462 Sq. Ft.
First Floor:3032 Sq. Ft.
Second Floor:4384 Sq. Ft.
Unheated Area:
Garage:1531 Sq. Ft.
Dimensions
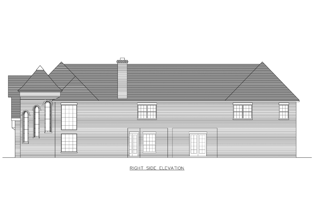
Architectural Styles
Exterior Wall Material
BrickStuccoRock/Stone
Roofing Type
Gable
Roofing Material
Asphalt Shingles
Ceiling Height
10 Foot Ceiling9 Foot Ceiling
Special Feature
FireplaceDining RoomFamily RoomGame RoomLibraryColor PhotosWine CellarSecond Level LaundryOpen Floor PlanInterior Photos
Garage Type
Attached GarageRear Entry
Fireplaces
One Fireplace
Exterior Wall Framing
2x4
Kitchen Features
Kitchen IslandNook/Breakfast AreaWalk-in PantryPeninsula/Eating BarEat-In Kitchen
Porches and Exterior Features
Covered Front Porch
Master Suite Features
Master BathroomWalk In ClosetSitting AreaSecond Floor Master

What’s Included

Most plan sets include the following:

icon text-secondary-400 includedDimension Plan

icon text-secondary-400 includedNotation Plan

icon text-secondary-400 includedElectrical Layout

icon text-secondary-400 includedElevations

icon text-secondary-400 includedRoof Plan

icon text-secondary-400 includedGeneral Specifications

icon text-secondary-400 includedGeneral Details

What’s Not Included

These items are  NOT included:

icon text-secondary-400 includedArchitectural or Engineering Stamp - handled locally if required.

icon text-secondary-400 includedSite Plan - handled locally when required.

icon text-secondary-400 includedMechanical Drawings (location of heating and air equipment and ductwork) - your subcontractors handle this.

icon text-secondary-400 includedPlumbing Drawings (drawings showing the actual plumbing pipe sizes and locations) - your subcontractors handle this.

icon text-secondary-400 includedEnergy calculations - handled locally when required.

Other Plans By This Designer

Plan Collection
Plan Collection
Plan Collection
Plan#195-1216
Starting at$3295
7587
Sq Ft
2
Story
5
Bed
6.5
Bath
3
Car
Plan Collection
Plan Collection
Plan Collection
Plan#195-1307
Starting at$7995
12720
Sq Ft
2
Story
5
Bed
6.5
Bath
5
Car
Plan Collection
Plan Collection
Plan Collection
Plan#195-1127
Starting at$9995
14727
Sq Ft
2
Story
9
Bed
8.5
Bath
9
Car