4–5-Bedroom, 6744 Sq Ft European Plan with Kitchen Island

European home (ThePlanCollection: Plan #195-1255)

Images/Plans copyrighted by designer. Photos may reflect homeowner modifications.

About House Plan #195-1255

Sq Ft
6744
Sq Ft
Bedrooms
4
Bedrooms
Bathroom
7
Baths
Half Baths
2
Half Baths
Bedrooms
3
Cars
Bedrooms
2
Stories
Bedrooms
71' 0'
Width
Bedrooms
114
Depth
Starting at$2860.00What's included
STEP 1Bedrooms
STEP 2Bedrooms
STEP 3Bedrooms

Subtotal:$0
Plan Collection

How much will it cost to build?

Estimate your costs based on your location and materials.

Free Cost Instant Estimator

Floor Plans

Floor Plan Main Level
Floor Plan Main Level
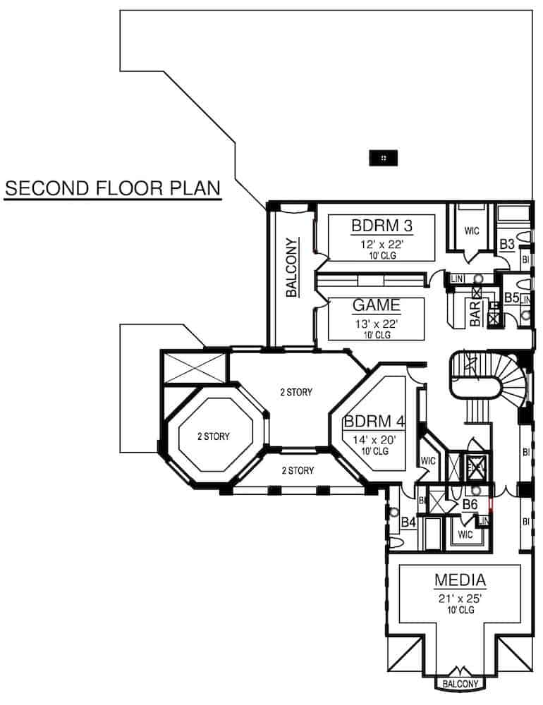
Floor Plan Upper Level
Floor Plan Upper Level
Plan Collection

Can I modify this plan?

Yes! This plan can be customized—contact us for a free quote.

Additional Notes from Designer

This designer does not offer ICF!

House Plan Description

This 6,744-square-foot European style home with Mediterranean characteristics offers bright and light indoor living areas such as a family room with fireplace and a separate dining area, separate kitchen, bar, and large master bedroom suite with a large wardrobe closet and a private bathroom with jacuzzi plus access to the exercise room and utility room, all designed for the owners' convenience. Another bedroom equipped with its own full bathroom and walk-in closet can also be found on the ground floor level.

Going up the stairs leads you to...

Home Details

Summary
Plan #:195-1255
Starting at:$2860.00
Floors:2
Bedrooms:4
Full Baths:7
Half Baths:2
Garage:
Square Footage
Heated Area:6744 Sq. Ft.
First Floor:4418 Sq. Ft.
Second Floor:2326 Sq. Ft.
Unheated Area:
Garage:814 Sq. Ft.
Dimensions
Architectural Styles
Exterior Wall Material
Stucco
Roofing Type
GableHip
Roofing Material
Tiles
Ceiling Height
10 Foot Ceiling12 Foot Ceiling
Special Feature
FireplaceSwimming PoolDining RoomMud RoomFamily RoomGame RoomMain Level LaundryLibraryMedia RoomColor PhotosSplit BathroomElevatorBalconyExercise RoomOpen Floor PlanInterior Photos
Garage Type
Attached GarageCourtyard Entry
Fireplaces
One Fireplace
Kitchen Features
Kitchen IslandNook/Breakfast AreaWalk-in PantryPeninsula/Eating BarEat-In Kitchen
Porches and Exterior Features
Covered Front Porch
Master Suite Features
Main Floor MasterMaster BathroomWalk In Closet

What’s Included

Most plan sets include the following:

icon text-secondary-400 includedDimension Plan

icon text-secondary-400 includedNotation Plan

icon text-secondary-400 includedElectrical Layout

icon text-secondary-400 includedElevations

icon text-secondary-400 includedRoof Plan

icon text-secondary-400 includedGeneral Specifications

icon text-secondary-400 includedGeneral Details

What’s Not Included

These items are  NOT included:

icon text-secondary-400 includedArchitectural or Engineering Stamp - handled locally if required.

icon text-secondary-400 includedSite Plan - handled locally when required.

icon text-secondary-400 includedMechanical Drawings (location of heating and air equipment and ductwork) - your subcontractors handle this.

icon text-secondary-400 includedPlumbing Drawings (drawings showing the actual plumbing pipe sizes and locations) - your subcontractors handle this.

icon text-secondary-400 includedEnergy calculations - handled locally when required.

Related House Plans

Plan Collection
Plan Collection
Plan Collection
Plan#175-1182
Starting at$6500
6295
Sq Ft
2
Story
4
Bed
7
Bath
4
Car
View All

Other Plans By This Designer

Plan Collection
Plan Collection
Plan Collection
Plan#195-1216
Starting at$3295
7587
Sq Ft
2
Story
5
Bed
6.5
Bath
3
Car
Plan Collection
Plan Collection
Plan Collection
Plan#195-1307
Starting at$7995
12720
Sq Ft
2
Story
5
Bed
6.5
Bath
5
Car
Plan Collection
Plan Collection
Plan Collection
Plan#195-1127
Starting at$9995
14727
Sq Ft
2
Story
9
Bed
8.5
Bath
9
Car