5-Bedroom, 6680 Sq Ft Craftsman Plan with Screened Porch/Sunroom

Main image for house plan # 15169

Images/Plans copyrighted by designer. Photos may reflect homeowner modifications.

About House Plan #115-1123

Sq Ft
6680
Sq Ft
Bedrooms
5
Bedrooms
Bathroom
6
Baths
Half Baths
0
Half Baths
Bedrooms
4
Cars
Bedrooms
2
Stories
Bedrooms
106' 0'
Width
Bedrooms
78
Depth
Starting at$4000.00What's included
STEP 1Bedrooms
STEP 2Bedrooms
STEP 3Bedrooms

Subtotal:$0
Plan Collection

How much will it cost to build?

Estimate your costs based on your location and materials.

Free Cost Instant Estimator

Floor Plans

Main Floor Plan
Main Floor Plan
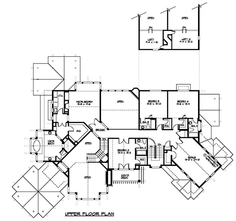
Second Floor Plan
Second Floor Plan
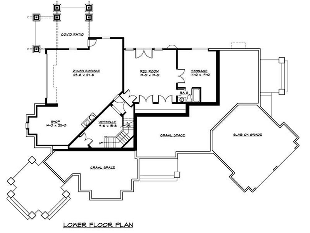
Basement
Basement
Plan Collection

Can I modify this plan?

Yes! This plan can be customized—contact us for a free quote.

Additional Notes from Designer

Please Note: The plans by this designer DO NOT include electrical plans or electrical layout plans. NOTE: If you are building this home in Washington State, please contact us BEFORE placing your order!

House Plan Description

This remarkable Craftsman style home with luxury design influences (House Plan #115-1123) has over 6680 square feet of living space. The two story floor plan includes 5 bedrooms.

Home Details

Summary
Plan #:115-1123
Starting at:$4000.00
Floors:2
Bedrooms:5
Full Baths:6
Half Baths:0
Garage:
Square Footage
Heated Area:6680 Sq. Ft.
First Floor:3145 Sq. Ft.
Second Floor:2480 Sq. Ft.
Unheated Area:
Basement:1055 Sq. Ft.
Dimensions
Architectural Styles
Exterior Wall Material
Vinyl SidingRock/Stone
Garage Type
Side Entry

What’s Included

Most plan sets include the following:

icon text-secondary-400 includedCover Sheet

icon text-secondary-400 includedSchedule Sheet

icon text-secondary-400 includedDetail Sheet

icon text-secondary-400 includedFoundation Plan Sheet

icon text-secondary-400 includedFloor Plan/Floor Framing Sheet(s)

icon text-secondary-400 includedRoof Framing Plan Sheet

icon text-secondary-400 includedElevation Sheet

icon text-secondary-400 includedBuilding Section Sheet

What’s Not Included

These items are  NOT included:

icon text-secondary-400 includedArchitectural or Engineering Stamp - handled locally if required.

icon text-secondary-400 includedSite Plan - handled locally when required.

icon text-secondary-400 includedMechanical Drawings (location of heating and air equipment and ductwork) - your subcontractors handle this.

icon text-secondary-400 includedPlumbing Drawings (drawings showing the actual plumbing pipe sizes and locations) - your subcontractors handle this.

icon text-secondary-400 includedEnergy calculations - handled locally when required.

Related House Plans

Plan Collection
Plan Collection
Plan Collection
Plan#175-1073
Starting at$4500
6780
Sq Ft
2
Story
5
Bed
6.5
Bath
4
Car
Plan Collection
Plan Collection
Plan Collection
Plan#193-1125
Starting at$4000
7519
Sq Ft
2
Story
5
Bed
6.5
Bath
5
Car
Plan Collection
Plan Collection
Plan Collection
Plan#107-1192
Starting at$1800
5872
Sq Ft
2
Story
5
Bed
6
Bath
3
Car
View All

Other Plans By This Designer

Plan Collection
Plan Collection
Plan Collection
Plan#115-1370
Starting at$1400
1000
Sq Ft
2
Story
2
Bed
2
Bath
0
Car
Plan Collection
Plan Collection
Plan Collection
Plan#115-1150
Starting at$1600
2025
Sq Ft
2
Story
3
Bed
2.5
Bath
3
Car
Plan Collection
Plan Collection
Plan Collection
Plan#115-1371
Starting at$1400
1000
Sq Ft
2
Story
2
Bed
2
Bath
0
Car